Prodej bytu 3+kk, Praha - Kbely, Plzákova, 73 m2

Plzákova, Praha, Kbely


10 677 000 Kč /za nemovitost
HYPOTÉKA od 47 720 Kč /měs.
Regionální dodavatelé v Praze 9

Stěhovací služby

Výkup a prodej starého nábytku

Popis

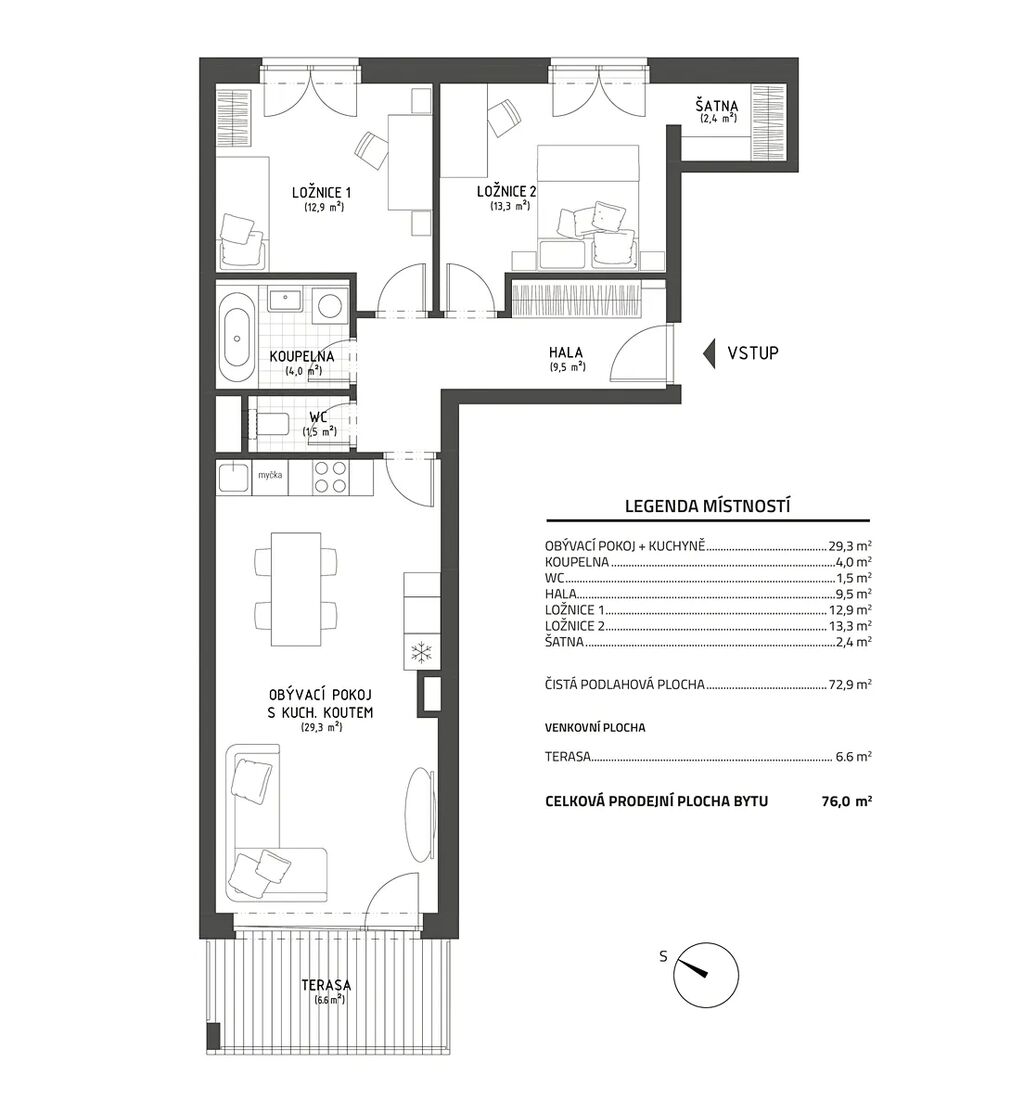
Nabízíme k prodeji moderní byt 3+kk o velikosti 73 m² s terasou (6,6 m²) a dvěma venkovními parkovacími stáními, který se nachází ve 3. nadzemním podlaží novostavby z roku 2020 v klidné části Prahy 9 – Kbely, ulice Plzákova.

Byt je součástí rezidenčního komplexu Breliot, postaveného v roce 2020. Výhodné umístění v blízkosti Kbelského a Letnanského lesoparku nabízí unikátní propojení přírody a města.

Dispozice a vybavení bytu

Obývací pokoj s kuchyňským koutem (29,3 m²), orientovaný na jihozápad, je světlý a vzdušný, s přímým vstupem na terasu (6,6 m²), která poskytuje ideální místo pro relaxaci. Kuchyňský kout je plně vybaven všemi spotřebiči: indukční varná deska, digestoř, elektrická a mikrovlnná trouba a myčka nádobí, lednice s mrazákem.
Ložnice (13,3 m²) a dětský pokoj (13 m2) jsou orientované na severovýchod. Manželská ložnice má vlastní šatnu (2,4 m2). V předsíni se nachází velká vestavěná skříň na míru, která poskytuje spoustu úložného prostoru. Koupelna (4 m²) je vybavena vanou a umyvadlem, toaleta je zvlášť. V obytných místnostech jsou dřevěné podlahy, v koupelně je položena dlažba.

K bytu náleží 2 venkovní parkovací stání v rezidenčním areálu.

Byt je v perfektním stavu, připraven k okamžitému nastěhování. Energetická náročnost budovy je třídy B – velmi úsporná budova, což zaručuje nízké provozní náklady. Náklady na bydlení rodiny činí 7.133 Kč za měsíc, z toho fond oprav činí 600 Kč.

Lokalita a dopravní dostupnost

Byt se nachází v tiché ulici Plzákova, v nově vzniklé rezidenční části Kbel, která je obklopena zelení a rodinnou atmosférou. Rezidenční komplex Bleriot nabízí soukromý park, dětské hřiště a příjemné prostředí pro relaxaci. V docházkové vzdálenosti najdete Kbelský a Letňanský lesopark, ideální pro procházky, cyklovýlety či sportovní aktivity. Nedaleko se nachází také Kbelské letiště s Leteckým muzeem, oblíbené místo pro rodiny s dětmi.

V okolí je kompletní občanská vybavenost – školy, školky, lékárna, pošta, restaurace, kavárny, sportoviště, dětská hřiště i supermarkety Lidl a Billa.

Větší nákupy nebo zábavu nabízí OC Letňany s širokou nabídkou obchodů, restaurací a multikinem.
Dopravní dostupnost:
• Autobusová zastávka (linky 201, 202, 185) – pár minut chůze
• Metro Letňany (C) – 7 minut jízdy
• Výborné napojení na Pražský okruh a D8
• Centrum Prahy do 25 minut

Kbely jsou vyhledávanou městskou částí pro svou klidnou atmosféru, dostatek zeleně a přátelskou komunitu.

Pro sjednání prohlídky mě neváhejte kontaktovat. Těším se na Vás.

Cena
10 677 000 Kč /za nemovitost Spočítat hypotéku
Aktualizováno
12. 11. 2025
Adresa
Plzákova, Praha, Kbely
Stavba
Cihlová
Stav objektu
Velmi dobrý
Patro
3.
Lokalita objektu
Klidná část obce
Vlastnictví
Osobní
Užitná plocha
73 m2
Podlahová plocha
80 m2
Třída energetické náročnosti
B - Velmi úsporná
Terasa
Parkování

Máte zájem o tuto nemovitost?

Tímto, v souladu s nařízením Evropského parlamentu a Rady (EU) 2016/679, v platném znění, prohlašuji, že mi je alespoň 16 let a uděluji tak svůj souhlas se zpracováním zadaných údajů (jméno, telefon, e-mail, ip adresa) společnosti B3 Technology, s.r.o., IČ: 07330600, se sídlem Novostavby 126/23, 435 11 Lom (správce dat), za účelem předání dotazu z tohoto formuláře Vámi vybranému inzerentovi a zpětného kontaktování mé osoby. Osobní údaje bude správce zpracovávat manuálně i automaticky přímo prostřednictvím svých zaměstnanců. Informace předané tímto formulářem budou uloženy v databázi správce maximálně po dobu 10 let. Odvolání souhlasu s uložením a zpracováním poskytnutých dat lze e-mailem na info@realitymat.cz. V případě podezření na neoprávněné použití Vámi poskytnutých údajů máte právo předat podnět k šetření Úřadu pro ochranu osobních údajů. Více informací
Chystáte se prodat nemovitost?
Pomůžeme Vám!

Kontakt

Elena Zabirova

Elena Zabirova

Přihlášení k odběru

Nenechte si ujít nejnovější nabídky prodeje bytů 3+kk v Praze 9.

Podobné nabídky