Prodej bytu 3+kk, Hradec Králové - Nový Hradec Králové, třída Edvarda Beneše, 90 m2

třída Edvarda Beneše, Nový Hradec Králové


7 630 000 Kč /za nemovitost
HYPOTÉKA od 34 101 Kč /měs.
Regionální dodavatelé v Hradci Králové

Popis

Rádi bychom vám tímto nabídli prostorný byt 3+kk, který bude v lednu 2026 převeden do osobního vlastnictví. Byt je po rekonstrukci v r. 2020: nové jádro, koupelna, WC, propojení kuchyně s obývacím pokojem, nové podlahy, kuchyň, elektrické rozvody. Na domě je plánována revitalizace a zateplení v r. 2026, které se propíše do nižších spotřeb energií. Součástí budou venkovní žaluzie na 3 oknech na JZ. Revitalizace se neprojeví nijak významně do příspěvků FO - max o 5 Kč/m2.
K příjemnému a komfortnímu bydlení přispívá lodžie 6 m2.
Tento byt je ve velmi dobrém stavu a je ideální volbou pro pár nebo rodinu, kteří hledají komfortní bydlení v blízkosti centra města.

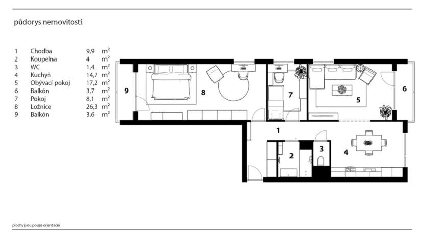
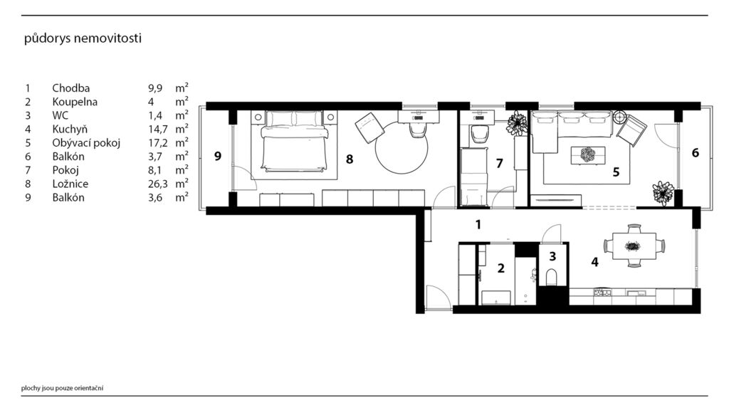
Dispozice bytu nabízí příjemné a vzdušné prostory, kde si každý člen rodiny přijde na své soukromí. Ložnice je opravdu prostorná - viz. přiložené půdorysy a je možné ji rozdělit na dva menší pokoje. K bytu patří sklep.
Dům je vybaven dvěma výtahy.

Lokalita, ve které se byt nachází, je velmi vyhledávaná. V blízkém okolí najdete veškerou občanskou vybavenost, včetně obchodů, restaurací, polikliniky a nákupního centra. Díky skvělé dostupnosti MHD a silnice se snadno dostanete do centra města nebo na jiné důležité cíle.

Celkově se jedná o ideální nemovitost pro ty, kteří hledají pohodlné bydlení s veškerým komfortem na dosah ruky. V případě zájmu o prohlídku nás neváhejte kontaktovat.

Cena
7 630 000 Kč /za nemovitost Spočítat hypotéku
Aktualizováno
11. 11. 2025
Adresa
třída Edvarda Beneše, Nový Hradec Králové
ID
17944
Stavba
Panelová
Stav objektu
Velmi dobrý
Patro
5. z 10
Vybaveno
Ano
Lokalita objektu
Sídliště
Vlastnictví
Družstevní
Užitná plocha
90 m2
Třída energetické náročnosti
C - Úsporná
Plyn
Plynovod
Odpad
Veřejná kanalizace
Komunikace
Asfaltová
Doprava
Silnice, MHD, Autobus
Voda
Vodovod
Sklep
Lodžie
Výtah
Převod do OV

Máte zájem o tuto nemovitost?

Tímto, v souladu s nařízením Evropského parlamentu a Rady (EU) 2016/679, v platném znění, prohlašuji, že mi je alespoň 16 let a uděluji tak svůj souhlas se zpracováním zadaných údajů (jméno, telefon, e-mail, ip adresa) společnosti B3 Technology, s.r.o., IČ: 07330600, se sídlem Novostavby 126/23, 435 11 Lom (správce dat), za účelem předání dotazu z tohoto formuláře Vámi vybranému inzerentovi a zpětného kontaktování mé osoby. Osobní údaje bude správce zpracovávat manuálně i automaticky přímo prostřednictvím svých zaměstnanců. Informace předané tímto formulářem budou uloženy v databázi správce maximálně po dobu 10 let. Odvolání souhlasu s uložením a zpracováním poskytnutých dat lze e-mailem na info@realitymat.cz. V případě podezření na neoprávněné použití Vámi poskytnutých údajů máte právo předat podnět k šetření Úřadu pro ochranu osobních údajů. Více informací
Chystáte se prodat nemovitost?
Pomůžeme Vám!

Kontakt

Jana Štěpánová

Jana Štěpánová

Přihlášení k odběru

Nenechte si ujít nejnovější nabídky prodeje bytů 3+kk v Hradci Králové.

Podobné nabídky