Prodej bytu 2+kk, Hradec Králové - Třebeš, třída Edvarda Beneše, 47 m2

třída Edvarda Beneše, Hradec Králové, Třebeš


4 800 000 Kč /za nemovitost
HYPOTÉKA od 21 453 Kč /měs.
Regionální dodavatelé v Hradci Králové

Popis

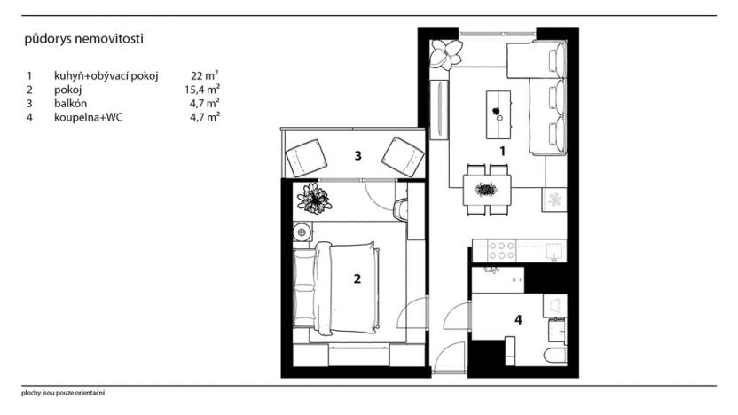
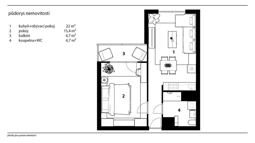
Rádi bychom vám nabídli světlý a útulný byt 2 + kk o užitné ploše 47 m², situovaný v 8. podlaží panelového domu, který se nachází na Třídě Edvarda Beneše v Hradci Králové. Tento byt je ve velmi dobrém stavu a je ideální volbou pro jednotlivce nebo pár, kteří hledají komfortní bydlení v blízkosti centra města.

Dispozice bytu nabízí příjemné a vzdušné prostory s výhledem na okolní zeleň. Součástí bytu je také lodžie, kde můžete příjemně v klidu relaxovat. V bytě je k dispozici komora na patře, což poskytuje navíc úložný prostor pro vaše potřeby.
Dům je vybaven dvěma výtahy, což je výhodou obzvlášť při stěhování větších kusů nábytku. Bezpečnostní prvky jako vchod na čip a automatické otevírání dveří vchodu přispívají k pocitu bezpečí a pohodlí.

Lokalita, ve které se byt nachází, je velmi vyhledávaná. V blízkém okolí najdete veškerou občanskou vybavenost, včetně obchodů, restaurací, polikliniky a nákupního centra. Díky skvělé dostupnosti MHD a silnice se snadno dostanete do centra města nebo na jiné důležité cíle.

Celkově se jedná o ideální nemovitost pro ty, kteří hledají pohodlné bydlení s veškerým komfortem na dosah ruky. V případě zájmu o prohlídku nás neváhejte kontaktovat.

Cena
4 800 000 Kč /za nemovitost Spočítat hypotéku
Aktualizováno
11. 11. 2025
Adresa
třída Edvarda Beneše, Hradec Králové, Třebeš
ID
17943
Stavba
Panelová
Stav objektu
Velmi dobrý
Patro
8. z 13
Vybaveno
Ano
Lokalita objektu
Sídliště
Vlastnictví
Osobní
Užitná plocha
47 m2
Zastavěná plocha
648 m2
Třída energetické náročnosti
C - Úsporná
Plyn
Plynovod
Odpad
Veřejná kanalizace
Komunikace
Asfaltová
Doprava
Silnice, MHD, Autobus
Voda
Vodovod
Lodžie
Výtah

Máte zájem o tuto nemovitost?

Tímto, v souladu s nařízením Evropského parlamentu a Rady (EU) 2016/679, v platném znění, prohlašuji, že mi je alespoň 16 let a uděluji tak svůj souhlas se zpracováním zadaných údajů (jméno, telefon, e-mail, ip adresa) společnosti B3 Technology, s.r.o., IČ: 07330600, se sídlem Novostavby 126/23, 435 11 Lom (správce dat), za účelem předání dotazu z tohoto formuláře Vámi vybranému inzerentovi a zpětného kontaktování mé osoby. Osobní údaje bude správce zpracovávat manuálně i automaticky přímo prostřednictvím svých zaměstnanců. Informace předané tímto formulářem budou uloženy v databázi správce maximálně po dobu 10 let. Odvolání souhlasu s uložením a zpracováním poskytnutých dat lze e-mailem na info@realitymat.cz. V případě podezření na neoprávněné použití Vámi poskytnutých údajů máte právo předat podnět k šetření Úřadu pro ochranu osobních údajů. Více informací
Chystáte se prodat nemovitost?
Pomůžeme Vám!

Kontakt

Jana Štěpánová

Jana Štěpánová

Přihlášení k odběru

Nenechte si ujít nejnovější nabídky prodeje bytů 2+kk v Hradci Králové.

Podobné nabídky