Prodej bytu 4+kk, Trutnov - Horní Staré Město, Horská, 127 m2

Horská, Horní Staré Město


8 700 000 Kč /za nemovitost
HYPOTÉKA od 38 884 Kč /měs.

(Kupní cena vč. provize RK a právního servisu.)


Regionální dodavatelé v Trutnově

Popis

PRODEJ BYTU 4+KK + TERASA + GARÁŽ S NABÍJEČKOU NA ELEKTROMOBIL + VLASTNÍ ZAHRADA , VYHŘÍVANÝ BAZÉN, VLASTNÍ FVE 10 KW S BATERIEMI

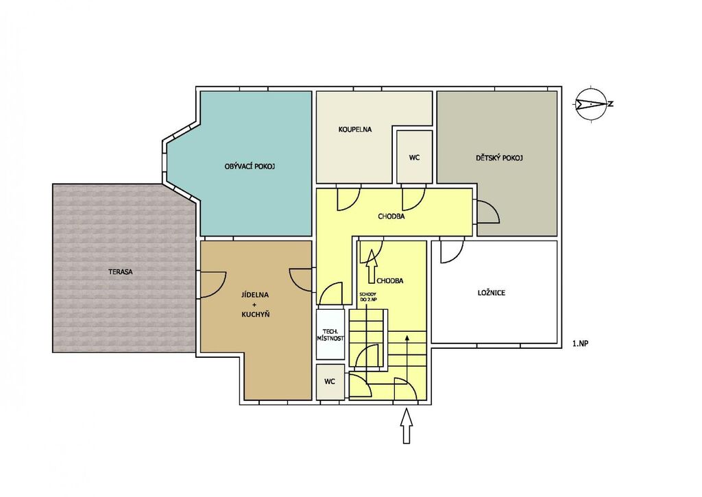
Nabízíme k prodeji nově zrekonstruovaný nízkoenergetický BYT (rekonstrukce dokončena v roce 2025) v osobním vlastnictví, ve zděném domě v Trutnově, ulici Horská. Byt se nachází v 1. nadzemním podlaží domu, je dispozice 4+kk a má výměru 89,4 m2. Příslušenstvím bytu jsou 2 SKLEPY v suterénu domu o výměře cca 37 m2. Vlastník bytu má ve výlučném užívání též TERASU o výměře 19 m2, která je přístupná z jídelny bytu a ze zahrady. Součástí prodeje, společně s bytem, je také velká zděná GARÁŽ umístěná u domu a ZAHRADA s BAZÉNEM - ta je výlučně ve vlastnictví tohoto bytu - ostatní byty v domě podíl na zahradě a bazénu nevlastní. Zahrada bude kompletně oplocena vč. části u parkoviště.

Dispozice bytu: předsíň, jídelna s kuchyňským koutem a kuchyňskou linkou s vestavěnými spotřebiči, prostorný obývací pokoj, dětský pokoj, ložnice, koupelna se samostatně stojící vanou i sprchovým koutem, samostatné WC, technická místnost.

Bytová jednotka je po kompletní rekonstrukci, díky které bylo docíleno stavu novostavby, jenž zahrnovala zhotovení nových rozvodů elektřiny, vody, odpadů a topení, pokládku nových podlahových krytin, zhotovení nové koupelny a wc s instalací nových zařizovacích předmětů, novou kuchyňskou linku se spotřebiči, nové vnitřní i vchodové dveře, nová plastová okna, nové štuky zdí ad. Bytový dům je nově zateplen s novou fasádou, novou střešní krytinou, klempířskými prvky a renovací společných prostor.

Nízké náklady: Díky moderním technologiím, jako je kvalitní tepelné čerpadlo zn. IVT, fotovoltaické panely s 2x bateriovým úložištěm, v kombinaci s kvalitním zateplením a izolačními trojskly oken jsou provozní náklady na tento byt velmi nízké. PENB A - mimořádně úsporná!! Instalované fotovoltaické panely vyrábějí elektřinu výhradně pro tento byt, přebytky jsou ukládány do baterií, příp. je lze sdílet s jinými odběrnými místy. Dům je napojen na elektřinu, kanalizaci a obecní vodovod, k dispozici je rovněž vlastní studna s možností využití pro závlahu či doplňkový zdroj vody.

Zahrada + bazén + garáž: K bytu náleží zahrada s bazénem - takové byty se v nabídce objevují zřídka. Užijte si soukromí a relaxaci jak na terase (19 m2), tak na oplocené zahradě s výměrou 570 m2 a orientací na jih. Dominantou zahrady je velký zapuštěný a vyhřívaný bazén se zastřešením. Díky ohřevu z fotovoltaických panelů lze využít potenciál bazénu po většinu roku. S bytem se prodává také velká zděná garáž umístěná na pozemku u domu. Ta je vybavena sekčními vraty a dobíjecí stanicí pro elektromobily.

Byt je ideální volbou pro rodiny, které hledají novou, moderní, funkční a nízkoenergetickou nemovitost s dostatkem místností a vlastní zahradou. Nenechte si ujít tuto jedinečnou příležitost!

Kontaktujte nás pro více informací a domluvení prohlídky. Tento byt může být vaším novým domovem. Shlédněte naši nabídku dalších bytů na prodej v tomto bytovém domě. Právní servis, úschova kupní ceny a další rozsáhlé služby realitní kanceláře jsou pro kupující zdarma.

Cena
8 700 000 Kč /za nemovitost Spočítat hypotéku
Poznámka k ceně
Kupní cena vč. provize RK a právního servisu.
Aktualizováno
12. 2. 2026
Adresa
Horská, Horní Staré Město
ID
CZK25141
Stavba
Cihlová
Stav objektu
Novostavba
Patro
1. z 3
Typ objektu
Patrový
Vlastnictví
Osobní
Užitná plocha
127 m2
Podlahová plocha
127 m2
Plocha zahrady
570 m2
Třída energetické náročnosti
A - Mimořádně úsporná
Ukazatel energetické náročnosti
30 kWh/m2 za rok
Elektřina
230V, 400V
Odpad
Veřejná kanalizace
Komunikace
Asfaltová
Telekomunikace
Internet, Kabelová televize, Kabelové rozvody
Doprava
Vlak, Silnice, MHD, Autobus
Voda
Vodovod, Studna
Topné těleso
Podlahové vytápění
Zdroj topení
Tepelné čerpadlo
Zdroj teplé vody
Tepelné čerpadlo
Garáž
Sklep
Terasa
Bezbarierový přístup
Parkování
Bazén
Nízkoenergetický

Máte zájem o tuto nemovitost?

Tímto, v souladu s nařízením Evropského parlamentu a Rady (EU) 2016/679, v platném znění, prohlašuji, že mi je alespoň 16 let a uděluji tak svůj souhlas se zpracováním zadaných údajů (jméno, telefon, e-mail, ip adresa) společnosti B3 Technology, s.r.o., IČ: 07330600, se sídlem Novostavby 126/23, 435 11 Lom (správce dat), za účelem předání dotazu z tohoto formuláře Vámi vybranému inzerentovi a zpětného kontaktování mé osoby. Osobní údaje bude správce zpracovávat manuálně i automaticky přímo prostřednictvím svých zaměstnanců. Informace předané tímto formulářem budou uloženy v databázi správce maximálně po dobu 10 let. Odvolání souhlasu s uložením a zpracováním poskytnutých dat lze e-mailem na info@realitymat.cz. V případě podezření na neoprávněné použití Vámi poskytnutých údajů máte právo předat podnět k šetření Úřadu pro ochranu osobních údajů. Více informací
Chystáte se prodat nemovitost?
Pomůžeme Vám!

Kontakt

Mgr. Petr Čížek

Mgr. Petr Čížek

Přihlášení k odběru

Nenechte si ujít nejnovější nabídky prodeje bytů 4+kk v Trutnově.

Podobné nabídky