Prodej bytu 3+kk, Třebíč - Borovina, Zahraničního odboje, 56 m2

Zahraničního odboje, Třebíč, Borovina


5 500 000 Kč /za nemovitost
HYPOTÉKA od 24 582 Kč /měs.
Regionální dodavatelé v Třebíči

Popis

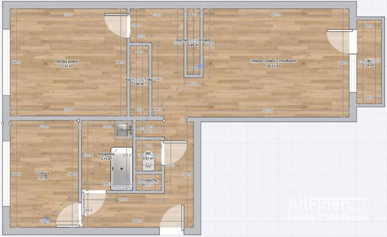
Nabízíme k prodeji krásný, světlý byt o dispozici 3+kk v osobním vlastnictví, nacházející se ve 2. nadzemním podlaží zatepleného domu s nově vybudovaným výtahem v klidné a žádané lokalitě města Třebíč.

Byt je ideální jak k vlastnímu bydlení, tak i jako investice – bez nutnosti dalších úprav, připravený k okamžitému nastěhování.

Hlavní informace:

Adresa: Zahraničního odboje, Třebíč
Výměra bytu: 56 m²
Sklepní kóje: 2 m²
Dispozice: 3+kk
Podlaží: 2. NP
Vlastnictví: osobní
Balkón: 2 m²
Výtah: ano (nově vybudovaný)

Stav a vybavení:

Byt prošel kompletní rekonstrukcí před cca 5 lety – nyní je ve výborném stavu.
moderní vinylové podlahy
elektřina v mědi, rozvody vody v plastu
kuchyňská linka s vestavěnou lednicí a myčkou nádobí
bidetová sprška na toaletě
připojení k internetu přes optický kabel ČEZ net
vytápění TTS

Měsíční náklady:

Zálohy na služby: 3 810 Kč
Elektřina: 1 100 Kč

Lokalita:

Byt se nachází v klidné části města, s výbornou dostupností občanské vybavenosti – v docházkové vzdálenosti jsou obchody, školy, školky, zastávky MHD i zelené plochy pro volnočasové aktivity.

Tento byt nabízí komfortní moderní bydlení bez nutnosti dalších investic.
Díky své poloze a stavu je vhodný také jako výhodná investice k pronájmu.

V případě zájmu o prohlídku mě neváhejte kontaktovat.

Cena
5 500 000 Kč /za nemovitost Spočítat hypotéku
Aktualizováno
12. 11. 2025
Adresa
Zahraničního odboje, Třebíč, Borovina
ID
N53
Stavba
Panelová
Stav objektu
Velmi dobrý
Patro
2. z 5
Typ objektu
Patrový
Vlastnictví
Osobní
Užitná plocha
56 m2
Podlahová plocha
60 m2
Třída energetické náročnosti
B - Velmi úsporná
Balkon
Sklep
Parkování

Máte zájem o tuto nemovitost?

Tímto, v souladu s nařízením Evropského parlamentu a Rady (EU) 2016/679, v platném znění, prohlašuji, že mi je alespoň 16 let a uděluji tak svůj souhlas se zpracováním zadaných údajů (jméno, telefon, e-mail, ip adresa) společnosti B3 Technology, s.r.o., IČ: 07330600, se sídlem Novostavby 126/23, 435 11 Lom (správce dat), za účelem předání dotazu z tohoto formuláře Vámi vybranému inzerentovi a zpětného kontaktování mé osoby. Osobní údaje bude správce zpracovávat manuálně i automaticky přímo prostřednictvím svých zaměstnanců. Informace předané tímto formulářem budou uloženy v databázi správce maximálně po dobu 10 let. Odvolání souhlasu s uložením a zpracováním poskytnutých dat lze e-mailem na info@realitymat.cz. V případě podezření na neoprávněné použití Vámi poskytnutých údajů máte právo předat podnět k šetření Úřadu pro ochranu osobních údajů. Více informací
Chystáte se prodat nemovitost?
Pomůžeme Vám!

Kontakt

Lenka Chládková

Lenka Chládková

Přihlášení k odběru

Nenechte si ujít nejnovější nabídky prodeje bytů 3+kk v Třebíči.

Podobné nabídky