Prodej bytu 4+kk, Brandýs nad Labem-Stará Boleslav - Brandýs nad Labem, Královická, 110 m2 (ID: 1998556)

Královická, Brandýs nad Labem-Stará Boleslav


15 389 500 Kč
HYPOTÉKA od 68 782 Kč /měs.

(za nemovitost)


Regionální dodavatelé v Brandýse nad Labem

Popis

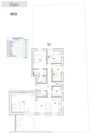
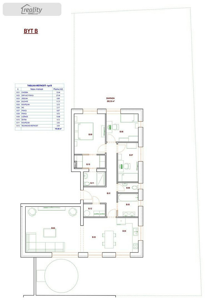
V zastoupení developera nabízíme nadstandardní byt v samostatné vile, v které se nachází pouze osm bytových jednotek. Tento byt je o dispozici 4+kk a užitné ploše 110 m² a jeho součástí je zahrada 277 m² s vlastním vjezdem a parkovacím stáním, další parkovací stání v pozemním podlaží lze dokoupit. Byt disponuje dvěma koupelnami, jednou samostatnou a druhou jako součást ložnice společně s WC. Další WC se nachází na chodbě bytu. Budoucí majitelé jistě ocení samostatnou technickou místnost a rovněž prostornou šatnu, která je propojena samostatným vchodem z ložnice.
Byt je vytápěn podlahovým topením společným plynovým kotlem s čidly a možností regulace tepla v každé místnosti zvlášť. V letních měsících zastíní byt automatické vnější žaluzie.
Kromě parkovacího stání lze také dokoupit sklepní kóji o velikosti 4 m².
V interiéru jsou přípravy na připojení klimatizace a chytré domácnosti, na oknech a dveřích čidla na zabezpečovací systém. každá místnost má dostatečný počet zásuvek a rozvody na HiFi, televizi atd.

Výhodou projektu je možnost dokončení bytu materiály a sanitou dle výběru budoucího majitele. Kuchyň není součástí vybavení.

Rezidenční bydlení Vila Královická se nachází v klidné části města Brandýs nad Labem. Adresa luxusního bydlení pro nové obyvatele, nebyla vybrána náhodou. Křížením ulic U Parku a Královická, vznikla zóna plná zeleně, bez smogu z aut s možností romantických procházek kolem vodní plochy a perfektní dopravní dostupností, nejen do centra města, ale i do nedaleké metropole hlavního města Prahy. Vaši novou adresu Vám budou závidět. Bydlet přímo v parku se přece jen nepoštěstí každému. V blízkosti rezidence máte vše důležité na dosah. Obchody, MHD, zdravotnická zařízení, pošta, úřady, školy, mateřinky, ale také kulturní a sportovní areály. To vše podtrhuje krásná příroda kolem protékající řeky Labe.

Byt je již zkolaudován. Možnost nastěhování tedy po domluvě a dodělání úprav na přání.

Cena
15 389 500 Kč Spočítat hypotéku
Poznámka k ceně
za nemovitost
Aktualizováno
7. 11. 2025
Adresa
Královická, Brandýs nad Labem-Stará Boleslav
ID
3573154380
Stavba
Cihlová
Stav objektu
Novostavba
Vlastnictví
Osobní
Užitná plocha
110 m2
Třída energetické náročnosti
B - Velmi úsporná

Máte zájem o tuto nemovitost?

Tímto, v souladu s nařízením Evropského parlamentu a Rady (EU) 2016/679, v platném znění, prohlašuji, že mi je alespoň 16 let a uděluji tak svůj souhlas se zpracováním zadaných údajů (jméno, telefon, e-mail, ip adresa) společnosti B3 Technology, s.r.o., IČ: 07330600, se sídlem Novostavby 126/23, 435 11 Lom (správce dat), za účelem předání dotazu z tohoto formuláře Vámi vybranému inzerentovi a zpětného kontaktování mé osoby. Osobní údaje bude správce zpracovávat manuálně i automaticky přímo prostřednictvím svých zaměstnanců. Informace předané tímto formulářem budou uloženy v databázi správce maximálně po dobu 10 let. Odvolání souhlasu s uložením a zpracováním poskytnutých dat lze e-mailem na info@realitymat.cz. V případě podezření na neoprávněné použití Vámi poskytnutých údajů máte právo předat podnět k šetření Úřadu pro ochranu osobních údajů. Více informací
Chystáte se prodat nemovitost?
Pomůžeme Vám!