Pronájem kanceláře, Praha - Vysočany, Českomoravská, 73 m2

Českomoravská, Praha, Vysočany


26 500 Kč /za měsíc
Získejte výhodnou HYPOTÉKU

(26500, - Kč nájemné, 1000, - Kč služby, 2420,- záloha energie)


Regionální dodavatelé v Praze 9

Stěhovací služby

Výkup a prodej starého nábytku

Popis

Hledáte reprezentativní prostory pro své podnikání na skvělém místě?
Nabízíme k pronájmu světlé a dobře přístupné nebytové prostory o velikosti 73 m v přízemí udržovaného domu přímo na frekventované ulici Českomoravská, v srdci pražských Vysočan. Přímo naproti vlakovému nádraží Libeň.
Prostory mají vlastní vstup z ulice, jsou velmi dobře viditelné a vhodné pro kancelář, pobočku firmy, showroom, finanční či poradenské služby, studio, nebo jiné podnikání, které ocení vysokou průchodnost a prestižní adresu.
________________________________________
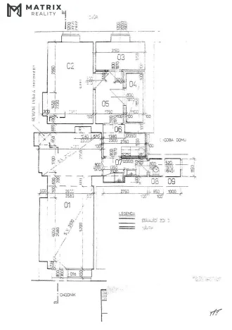
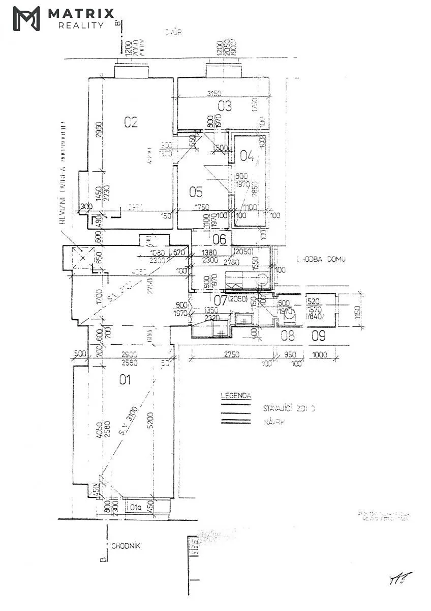
Dispozice:
Celková plocha: 73 m
3x samostatná kancelář, sklad, WC, spojovací chodba opatřena kuchyňskou linkou včetně chladničky
Umístění:
Přízemí domu čp. 199/37
Samostatný vstup z ulice ideální pro klientský provoz
Přístup do společných prostor (chodba, poštovní schránka)
Možnost umístit vlastní logo, reklamu či poutač na fasádu
Samostatné měření energií (elektřina, plyn)
Skvělá dostupnost MHD metro B Českomoravská, metro B Vysočanská, autobus, tramvaj, vlak Praha Libeň.
Parkování možné v okolí se zařízením parkovacího oprávnění

________________________________________
Finanční podmínky:
Nájemné: 26 500 Kč / měsíc
Zálohy na služby: 1 000 Kč / měsíc
Zálohy na energie dle vlastní spotřeby:
Aktuální zálohy nastaveny s mírnými přeplatky.
Plyn: 1 600 Kč / měsíc
Elektřina: 820 Kč / měsíc
Kauce (jistota): 1× měsíční nájemné+1× měsíční služby (27 500 Kč)
Provize: 1× měsíční nájemné (26 500 Kč)
Nájem na dobu neurčitou
Prostory volné dle dohody
________________________________________
Další informace
Prostory jsou v dobrém technickém stavu, připravené k okamžitému užívání.
Nabízejí příjemné a klidné zázemí pro vaše podnikání s možností dlouhodobé spolupráce.
Pokud hledáte místa s duší, kde vaše značka bude vidět a klienti se k vám budou rádi vracet, tohle je správná adresa!

Cena
26 500 Kč /za měsíc
Poznámka k ceně
26500, - Kč nájemné, 1000, - Kč služby, 2420,- záloha energie
Aktualizováno
7. 11. 2025
Adresa
Českomoravská, Praha, Vysočany
ID
234
Stavba
Cihlová
Stav objektu
Dobrý
Užitná plocha
73 m2
Telekomunikace
Internet
Doprava
Vlak, Silnice, MHD, Autobus
Bezbarierový přístup

Máte zájem o tuto nemovitost?

Tímto, v souladu s nařízením Evropského parlamentu a Rady (EU) 2016/679, v platném znění, prohlašuji, že mi je alespoň 16 let a uděluji tak svůj souhlas se zpracováním zadaných údajů (jméno, telefon, e-mail, ip adresa) společnosti B3 Technology, s.r.o., IČ: 07330600, se sídlem Novostavby 126/23, 435 11 Lom (správce dat), za účelem předání dotazu z tohoto formuláře Vámi vybranému inzerentovi a zpětného kontaktování mé osoby. Osobní údaje bude správce zpracovávat manuálně i automaticky přímo prostřednictvím svých zaměstnanců. Informace předané tímto formulářem budou uloženy v databázi správce maximálně po dobu 10 let. Odvolání souhlasu s uložením a zpracováním poskytnutých dat lze e-mailem na info@realitymat.cz. V případě podezření na neoprávněné použití Vámi poskytnutých údajů máte právo předat podnět k šetření Úřadu pro ochranu osobních údajů. Více informací
Chystáte se prodat nemovitost?
Pomůžeme Vám!

Kontakt

Vladislav Potočník

Vladislav Potočník

Přihlášení k odběru

Nenechte si ujít nejnovější nabídky pronájmu kanceláří v Praze 9.

Podobné nabídky