Prodej bytu 5+kk, Srubec, Smrková, 121 m2

Smrková, Srubec


10 490 000 Kč /za nemovitost
HYPOTÉKA od 46 884 Kč /měs.

(Cena je uvedena včetně provize RK. )


Regionální dodavatelé v Srubci

Popis

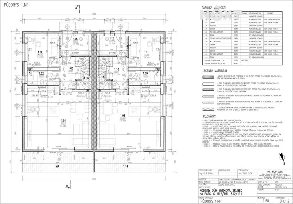
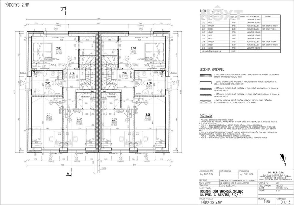
V atraktivní lokalitě Srubec, v klidné ulici Smrková, právě roste před očima krajní dvoupodlažní řadový dům o dispozici 5kk a celkové užitné ploše 121 m². Dům je součástí dvojdomku, který nabízí 2 bytové jednotky postavené jako samostatné krajní řadové domy s vlastním vstupem, zahradou i dvěma parkovacími stáními. Rodinný dům č. 1 je již prodaný a právě máte příležitost koupit dům č.2, který nabízí mimořádně komfortní a nadstandardní bydlení. Dům má smysluplně řešený půdorys. V přízemí Vás přivítá prostorné zádveří (5,43 m²), na které navazuje chodba (5,14 m²), pracovna nebo ložnice chcete-li (9,69 m²), koupelna se sprchovým koutem a toaletou (4,69 m²) a technická místnost/sklad (2,10 m²). Dominantou přízemí je nadstandardně prostorný obývací pokoj s kuchyní o celkové užitné ploše 34,84 m² se vstupem na terasu (13,8 m²) a zahradu (174,2 m²). Do prvního patra (2.NP) vede pohodlné schodiště (6 m²). V patře se nachází klidová zóna o 3 pokojích. Ložnice (17,25 m²) s praktickou šatnou, další pokoj (14,53 m²) se šatnou a třetí pokoj (15,6 m²). Dále se zde nachází koupelna s vanou a toaletou (7,24 m²), vše spojeno chodbou (5,04 m²). Každý metr čtvereční zde má své opodstatnění. Dům je navržen tak, aby odpovídal potřebám moderní rodiny a nabízel jak prostor pro společný život, tak i klid a soukromí. Na stavbu jsou použity kvalitní materiály s důrazem na design a dlouhou životnost. V ceně domu jsou zahrnuty interiérové dveře a zárubně, dlažby, sanita v koupelnách značky Hans Gröhe, podlahy Alpha Vinyl a kastlíky včetně žaluzií. Do ceny domu je dále zahrnuta terasa za domem, nezámrzný venkovní kohout na vodu, oplocení a zídka mezi domy. Kuchyňskou linku, osvětlení, nábytek, případně pergolu, apod. si řešíte na vlastní náklady. Součástí inzerátu jsou i vizualizace, které vám pomohou s představou, jak by mohl Váš nový domov vypadat, můžete tak čerpat inspiraci pro uspořádání a vybavení interiéru. Provoz domu bude nízkoenergetický, vytápění je řešeno kondenzačním plynovým kotlem včetně ohřevu vody. V celém domě bude kompletně podlahové vytápění. Energetický štítek (PENB) třídy C. Dům je napojený na kanalizaci, elektřinu a veřejný vodovod. Lokalita Srubec patří mezi nejvyhledávanější místa pro rodinné bydlení v blízkosti Českých Budějovic. V pěší vzdálenosti najdete školu, školku, dětské hřiště, obchod, restauraci i lékaře. Výborné spojení s městem zajišťuje městská hromadná doprava – linka č. 13. Srubec nabízí výjimečné zázemí pro rodiny s dětmi i pro ty, kdo hledají klidné místo k životu obklopené přírodou s veškerou občanskou vybaveností. Tento dům je ideální volbou moderního, designového a prakticky řešeného bydlení s příjemnou atmosférou a kvalitou bez kompromisů. Dokončení domu bude v říjnu 2025, to znamená, že stěhovat se můžete brzy. Rádi pomůžeme s výhodným financováním. Domluvte si prohlídku, těšíme se na jednání s Vámi. Pro komunikaci uvádějte evidenční číslo zakázky N114863.

Cena
10 490 000 Kč /za nemovitost Spočítat hypotéku
Poznámka k ceně
Cena je uvedena včetně provize RK.
Aktualizováno
6. 11. 2025
Adresa
Smrková, Srubec
ID
N114863
Stavba
Cihlová
Stav objektu
Novostavba
Vybaveno
Ne
Vlastnictví
Osobní
Užitná plocha
121 m2
Zastavěná plocha
82 m2
Třída energetické náročnosti
C - Úsporná
Elektřina
230V
Plyn
Plynovod
Odpad
Veřejná kanalizace
Topení
Lokální plynové, Jiné, Podlahové
Komunikace
Asfaltová
Doprava
Dálnice, Silnice, MHD
Voda
Vodovod
Topné těleso
Podlahové vytápění
Zdroj topení
Plynový kondenzační kotel, Jiné
Zdroj teplé vody
Plynový kotel
Terasa
Bezbarierový přístup
Parkování

Máte zájem o tuto nemovitost?

Tímto, v souladu s nařízením Evropského parlamentu a Rady (EU) 2016/679, v platném znění, prohlašuji, že mi je alespoň 16 let a uděluji tak svůj souhlas se zpracováním zadaných údajů (jméno, telefon, e-mail, ip adresa) společnosti B3 Technology, s.r.o., IČ: 07330600, se sídlem Novostavby 126/23, 435 11 Lom (správce dat), za účelem předání dotazu z tohoto formuláře Vámi vybranému inzerentovi a zpětného kontaktování mé osoby. Osobní údaje bude správce zpracovávat manuálně i automaticky přímo prostřednictvím svých zaměstnanců. Informace předané tímto formulářem budou uloženy v databázi správce maximálně po dobu 10 let. Odvolání souhlasu s uložením a zpracováním poskytnutých dat lze e-mailem na info@realitymat.cz. V případě podezření na neoprávněné použití Vámi poskytnutých údajů máte právo předat podnět k šetření Úřadu pro ochranu osobních údajů. Více informací
Chystáte se prodat nemovitost?
Pomůžeme Vám!

Kontakt

Klára Šašková

Klára Šašková

Přihlášení k odběru

Nenechte si ujít nejnovější nabídky prodeje bytů 5+kk v Srubci.

Tipy Realitymatu

Podobné nabídky