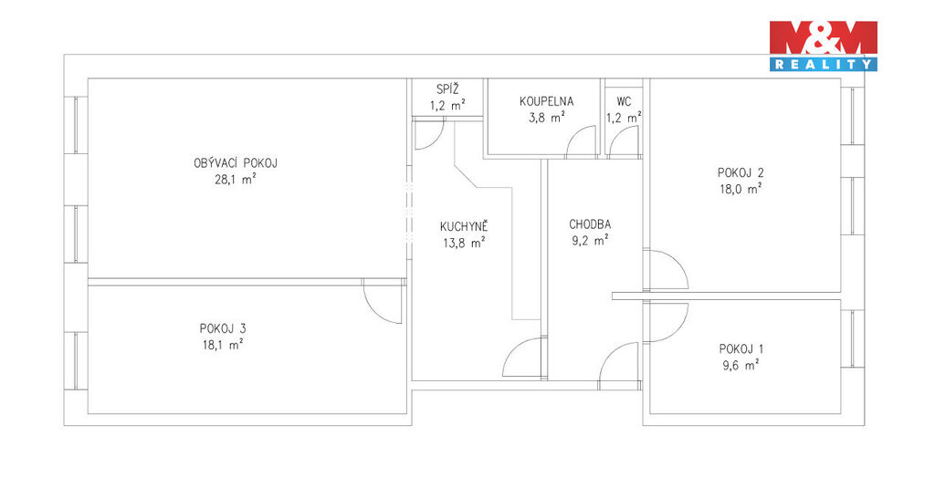
Pronájem bytu 4+kk, Strakonice - Strakonice I, Palackého náměstí, 122 m2

Palackého náměstí, Strakonice I


15 000 Kč /za měsíc
Získejte výhodnou HYPOTÉKU
Regionální dodavatelé v Strakonicích

Popis

Nabízíme pronájem krásného podkrovního bytu 4+kk v centru Palackého náměstí ve Strakonicích. Byt se nachází ve 4. patře hezkého udržovaného bytového domu o celkem pěti jednotkách, který prošel v roce 2015 rekonstrukcí. Byt je částečně vybaven, je zde kompletní kuchyňská linka se spotřebiči, vestavěná trouba, lednice. Podlaha je pokryta dlažbou, plovoucí podlahou a kobercem. V koupelně je prostorná rohová vana a toaletní skříňka nad umyvadlem. Dobrá poloha domu v centru města s veškerým občanským vybavením v docházkové vzdálenosti. Nastěhování je možné od 1.2.2026. K ceně nájemného se platí 5.000,- Kč zálohově na veškeré služby. Uzavření písemné smlouvy je podmíněno složením vratné kauce ve výši jednoho měsíčního nájemného včetně poplatků a uhrazen první nájem + provize RK. Doporučujeme prohlídku!

Cena
15 000 Kč /za měsíc
Aktualizováno
6. 11. 2025
Adresa
Palackého náměstí, Strakonice I
ID
925111
Stavba
Smíšená
Stav objektu
Velmi dobrý
Vybaveno
Částečně
Lokalita objektu
Centrum obce
Vlastnictví
Osobní
Užitná plocha
122 m2

Máte zájem o tuto nemovitost?

Tímto, v souladu s nařízením Evropského parlamentu a Rady (EU) 2016/679, v platném znění, prohlašuji, že mi je alespoň 16 let a uděluji tak svůj souhlas se zpracováním zadaných údajů (jméno, telefon, e-mail, ip adresa) společnosti B3 Technology, s.r.o., IČ: 07330600, se sídlem Novostavby 126/23, 435 11 Lom (správce dat), za účelem předání dotazu z tohoto formuláře Vámi vybranému inzerentovi a zpětného kontaktování mé osoby. Osobní údaje bude správce zpracovávat manuálně i automaticky přímo prostřednictvím svých zaměstnanců. Informace předané tímto formulářem budou uloženy v databázi správce maximálně po dobu 10 let. Odvolání souhlasu s uložením a zpracováním poskytnutých dat lze e-mailem na info@realitymat.cz. V případě podezření na neoprávněné použití Vámi poskytnutých údajů máte právo předat podnět k šetření Úřadu pro ochranu osobních údajů. Více informací
Chystáte se prodat nemovitost?
Pomůžeme Vám!

Kontakt

Petr Míka

Petr Míka

Přihlášení k odběru

Nenechte si ujít nejnovější nabídky pronájmu bytů 4+kk v Strakonicích.

Podobné nabídky