Prodej bytu 2+kk, Bar, Černá Hora, 43 m2 (ID: 1991661)

Bar


129 870 € /za nemovitost

Regionální dodavatelé

Popis

V prestižní čtvrti Topolica, v samém srdci přímořského města Bar, vzniká nový exkluzivní rezidenční komplex. Ve 3. nadzemním podlaží je k dispozici světlý a promyšleně řešený apartmán 2+kk o ploše 48 m² s terasou 4 m², která nabízí ideální prostor pro ranní kávu či večerní relax s výhledem na okolní přírodu. Dispozice zahrnuje předsíň, vzdušný obývací pokoj s kuchyňským koutem, ložnici a komfortní koupelnu vybavenou prvotřídním sanitárním zařízením. Celý interiér je navržen s důrazem na kvalitu, funkčnost a nadčasový design.

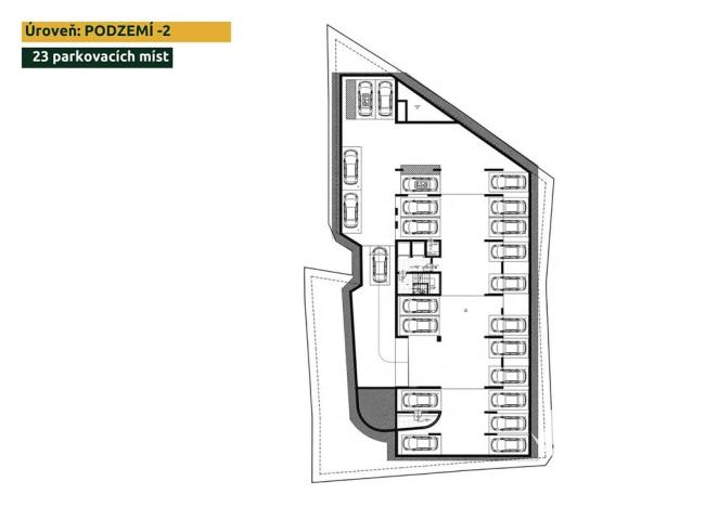
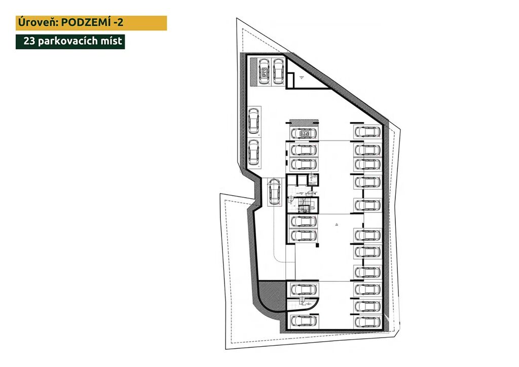
Standardem vybavení jsou dubové parkety nejvyšší třídy, italská keramika od renomovaných výrobců, luxusní armatury značek Villeroy & Boch a Hansgrohe, moderní rámy z kombinace hliníku a dřeva a multisplit klimatizace zajišťující příjemné klima po celý rok. Samozřejmostí jsou i chytré domácí technologie pro pohodlí a bezpečnost, dva tiché výtahy OTIS a solární panely, které přispívají k nižší energetické náročnosti budovy. Rezidence má dvě podzemní podlaží se 58 parkovacími místy. Dokončení výstavby je plánováno na konec roku 2026.

Lokalita Topolica je dlouhodobě považována za jednu z nejžádanějších oblastí nejen díky své poloze v blízkosti moře, ale i díky perfektní infrastruktuře a okolní přírodě. Jen pár kroků od domu se nachází známé sportovní centrum „Topolica“, budoucí národní aquapark s bazény a wellness zónou, promenáda, marina, řeka Željeznica i majestátní hora Rumija. Vše je obklopeno zelení a sluncem – Bar se může pochlubit více než 270 slunečnými dny ročně, což činí tuto oblast ideálním místem pro celoroční život i rekreaci.

Rezidence „Pohled na vodu“ kombinuje středomořskou architekturu s moderním životním stylem a představuje stabilní investici s vysokým potenciálem zhodnocení. Lokalita je ideální jak pro vlastní bydlení, tak pro krátkodobý i dlouhodobý pronájem, který díky rostoucímu zájmu o Černou Horu přináší zajímavé výnosy. Pláž Topolica s jemným štěrkem a pozvolným vstupem do moře je oblíbená mezi rodinami i aktivními páry, zatímco samotné město nabízí veškerou občanskou vybavenost – restaurace, kavárny, školy, obchody i perfektní dopravní dostupnost.

Naše společnost se specializuje na prodej nemovitostí v přímořských lokalitách a poskytuje kompletní servis – od výběru až po právní a administrativní podporu. Pomůžeme vám najít ideální nemovitost podle vašich představ, ať už hledáte nové bydlení, druhý domov u moře nebo výhodnou investici s jistotou do budoucna.

Cena
129 870 € /za nemovitost
Aktualizováno
2. 11. 2025
Adresa
Bar
ID
F16201
Stavba
Cihlová
Stav objektu
Ve výstavbě
Patro
3. z 9
Vybaveno
Částečně
Lokalita objektu
Klidná část obce
Vlastnictví
Osobní
Užitná plocha
43 m2
Podlahová plocha
48 m2
Elektřina
230V
Odpad
Veřejná kanalizace
Topení
Lokální elektrické
Telekomunikace
Internet
Doprava
Dálnice, Silnice, MHD, Autobus
Voda
Vodovod
Terasa
Výtah
Parkování

Máte zájem o tuto nemovitost?

Tímto, v souladu s nařízením Evropského parlamentu a Rady (EU) 2016/679, v platném znění, prohlašuji, že mi je alespoň 16 let a uděluji tak svůj souhlas se zpracováním zadaných údajů (jméno, telefon, e-mail, ip adresa) společnosti B3 Technology, s.r.o., IČ: 07330600, se sídlem Novostavby 126/23, 435 11 Lom (správce dat), za účelem předání dotazu z tohoto formuláře Vámi vybranému inzerentovi a zpětného kontaktování mé osoby. Osobní údaje bude správce zpracovávat manuálně i automaticky přímo prostřednictvím svých zaměstnanců. Informace předané tímto formulářem budou uloženy v databázi správce maximálně po dobu 10 let. Odvolání souhlasu s uložením a zpracováním poskytnutých dat lze e-mailem na info@realitymat.cz. V případě podezření na neoprávněné použití Vámi poskytnutých údajů máte právo předat podnět k šetření Úřadu pro ochranu osobních údajů. Více informací
Chystáte se prodat nemovitost?
Pomůžeme Vám!

Kontakt

Nikša Marinkovič

Nikša Marinkovič

Přihlášení k odběru

Nenechte si ujít nejnovější nabídky prodeje bytů 2+kk.

Podobné nabídky