Prodej bytu 3+kk, Bar, Černá Hora, 57 m2 (ID: 1991656)

Bar


182 700 € /za nemovitost

Regionální dodavatelé

Popis

V samotném srdci jedné z nejžádanějších lokalit města Bar – prestižní čtvrti Topolica – vzniká moderní rezidenční komplex, který nabízí dokonalou rovnováhu mezi luxusem, pohodlím a okolní přírodou. V rámci tohoto projektu vám představujeme elegantní apartmán o dispozici 3+kk a výměře 63 m², situovaný v 7. nadzemním podlaží, s terasou o velikosti 5,2 m², ideální pro ranní kávu, večerní relax nebo výhledy na upravené zelené plochy a okolní přírodu.

Dispozice bytu je navržena s důrazem na funkčnost i estetiku – prostorná předsíň, vzdušný obývací pokoj s kuchyňským koutem, dvě oddělené ložnice a koupelna vybavená kvalitní sanitou značek Villeroy & Boch a Hansgrohe. Interiér působí nadčasově díky dubovým parketám první třídy, italské keramice, moderním dřevo-hliníkovým rámům oken a dveří a multisplit klimatizaci, která zajišťuje komfort po celý rok.

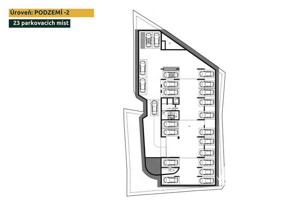
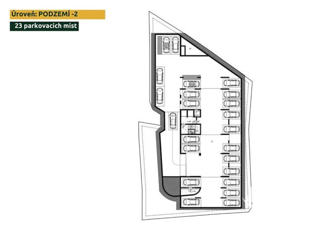
Rezidenční komplex je vybaven moderními technologiemi, které zajišťují nízké provozní náklady i maximální pohodlí – chytrá domácnost, solární panely, dvě výtahy značky OTIS, a energeticky úsporná fasáda v moderním středomořském stylu (kombinace dřeva a kamene). Projekt zahrnuje 45 bytových jednotek na 8 nadzemních podlažích a 58 parkovacích míst v podzemních garážích. Dokončení výstavby je plánováno na konec roku 2026.

Topolica je jednou z nejatraktivnějších oblastí v celém Baru. Nachází se jen pár minut chůze od pobřežní promenády a pláže s jemným štěrkem a pozvolným vstupem do moře. V bezprostředním okolí najdete veškerou občanskou vybavenost – restaurace, kavárny, obchody, sportovní centra, školy i zdravotnická zařízení. Unikátní poloha v blízkosti řeky Željeznica, hory Rumija a budoucího národního aquaparku dělá z této lokality místo, kde se setkává městský život s klidnou přírodou.

Bar je stále více vyhledáván turisty i investory, což z této nemovitosti dělá skvělou příležitost k bezpečnému zhodnocení kapitálu. Díky možnosti krátkodobého i dlouhodobého pronájmu, vysoké poptávce po kvalitním bydlení a stabilnímu trhu s nemovitostmi v Černé Hoře je tento apartmán ideální jak pro vlastní bydlení, tak jako výnosná investice. Více než 270 slunečných dní ročně navíc zajišťuje celoroční atraktivitu.

Naše realitní kancelář se specializuje na prémiové nemovitosti v přímořských destinacích. Zajišťujeme kompletní servis – od výběru nemovitosti přes právní poradenství až po administrativní podporu. Pomůžeme vám najít ideální domov u moře nebo bezpečnou investici do budoucnosti.

Neváhejte nás kontaktovat pro více informací nebo sjednání osobní prohlídky. Tento apartmán může být vaším prvním krokem k vlastnímu místu na slunci.

Cena
182 700 € /za nemovitost
Aktualizováno
2. 11. 2025
Adresa
Bar
ID
F18240
Stavba
Cihlová
Stav objektu
Ve výstavbě
Patro
7. z 9
Vybaveno
Částečně
Lokalita objektu
Klidná část obce
Vlastnictví
Osobní
Užitná plocha
57 m2
Podlahová plocha
63 m2
Elektřina
230V
Odpad
Veřejná kanalizace
Topení
Lokální elektrické
Telekomunikace
Internet
Doprava
Dálnice, Silnice, MHD, Autobus
Voda
Vodovod
Terasa
Výtah
Parkování

Máte zájem o tuto nemovitost?

Tímto, v souladu s nařízením Evropského parlamentu a Rady (EU) 2016/679, v platném znění, prohlašuji, že mi je alespoň 16 let a uděluji tak svůj souhlas se zpracováním zadaných údajů (jméno, telefon, e-mail, ip adresa) společnosti B3 Technology, s.r.o., IČ: 07330600, se sídlem Novostavby 126/23, 435 11 Lom (správce dat), za účelem předání dotazu z tohoto formuláře Vámi vybranému inzerentovi a zpětného kontaktování mé osoby. Osobní údaje bude správce zpracovávat manuálně i automaticky přímo prostřednictvím svých zaměstnanců. Informace předané tímto formulářem budou uloženy v databázi správce maximálně po dobu 10 let. Odvolání souhlasu s uložením a zpracováním poskytnutých dat lze e-mailem na info@realitymat.cz. V případě podezření na neoprávněné použití Vámi poskytnutých údajů máte právo předat podnět k šetření Úřadu pro ochranu osobních údajů. Více informací
Chystáte se prodat nemovitost?
Pomůžeme Vám!

Kontakt

Nikša Marinkovič

Nikša Marinkovič

Přihlášení k odběru

Nenechte si ujít nejnovější nabídky prodeje bytů 3+kk.

Podobné nabídky