Prodej bytu 2+kk, Stari Grad, Chorvatsko, 57 m2 (ID: 1991523)

Stari Grad


205 000 € /za nemovitost

Regionální dodavatelé

Popis

Na prodej je moderní apartmán v přízemí novostavby s celkem čtyřmi bytovými jednotkami, jen 220 metrů od moře a 2,5 kilometru od centra Selin. Tento pečlivě navržený byt nabízí ideální kombinaci středomořského pohodlí, funkčnosti a nádherného výhledu na moře – perfektní volbu pro klidné bydlení i rekreační pobyt u Jadranu.

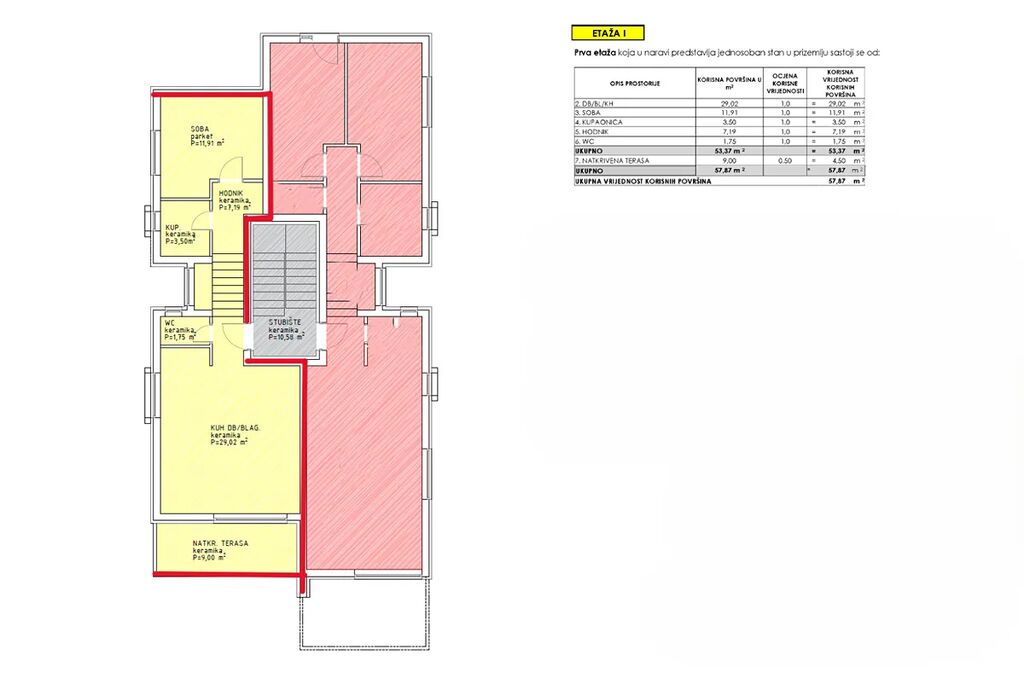
Celková užitná plocha bytu včetně příslušenství činí 66,26 m². Dispozice je velmi promyšlená – vstupní chodba s několika schody do polopodlaží, otevřený obývací prostor s jídelnou a kuchyní, jedna ložnice, koupelna, samostatné WC a krytá terasa s výhledem na moře. Byt má vlastní parkovací místo o velikosti 13,75 m², dlážděnou část zahrady (4,38 m²), zatravněnou plochu (42,70 m²) a dekorativní květinový záhon (4,85 m²).

Interiér je prosvětlený, funkční a snadno udržovatelný. Vytápění je zajištěno elektrickým podlahovým topením v obývacím pokoji, kuchyni, jídelně a koupelně. Klimatizaci poskytují dvě jednotky – jedna v obývacím pokoji, druhá v ložnici.

Budova byla postavena z kvalitních cihelných termo bloků, zateplena 10 cm polystyrenem a vybavena PVC okny. Podlahy jsou keramické, vstupní dveře jsou protipožární i bezpečnostní. Přístup k nemovitosti vede po veřejné asfaltové komunikaci. Očekávaný energetický certifikát je třídy A, což zaručuje nízké provozní náklady a komfortní klima po celý rok. Kupující neplatí daň z převodu nemovitosti.

Seline se rozkládají na pobřeží Velebitského kanálu, přímo pod majestátním pohořím Velebit a v těsné blízkosti Národního parku Paklenica. Toto místo je jako stvořené pro milovníky přírody – nabízí nádherné pláže, křišťálově čisté moře, horské stezky i moderní turistickou infrastrukturu. Všechny každodenní služby, restaurace i obchody jsou v dosahu.

Tento apartmán představuje dokonalé spojení moderního komfortu, klidu a středomořské atmosféry. Ideální místo pro letní dovolenou, trvalé bydlení nebo investici s jistou návratností – moře, hory i příroda máte doslova na dosah ruky.

Cena
205 000 € /za nemovitost
Aktualizováno
2. 11. 2025
Adresa
Stari Grad
ID
F19586
Stavba
Cihlová
Stav objektu
Novostavba
Patro
1. z 3
Vybaveno
Částečně
Lokalita objektu
Klidná část obce
Vlastnictví
Osobní
Užitná plocha
57 m2
Podlahová plocha
66 m2
Elektřina
230V
Odpad
Veřejná kanalizace, ČOV pro celý objekt
Topení
Lokální elektrické
Telekomunikace
Internet
Doprava
Dálnice, Silnice, Autobus
Voda
Vodovod
Terasa
Výtah
Parkování

Máte zájem o tuto nemovitost?

Tímto, v souladu s nařízením Evropského parlamentu a Rady (EU) 2016/679, v platném znění, prohlašuji, že mi je alespoň 16 let a uděluji tak svůj souhlas se zpracováním zadaných údajů (jméno, telefon, e-mail, ip adresa) společnosti B3 Technology, s.r.o., IČ: 07330600, se sídlem Novostavby 126/23, 435 11 Lom (správce dat), za účelem předání dotazu z tohoto formuláře Vámi vybranému inzerentovi a zpětného kontaktování mé osoby. Osobní údaje bude správce zpracovávat manuálně i automaticky přímo prostřednictvím svých zaměstnanců. Informace předané tímto formulářem budou uloženy v databázi správce maximálně po dobu 10 let. Odvolání souhlasu s uložením a zpracováním poskytnutých dat lze e-mailem na info@realitymat.cz. V případě podezření na neoprávněné použití Vámi poskytnutých údajů máte právo předat podnět k šetření Úřadu pro ochranu osobních údajů. Více informací
Chystáte se prodat nemovitost?
Pomůžeme Vám!

Kontakt

Nikša Marinkovič

Nikša Marinkovič

Přihlášení k odběru

Nenechte si ujít nejnovější nabídky prodeje bytů 2+kk.

Podobné nabídky