Remax Monarcha

Pronájem komerční nemovitosti, Drahanovice, 9 m2

Drahanovice


6 500 Kč /za měsíc
Získejte výhodnou HYPOTÉKU

(bez poplatků)


Regionální dodavatelé v Drahanovicích

Popis

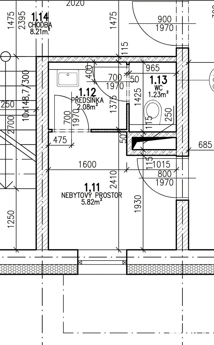
Nabízíme k pronájmu komerční prostor v novostavbě bytového domu se 12 byty v obci Drahanovice.

Prostor je zkolaudován na provoz kosmetiky, masážní salón, ale není problém provozovat manikúru, pedikúru atd.

Nebytový prostor sestává ze samostatné místnosti, předsíně s umyvadlem a skříňkou, samostatné toalety.
Dle přání je možnost osadit i druhé umyvadlo v první místnosti.
Na fotografiích ještě umyvadla chybí, taktéž se bude ještě finálně malovat.
Nechybí zde také videotelefon a bezbariérový přístup.
Volné ihned.
Pro více informací kontaktujte realitního makléře.

Cena
6 500 Kč /za měsíc
Poznámka k ceně
bez poplatků
Aktualizováno
30. 10. 2025
Adresa
Drahanovice
ID
00247
Stavba
Cihlová
Stav objektu
Novostavba
Patro
1. z 3
Vybaveno
Částečně
Lokalita objektu
Klidná část obce
Užitná plocha
9 m2
Třída energetické náročnosti
B - Velmi úsporná
Ukazatel energetické náročnosti
67 kWh/m2 za rok
Elektřina
230V
Odpad
Veřejná kanalizace
Komunikace
Asfaltová
Telekomunikace
Internet
Doprava
Vlak, Silnice, Autobus
Voda
Místní zdroj vody
Topné těleso
Přímotop
Zdroj topení
Přímotop
Zdroj teplé vody
Bojler - elektro
Výtah
Bezbarierový přístup
Parkování

Máte zájem o tuto nemovitost?

Tímto, v souladu s nařízením Evropského parlamentu a Rady (EU) 2016/679, v platném znění, prohlašuji, že mi je alespoň 16 let a uděluji tak svůj souhlas se zpracováním zadaných údajů (jméno, telefon, e-mail, ip adresa) společnosti B3 Technology, s.r.o., IČ: 07330600, se sídlem Novostavby 126/23, 435 11 Lom (správce dat), za účelem předání dotazu z tohoto formuláře Vámi vybranému inzerentovi a zpětného kontaktování mé osoby. Osobní údaje bude správce zpracovávat manuálně i automaticky přímo prostřednictvím svých zaměstnanců. Informace předané tímto formulářem budou uloženy v databázi správce maximálně po dobu 10 let. Odvolání souhlasu s uložením a zpracováním poskytnutých dat lze e-mailem na info@realitymat.cz. V případě podezření na neoprávněné použití Vámi poskytnutých údajů máte právo předat podnět k šetření Úřadu pro ochranu osobních údajů. Více informací
Chystáte se prodat nemovitost?
Pomůžeme Vám!

Kontakt

Otakar Ledvinka

Otakar Ledvinka

Přihlášení k odběru

Nenechte si ujít nejnovější nabídky pronájmu komerčních nemovitostí v Drahanovicích.

Podobné nabídky