Pronájem bytu 3+1, Rosice, Komenského náměstí, 82 m2

Komenského náměstí, Rosice


22 000 Kč /za měsíc
Získejte výhodnou HYPOTÉKU

(+ 5000,- inkaso)


Regionální dodavatelé v Rosicích

Popis

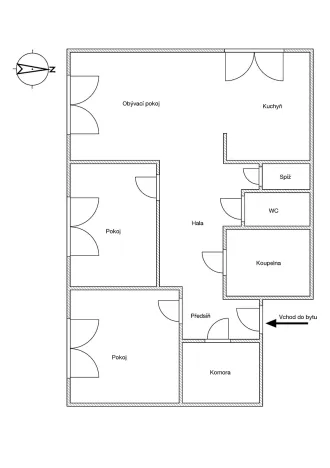
Nadstandardně prostorný bezbariérový byt 3+1 (82,25 m²) k pronájmu v srdci Rosic – klid, světlo a pohodlí na dosah

Hledáte byt k pronájmu, kde se budete cítit opravdu doma? Nabízíme vám výjimečně světlý a vzdušný byt o dispozici 3+1 a výměře 82,25 m², umístěný v přízemí pečlivě udržovaného bytového domu jen pár kroků od rosického náměstí. Tento byt je ideální volbou pro rodinu, seniory i osoby se sníženou pohyblivostí – díky zcela bezbariérovému přístupu nejen do domu, ale i v celém bytě samotném.

Dispozičně je byt řešen s důrazem na soukromí a funkčnost. Po vstupu do předsíně vás přivítá příjemný pocit prostoru. Odtud vedou samostatné vstupy do prostorného dětského pokoje a šikovné komory. Následuje útulná centrální hala, která je rozcestníkem do všech klíčových místností – ložnice, koupelny, samostatného WC, spižírny a velkorysého obývacího pokoje. Z něj pak plynule vstoupíte do oddělené kuchyně, která nabízí dostatek místa pro vaření i rodinné stolování.

Všechny pokoje jsou neprůchozí, vzdušné a krásně prosvětlené díky velkým oknům, která propouští dostatek denního světla po celý den. Celý byt působí klidně a harmonicky – ideální prostředí pro pohodové bydlení.

Byt se pronajímá částečně zařízený – v obývacím pokoji zůstává sedačka a kuchyňská linka se spotřebiči.

K bytu náleží i sklep, který nabízí praktický úložný prostor. Bytový dům má dva vstupy, z nichž jeden je plně bezbariérový, což ještě více zvyšuje komfort přístupu.

Lokalita je skutečně výjimečná – klidná ulice v těsné blízkosti rosického náměstí, s výbornou dostupností veškeré občanské vybavenosti: obchody, školky, školy, lékaři, pošta, úřady i kulturní vyžití. Vše máte doslova pár kroků od domovních dveří.

Tento byt nabízí dokonalé spojení praktičnosti, pohodlí a skvělé polohy. Pokud hledáte pronájem, kde se budete cítit opravdu dobře, je to právě tady. Doporučujeme osobní prohlídku – atmosféra bytu vás příjemně překvapí.

Cena
22 000 Kč /za měsíc
Poznámka k ceně
+ 5000,- inkaso
Aktualizováno
30. 10. 2025
Adresa
Komenského náměstí, Rosice
ID
25102901
Stavba
Cihlová
Stav objektu
Velmi dobrý
Patro
1.
Vlastnictví
Osobní
Užitná plocha
82 m2
Sklep

Máte zájem o tuto nemovitost?

Tímto, v souladu s nařízením Evropského parlamentu a Rady (EU) 2016/679, v platném znění, prohlašuji, že mi je alespoň 16 let a uděluji tak svůj souhlas se zpracováním zadaných údajů (jméno, telefon, e-mail, ip adresa) společnosti B3 Technology, s.r.o., IČ: 07330600, se sídlem Novostavby 126/23, 435 11 Lom (správce dat), za účelem předání dotazu z tohoto formuláře Vámi vybranému inzerentovi a zpětného kontaktování mé osoby. Osobní údaje bude správce zpracovávat manuálně i automaticky přímo prostřednictvím svých zaměstnanců. Informace předané tímto formulářem budou uloženy v databázi správce maximálně po dobu 10 let. Odvolání souhlasu s uložením a zpracováním poskytnutých dat lze e-mailem na info@realitymat.cz. V případě podezření na neoprávněné použití Vámi poskytnutých údajů máte právo předat podnět k šetření Úřadu pro ochranu osobních údajů. Více informací
Chystáte se prodat nemovitost?
Pomůžeme Vám!

Kontakt

Ilona Peňázová

Ilona Peňázová

Přihlášení k odběru

Nenechte si ujít nejnovější nabídky pronájmu bytů 3+1 v Rosicích (okr. Brno-venkov).

Podobné nabídky