Prodej domu na klíč, Dolní Tošanovice, 85 m2

Dolní Tošanovice


6 670 000 Kč /za nemovitost
HYPOTÉKA od 29 811 Kč /měs.
Regionální dodavatelé v Dolních Tošanovicích

Popis

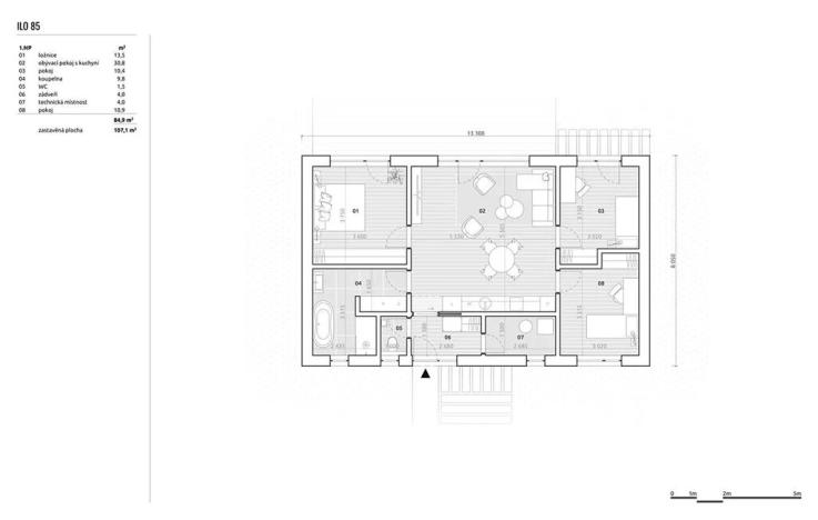
Nabízíme k realizaci projekt rodinného domu na klíč, realizovaný ve spolupráci s renomovanou stavební firmou ILO domy s.r.o., která zaručuje vysokou kvalitu a profesionální přístup, umístěného na prostorném pozemku o výměře 1042 m2. Tento moderně navržený dům o dispozici 4+KK a užitné ploše 85 m2 kombinuje funkčnost a estetiku.

Nejmenší dřevostavba z nabídky ILO domu se snaží nabídnout maximální komfort a kvalitu bydleni při zachování minimálních investičních nákladů. Dispoziční řešení proto usiluje o minimalizaci obslužných prostor chodeb a místo toho umísťuje do středu objektu velký obytný prostor. Na nej navazuji jednotlivé ložnice, technické zázemí je umístěno u vstupní strany objektu.

Jednoduchá a účelná dispozice se odráží i v racionálním řešení hmoty a exteriéru. Jednoduchý tvar, jen nutné okenní otvory směrem k ulici, velkorysé proskleni do zahrady. Boční štíty jsou záměrně slepé, aby bylo umožněno osazeni na co nejmenší pozemek. Fasádu tvoří jen omítka, ve vybraných místech je použito její strukturování. V ceně je zahrnuta základová deska a tepelné čerpadlo.

Tento dům je možné si osobně prohlédnout v showroomu v Moravské Ostravě na ulici Varenská 3309.

Inženýrské sítě: na pozemku je již elektrická, vodovodní a plynová přípojka.

Lokalita s Vynikající Dostupností

Dolní Tošanovice nabízí poklidné venkovské bydlení, ale zároveň se pyšní perfektním napojením na dálnici, což zajišťuje výbornou a rychlou dostupnost do okolních větších měst. Získáte tak dokonalou rovnováhu mezi klidem domova a snadnou dosažitelností práce či služeb.

Pro více informací nás prosím kontaktujte.

Cena
6 670 000 Kč /za nemovitost Spočítat hypotéku
Aktualizováno
29. 10. 2025
Adresa
Dolní Tošanovice
ID
257
Stavba
Dřevěná
Stav objektu
Novostavba
Druh objektu
Samostatný
Užitná plocha
85 m2
Zastavěná plocha
100 m2
Podlahová plocha
85 m2
Plocha pozemku
1042 m2
Plocha zahrady
942 m2
Třída energetické náročnosti
B - Velmi úsporná
Elektřina
230V, 400V
Plyn
Plynovod
Odpad
ČOV pro celý objekt, Jímka
Komunikace
Asfaltová
Voda
Vodovod
Zdroj topení
Tepelné čerpadlo
Bezbarierový přístup

Máte zájem o tuto nemovitost?

Tímto, v souladu s nařízením Evropského parlamentu a Rady (EU) 2016/679, v platném znění, prohlašuji, že mi je alespoň 16 let a uděluji tak svůj souhlas se zpracováním zadaných údajů (jméno, telefon, e-mail, ip adresa) společnosti B3 Technology, s.r.o., IČ: 07330600, se sídlem Novostavby 126/23, 435 11 Lom (správce dat), za účelem předání dotazu z tohoto formuláře Vámi vybranému inzerentovi a zpětného kontaktování mé osoby. Osobní údaje bude správce zpracovávat manuálně i automaticky přímo prostřednictvím svých zaměstnanců. Informace předané tímto formulářem budou uloženy v databázi správce maximálně po dobu 10 let. Odvolání souhlasu s uložením a zpracováním poskytnutých dat lze e-mailem na info@realitymat.cz. V případě podezření na neoprávněné použití Vámi poskytnutých údajů máte právo předat podnět k šetření Úřadu pro ochranu osobních údajů. Více informací
Chystáte se prodat nemovitost?
Pomůžeme Vám!

Kontakt

Dis. Ladislav Holexa

Dis. Ladislav Holexa

Přihlášení k odběru

Nenechte si ujít nejnovější nabídky prodeje domů na klíč v Dolních Tošanovicích.

Podobné nabídky