Prodej bytu 4+kk, Praha - Michle, Sedlčanská, 115 m2 (ID: 1988436)

Sedlčanská, Praha, Michle


14 900 000 Kč /za nemovitost
HYPOTÉKA od 66 594 Kč /měs.
Regionální dodavatelé v Praze

Stěhovací služby

Výkup a prodej starého nábytku

Popis

Evidenční číslo / ID zakázky: VS243

Byt, který nabízí příjemné ranní světlo díky východní orientaci lodžií a výhled, který si budete chtít užívat každý den.

Střešní terasa s výhledem na město je skutečnou perlou tohoto bytu – z této výšky v 11. nadzemním podlaží se otevírá vzácný panoramatický výhled na celou Prahu. Toto výjimečné místo vytváří jedinečnou atmosféru a výrazně zvyšuje atraktivitu pobytu.

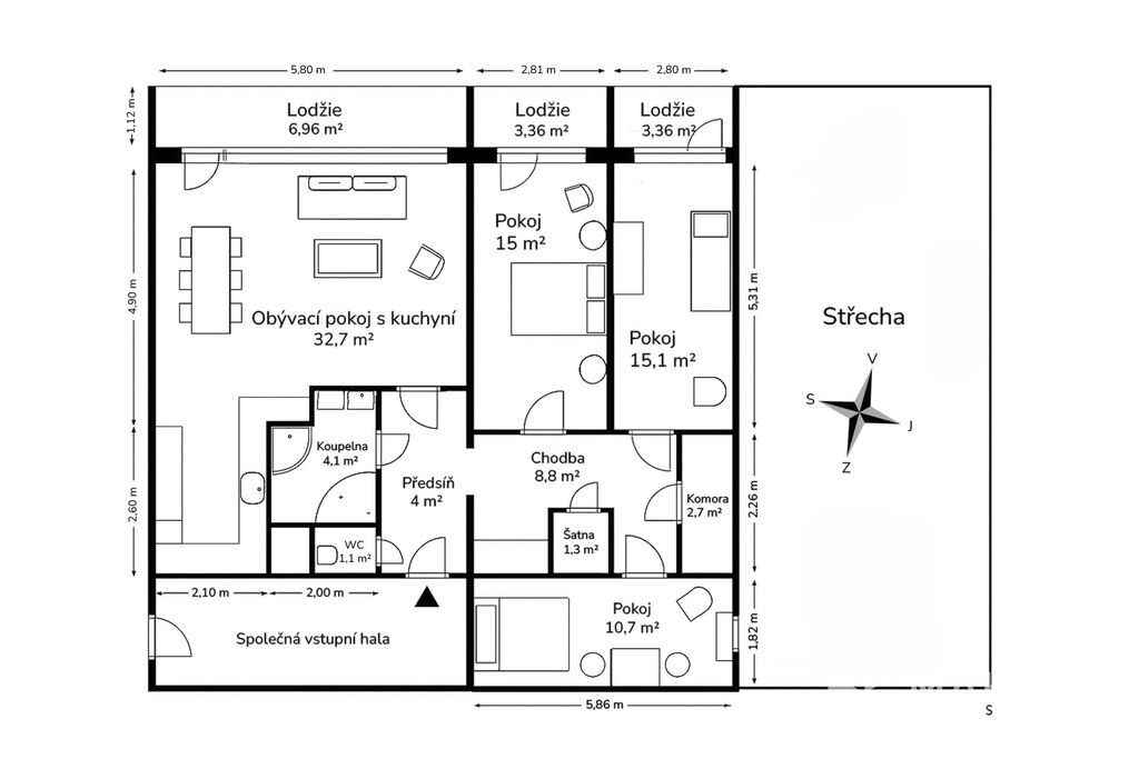
Prostorný a stylově zrekonstruovaný byt 4+kk s úchvatným výhledem na město. Tento nadstandardní byt v revitalizovaném domě přímo u stanice metra Kačerov (linka C) nabízí výbornou dostupnost do centra i na pražský okruh, tři lodžie, praktickou sklepní kóji a možnost parkování přímo pod domem.

Byt o celkové ploše 115,38 m2 (podlahová 101,7 m2 + lodžie 6,96 m2, 3,36 m2 a 3,36 m2, nezapočítávají se sklep 1 m2 a zádveří 4,30 m2) prošel kompletní a velmi vkusnou rekonstrukcí, která klade důraz na kvalitu i estetiku. Interiér se pyšní prostorným obývacím pokojem s kuchyňským koutem, odkud je vstup na prostornou první lodžii o výměře 6,96 m2. Dvě ze tří neprůchozích ložnic mají rovněž lodžii o výměře 3,36 m2 a orientaci na východ, takže je byt plný ranního slunce. Zbývající ložnice je vybavena francouzským oknem s přístupem na střešní terasu – ideální pro ty, kdo si chtějí užít soukromí a výhled na město. Díky francouzskému oknu je ložnice příjemně prosvětlená a vytváří útulnou atmosféru, zatímco výhled na okolní město dodává interiéru vzdušnost a zajímavou perspektivu. Elegantní koupelna se sprchovým koutem, toaletou a praktickými úložnými prostory s designovým LED podsvícením je skutečnou ozdobou tohoto bytu. V bytě se nachází i samostatné WC.

Přímo před domem se nachází prostorné parkoviště, což je další výhodou této nabídky. Součástí domu je zázemí se sklepy a revitalizované společné prostory, vše podpořeno kvalitní správou SVJ. Dům prošel rozsáhlou rekonstrukcí včetně výtahů, střechy, fasády, elektroinstalace i optických sítí.

Tato žádaná čtvrť nabízí kompletní občanskou vybavenost v bezprostřední blízkosti – restaurace, supermarkety, kavárny i sportovní centra. Nákupní centra Arkády Pankrác a DBK Budějovická jsou vzdálena jen pár minut metrem. Četné autobusové linky, vlaková stanice i výjezd na dálnici D1 zajišťují bezproblémové dopravní spojení do centra i mimo Prahu. Kunratický les leží jen několik minut autem pro příjemné procházky v přírodě.

Pokud toužíte po výjimečném bydlení na výšinách, a přitom v těsné blízkosti metra, je tento nově a velmi zdařile zrekonstruovaný byt připraven k prohlídce. Přijďte se sami přesvědčit o jeho kvalitách — rádi vám ukážeme každý detail osobně.

Energetická třída PENB C — úsporná.
Pro více informací a sjednání prohlídky kontaktujte prosím realitního makléře.

Cena
14 900 000 Kč /za nemovitost Spočítat hypotéku
Aktualizováno
29. 10. 2025
Adresa
Sedlčanská, Praha, Michle
ID
VS243-1
Stavba
Panelová
Stav objektu
Novostavba
Patro
11. z 11
Vybaveno
Ano
Vlastnictví
Osobní
Užitná plocha
115 m2
Třída energetické náročnosti
C - Úsporná
Ukazatel energetické náročnosti
67 kWh/m2 za rok
Sklep
Lodžie
Výtah

Máte zájem o tuto nemovitost?

Tímto, v souladu s nařízením Evropského parlamentu a Rady (EU) 2016/679, v platném znění, prohlašuji, že mi je alespoň 16 let a uděluji tak svůj souhlas se zpracováním zadaných údajů (jméno, telefon, e-mail, ip adresa) společnosti B3 Technology, s.r.o., IČ: 07330600, se sídlem Novostavby 126/23, 435 11 Lom (správce dat), za účelem předání dotazu z tohoto formuláře Vámi vybranému inzerentovi a zpětného kontaktování mé osoby. Osobní údaje bude správce zpracovávat manuálně i automaticky přímo prostřednictvím svých zaměstnanců. Informace předané tímto formulářem budou uloženy v databázi správce maximálně po dobu 10 let. Odvolání souhlasu s uložením a zpracováním poskytnutých dat lze e-mailem na info@realitymat.cz. V případě podezření na neoprávněné použití Vámi poskytnutých údajů máte právo předat podnět k šetření Úřadu pro ochranu osobních údajů. Více informací
Chystáte se prodat nemovitost?
Pomůžeme Vám!

Kontakt

Makers Reality

Makers Reality

Přihlášení k odběru

Nenechte si ujít nejnovější nabídky prodeje bytů 4+kk v Praze.

Podobné nabídky