Prodej pozemku, Starý Plzenec, Heydukova, 809 m2

Heydukova, Starý Plzenec


7 500 000 Kč
HYPOTÉKA od 33 520 Kč /měs.

(včetně provize RK)


Regionální dodavatelé v Starém Plzenci

Podlahy

Stěhovací služby

Popis

Hledáte místo pro výstavbu svého vysněného domova kousek od Plzně, ale s dostatkem klidu, zeleně a soukromí?
Pak vás zaujme tato nabídka pozemku se starším rodinným domem v původním stavu, který se nachází v oblíbené a klidné části Heydukovy ulice ve Starém Plzenci.
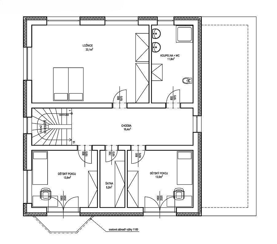
Součástí prodeje je přízemní rodinný dům o dispozici 2+kk, částečně podsklepený, s aktuální užitnou plochou 68 m². Objekt je určen ke kompletní rekonstrukci nebo demolici. Současní majitelé měli zpracovanou studii přestavby na moderní patrový dům 5+kk s dvojgaráží, která je k dispozici mezi fotografiemi – můžete ji využít jako inspiraci pro své vlastní bydlení.
Z technické infrastruktury je dům napojen na elektřinu, veřejný vodovod a kanalizaci. Plyn je veden v komunikaci před domem s možností připojení. Na pozemku se dále nachází zděná kolna.
Pozemek o velikosti 809 m² je rovinatý, slunný a velmi dobře přístupný. Zahrada s vzrostlými ovocnými stromy nabízí dostatek soukromí a příjemné prostředí pro odpočinek i rodinné zázemí.
Významnou výhodou této nabídky je možnost využití státních dotací na rekonstrukci domu (např. z programů typu Oprav dům po babičce, Nová zelená úsporám apod. ), které vám pomůžeme kompletně vyřídit na klíč – od návrhu až po schválení dotace.
Starý Plzenec nabízí kompletní občanskou vybavenost – školu, školku, obchody i restaurace. Výborné dopravní spojení do Plzně – autem cca 10 minut, k dispozici je i autobusová a vlaková doprava.
S vyřízením financování i dotačních programů vám rádi bezplatně pomůžeme.
Neváhejte a domluvte si prohlídku, ať můžete naplno využít potenciál tohoto klidného a krásného místa!

Cena
7 500 000 Kč Spočítat hypotéku
Poznámka k ceně
včetně provize RK
Aktualizováno
28. 10. 2025
Adresa
Heydukova, Starý Plzenec
ID
969613
Vlastnictví
Osobní
Plocha pozemku
809 m2

Máte zájem o tuto nemovitost?

Tímto, v souladu s nařízením Evropského parlamentu a Rady (EU) 2016/679, v platném znění, prohlašuji, že mi je alespoň 16 let a uděluji tak svůj souhlas se zpracováním zadaných údajů (jméno, telefon, e-mail, ip adresa) společnosti B3 Technology, s.r.o., IČ: 07330600, se sídlem Novostavby 126/23, 435 11 Lom (správce dat), za účelem předání dotazu z tohoto formuláře Vámi vybranému inzerentovi a zpětného kontaktování mé osoby. Osobní údaje bude správce zpracovávat manuálně i automaticky přímo prostřednictvím svých zaměstnanců. Informace předané tímto formulářem budou uloženy v databázi správce maximálně po dobu 10 let. Odvolání souhlasu s uložením a zpracováním poskytnutých dat lze e-mailem na info@realitymat.cz. V případě podezření na neoprávněné použití Vámi poskytnutých údajů máte právo předat podnět k šetření Úřadu pro ochranu osobních údajů. Více informací
Chystáte se prodat nemovitost?
Pomůžeme Vám!

Kontakt

Bc. Jan Měsíček

Bc. Jan Měsíček

Přihlášení k odběru

Nenechte si ujít nejnovější nabídky prodeje pozemků v Starém Plzenci.

Podobné nabídky