Prodej bytu 3+kk, Praha - Radlice, Na Farkáně III, 60 m2
Na Farkáně III, Praha 5 - Radlice
(včetně provize RK)
Popis
Chcete parádní výhled do Radlického údolí a jistotu, že před Vámi nevyroste developerský projekt? Máme.
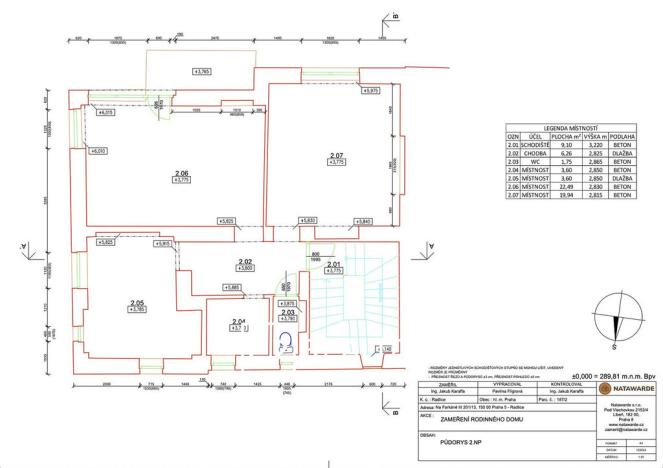
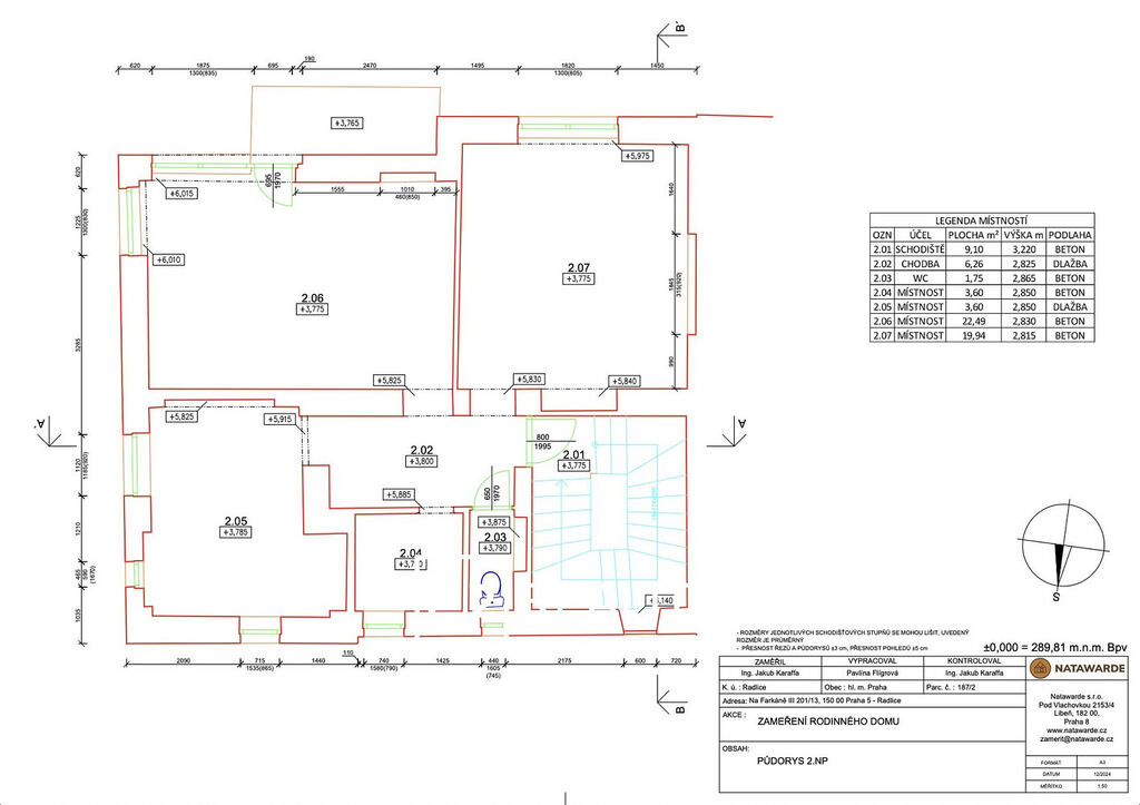
Exkluzivně nabízíme v předprodeji půdní prostor, v současnosti vedený jako "jiný nebytový prostor", čekáme na stavební úřad pro přepis na byt. Prostor je v současné době úplně otevřený a je možno dispozici libovolně upravit. V náhledu je náš návrh vnitřního prostoru na 3+kk. Všechny velké stavební úpravy půdy jsou již hotové - nová střecha, izolace pod novým záklopem podlahy, vývod plynu, elektřiny, vody a odpadu jsou připraveny.
K půdě je možnost přikoupit garáž, která je součástí domu.
Veškerá občanská vybavenost po ruce, metro Radlická 5min. pěšky od domu. Velmi klidná ulice, kam zajíždí pouze residenti.
Neváhejte mne kontaktovat pro bližší detaily nebo prohlídku. Martin Kružlík
Máte zájem o tuto nemovitost?
Ostrovského 3167/36, Praha 5
Pomůžeme Vám!
Pomůžeme Vám!
Kontakt
 
                        Martin Kružlík
Přihlášení k odběru
Nenechte si ujít nejnovější nabídky prodeje bytů 3+kk v Praze 5.
Tipy Realitymatu
 
        Prodej bytu 4+kk, Praha - Malá Strana, Zborovská, 154 m2
33 799 000 Kč
Podobné nabídky
 
        Prodej bytu 3+kk, Praha, Na Farkáně III, 80 m2
13 550 000 Kč
 
        Prodej bytu 3+kk, Praha, Na Farkáně III, 80 m2
11 450 000 Kč
 
        Prodej bytu 3+kk, Praha, Na Farkáně III, 80 m2
12 850 000 Kč
 
        Prodej bytu 3+kk, Praha - Zličín, Mistřínská, 85 m2
10 390 000 Kč
 
                                                                                     
                                                                                     
                                                                                     
                                                                                     
                                                                                     
                                                                                     
                                                                                     
                                                                                     
                                                                                     
                                                                                     
                                                                                     
                                                                                     
                                                                                     
                                             
        