Pronájem výrobních prostor, Zlonín, Hlavní, 50 m2

Hlavní, Zlonín


35 000 Kč /za měsíc
Získejte výhodnou HYPOTÉKU

(+ poplatky za služby a energie spojené s provozem )


Regionální dodavatelé v Zloníně

Popis

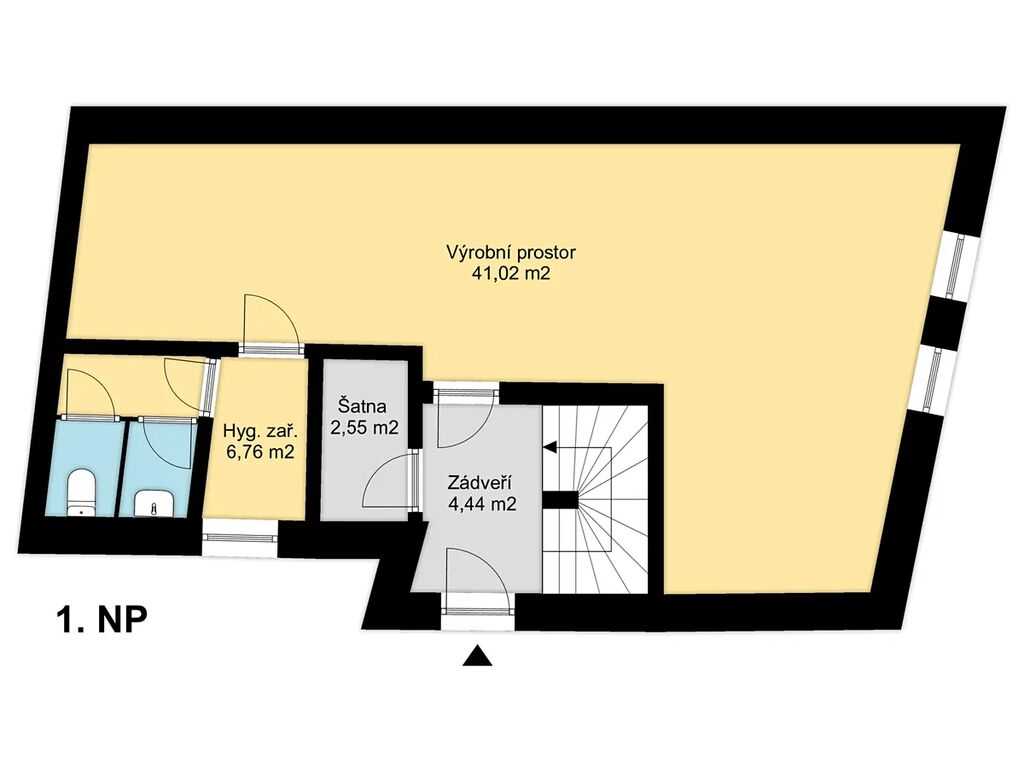
Nabízíme Vám pronájem kompletně vybaveného výrobního prostoru zkolaudovaného jako pekárna v obci Zlonín. Prostor o ploše 55 m² se nachází v přízemí patrového cihlového domu ve velmi dobrém stavu. Vybavení zahrnuje 4 malé a 1 velký nerezový stůl, 6 velkých a 1 malou nástěnnou nerezovou polici, 2 velké lednice, 1 velký mrazák, 1 plynový konvektomat s odsáváním, 1 velký a 1 malý mixér, 4 pojízdné nerezové stojany s plechy, nerezový dvojdřez a malé dřezy s výlevkami. Součástí je také šatna, WC, velká výlevka. Vytápění a ohřev vody je řešeno plynovým kotlem.

Prostor je vhodný jako výrobna nebo přípravna, nikoliv jako prodejna. Je vybaven alarmem pro zajištění bezpečnosti.

Lokace je výborně dostupná jak autem, tak veřejnou dopravou, v blízkosti se nachází železniční trať, dálnice a zastávky autobusu a MHD.

Majitel požaduje nájemné ve výši 35.000 Kč plus úhradu za služby a energie dle typu provozu. Předpokládané náklady jsou 10 - 20.000,-Kč a bude upřesněno po osobní schůzce s pronajímatelem. Majitel požaduje vratnou kauci 35.000 Kč a provize realitní kanceláře činí 35.000 Kč + DPH. Prostor je k dispozici od 1. listopadu 2025 a minimální doba nájmu je stanovena na 12 měsíců. K prostoru je možné pronajmout i bytovou jednotku 2+kk umístěnou ve 2 NP budovy za 15.000 Kč + služby a energie 5.000,-Kč, což poskytuje ideální příležitost pro spojení pracovního a obytného prostoru. Pro více informací nebo prohlídku kontaktujte realitního makléře.

Cena
35 000 Kč /za měsíc
Poznámka k ceně
+ poplatky za služby a energie spojené s provozem
Aktualizováno
28. 10. 2025
Adresa
Hlavní, Zlonín
ID
N139201
Stavba
Cihlová
Stav objektu
Velmi dobrý
Užitná plocha
50 m2
Třída energetické náročnosti
G - Mimořádně nehospodárná
Elektřina
230V, 400V
Topení
Lokální plynové
Doprava
Vlak, Dálnice, Silnice, MHD, Autobus
Voda
Vodovod

Máte zájem o tuto nemovitost?

Tímto, v souladu s nařízením Evropského parlamentu a Rady (EU) 2016/679, v platném znění, prohlašuji, že mi je alespoň 16 let a uděluji tak svůj souhlas se zpracováním zadaných údajů (jméno, telefon, e-mail, ip adresa) společnosti B3 Technology, s.r.o., IČ: 07330600, se sídlem Novostavby 126/23, 435 11 Lom (správce dat), za účelem předání dotazu z tohoto formuláře Vámi vybranému inzerentovi a zpětného kontaktování mé osoby. Osobní údaje bude správce zpracovávat manuálně i automaticky přímo prostřednictvím svých zaměstnanců. Informace předané tímto formulářem budou uloženy v databázi správce maximálně po dobu 10 let. Odvolání souhlasu s uložením a zpracováním poskytnutých dat lze e-mailem na info@realitymat.cz. V případě podezření na neoprávněné použití Vámi poskytnutých údajů máte právo předat podnět k šetření Úřadu pro ochranu osobních údajů. Více informací
Chystáte se prodat nemovitost?
Pomůžeme Vám!

Kontakt

Martin Hinšt

Martin Hinšt

Přihlášení k odběru

Nenechte si ujít nejnovější nabídky pronájmu výrobních prostor v Zloníně.

Podobné nabídky