Pronájem obchodního prostoru, Jaroměř, Jezbinská, 269 m2
Jezbinská, Jaroměř
(Cena měsíčního nájemného ve výši 40.400 Kč + služby. Vratná jistota ve výši 2x měsíčního nájemného s možností nahrazení bankovní zárukou.)
Popis
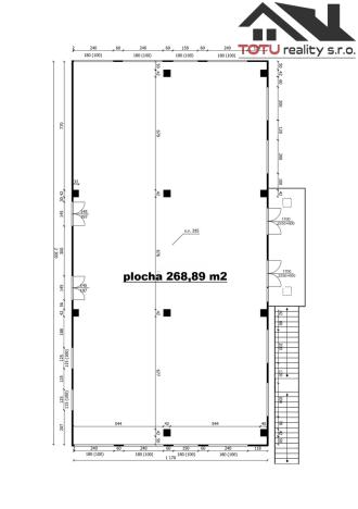
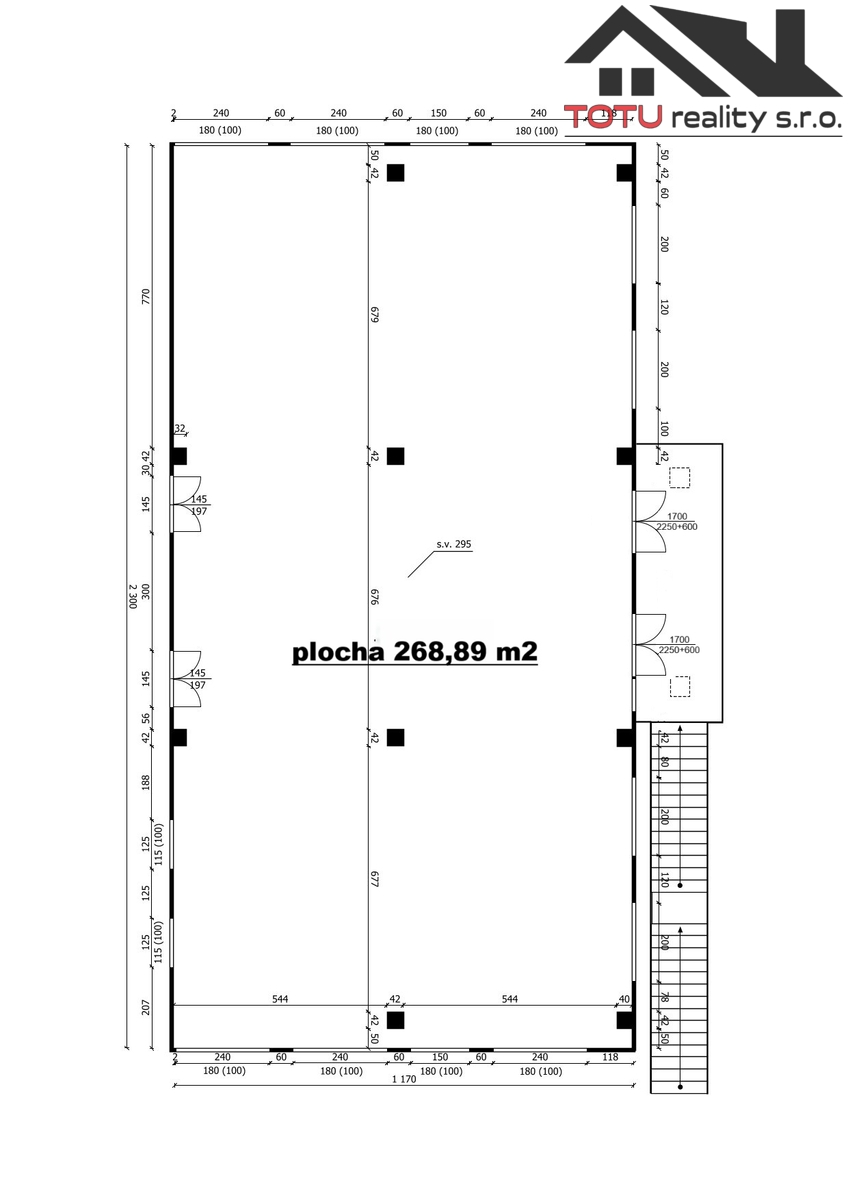
Společnost TOTU reality Jaroměř pro Vám nabízí nové reprezentativní prostory pro vaše podnikání. K dlouhodobému pronájmu nabízíme obchodní prostor v Jaroměři, ul. Jezbinská, část Pražské Předměstí, okres Náchod. Nemovitost se nachází na lukrativním místě při hlavní trase Jaroměř - Hradec Králové s dálničním nájezdem D11 ve vzdálenosti 3 km. V uzavřeném areálu Kostka Centrum se prostor nachází ve 2. NP. s podlahovou plochou 269 m2 s výškou stropu 295 cm s možností dispozičních úprav podle požadavků zakázníka. V letošním roce došlo k celkové revitalizaci budovy s předpokládanou energetickou náročností ,,B", což zajistí nízké náklady na provoz. V prostorech klimatizační jednotka, rozvody PC sítí (300/300) a zabezpečovací zařízení. Ve společných prostorech objektu, kuchyňské a sociální zázemí. Na pozemku k dispozici 15 parkovacích stání. V okolí se nachází vlakové a autobusové nádraží, čerpací stanice, banka, síť obchodů, restaurace a jiné. Prostory lze využít např. jako sklady, výrobní prostory, showroom, velkoplošné kanceláře apod. Neváhejte si zajistit termín prohlídky s možností návrhů vnitřních úprav na míru pro vaše podnikání. Cena měsíčního nájemného ve výši 40.400 Kč + služby. Doporučujme prohlídku. Více informací u makléře. Fotografie jsou ilustrativní z jiného již připraveného prostoru.
Máte zájem o tuto nemovitost?
 
                                Na Zavadilce 795, Jaroměř
Pomůžeme Vám!
Pomůžeme Vám!
Kontakt
 
                        Marian Tuček
Přihlášení k odběru
Nenechte si ujít nejnovější nabídky pronájmu obchodních prostor v Jaroměři.
 
                                                                                     
                                                                                     
                                                                                     
                                                                                     
                                                                                     
                                                                                     
                                                                                     
                                                                                     
                                                                                     
                                                                                     
                                                                                     
                                                                                     
                                                                                     
                                                                                     
                                                                                     
                                                                                     
                                                                                     
                                                                                     
                                             
         
         
        