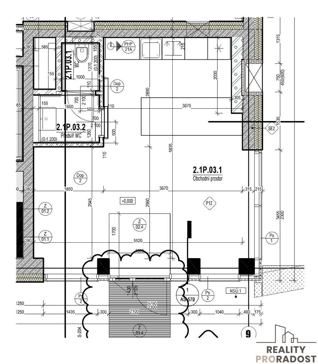
Pronájem obchodního prostoru, Brno - Zábrdovice, Bratislavská, 33 m2

Bratislavská, Brno-střed


18 000 Kč /za měsíc
Získejte výhodnou HYPOTÉKU

(+ energie a služby 3.100,- Kč + přepis elektřiny)


Regionální dodavatelé v Brně

Popis

Ve výhradním zastoupení nabízíme exkluzivní komerční prostory nacházející se přízemí právě dokončeném projektu - PONÁVKA TOWER v centru Brna. Atraktivní obchodní prostor, služby, nebo kavárna ? Toto vše a mnohem víc lze jistě úspěšně zahájit a provozovat spolu s novými majiteli a nájemci dokončeného projektu polyfunkčního domu Ponávka Tower nacházející se v jedné z nejzajímavějších brněnských lokalit centra města s přímým vstupem z ulice.
Tyto prostory vysoce komfortní byly dokončen v roce 2023, a to za použití velmi kvalitních materiálů a moderních zařízení. Jistě Vás osloví promyšleným řešením, kvalitními materiály, prvky i technologií a precizním zpracováním. Prostory májí elektronický zabezpečovací systém (magnety ve vstupních dveřích, pohybové a požární čidlo, přípravu pro kamery,). V prostoru je příprava vody (teplá, studená) + odpad pro případné využití - např. kadeřnictví / kavárna.

Náklady na bydlení / Energetická náročnost
Tento Objekt je energeticky úsporný a náklady na provoz budou velmi nízké - kategorie B - velmi úsporná.
Vnější výplně otvorů (výkladce + vstupní dveře) jsou z hliníkových profilů a izolačním trojsklem
Energie se platí zálohově, kde má prostor vlastní měření a provádí se vyúčtování. Elektroměr bude přepsán přímo na nového nájemce.
Vytápění/Chlazení je zajištěno konvektory, kde zdrojem je řešeno komfortním dálkový zdroj. Výměna vzduchu zajištěna rekuperační jednotkou.
Do prodejny je dotaženo optické vlákno distributora internetu.

Možnost jiného vhodného využití pro obchod, prodejnu / výdejnu, sídlo firmy - kanceláře, nebo rychlého občerstvení, aj. Také se nabízí konzultace s možností provedení úprav. Návštěvnosti těchto prostor taktéž přispívají vysoká frekvence osob, zastávka MHD a nové výstavby v těsné blízkosti. Vzhledem k velmi dobré dostupnosti a exkluzivní lokalitě je možno tyto prostory dále využít jako prodejnu značkového oblečení, zázemí pro internetový obchod, prodejnu specializovaného zboží, servis, služby apod.

Volné od 01.12.

Doporučujeme.

Cena
18 000 Kč /za měsíc
Poznámka k ceně
+ energie a služby 3.100,- Kč + přepis elektřiny
Aktualizováno
27. 10. 2025
Adresa
Bratislavská, Brno-střed
ID
28087
Stavba
Smíšená
Stav objektu
Novostavba
Vybaveno
Ne
Typ objektu
Přízemní
Užitná plocha
33 m2
Zastavěná plocha
33 m2
Třída energetické náročnosti
B - Velmi úsporná
Odpad
Veřejná kanalizace
Telekomunikace
Kabelové rozvody
Doprava
Silnice, MHD, Autobus
Výtah
Převod do OV

Máte zájem o tuto nemovitost?

Tímto, v souladu s nařízením Evropského parlamentu a Rady (EU) 2016/679, v platném znění, prohlašuji, že mi je alespoň 16 let a uděluji tak svůj souhlas se zpracováním zadaných údajů (jméno, telefon, e-mail, ip adresa) společnosti B3 Technology, s.r.o., IČ: 07330600, se sídlem Novostavby 126/23, 435 11 Lom (správce dat), za účelem předání dotazu z tohoto formuláře Vámi vybranému inzerentovi a zpětného kontaktování mé osoby. Osobní údaje bude správce zpracovávat manuálně i automaticky přímo prostřednictvím svých zaměstnanců. Informace předané tímto formulářem budou uloženy v databázi správce maximálně po dobu 10 let. Odvolání souhlasu s uložením a zpracováním poskytnutých dat lze e-mailem na info@realitymat.cz. V případě podezření na neoprávněné použití Vámi poskytnutých údajů máte právo předat podnět k šetření Úřadu pro ochranu osobních údajů. Více informací
Chystáte se prodat nemovitost?
Pomůžeme Vám!

Kontakt

Adam Trčka

Adam Trčka

Přihlášení k odběru

Nenechte si ujít nejnovější nabídky pronájmu obchodních prostor v Brně.

Podobné nabídky