Prodej bytu 3+kk, Praha - Stodůlky, Za Mototechnou, 81 m2

Za Mototechnou, Praha, Stodůlky


12 900 000 Kč /za nemovitost
HYPOTÉKA od 57 655 Kč /měs.
Regionální dodavatelé v Praze 5

Stěhovací služby

Výkup a prodej starého nábytku

Popis

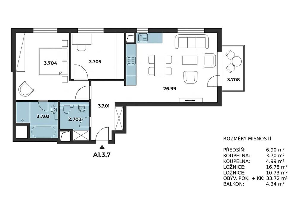
Prodej bytu 3+kk s balkonem, sklepem a parkovacím stáním – Praha 5, ul. Za Mototechnou

Nabízíme k prodeji moderní byt o dispozici 3+kk v novostavbě projektu Nad Motolským hájem, situovaný v klidné části Prahy 5 – Motol. Byt se nachází v atraktivní lokalitě s výbornou dostupností do centra a kompletní občanskou vybaveností v okolí. Součástí nabídky je balkon s výhledem na Prahu, sklepní kóje a vlastní podzemní parkovací stání umístěné přímo naproti výtahu, což výrazně usnadňuje každodenní využívání.

Interiér bytu je navržen v minimalistickém stylu s důrazem na světlo, prostor a funkčnost. Obývací pokoj s kuchyňským koutem je propojen s balkonem, který nabízí příjemné posezení s výhledem do zeleně i na město. Kuchyně je vybavena moderními vestavěnými spotřebiči a výrazným barevným obkladem. Ložnice i další pokoj jsou světlé, s dostatkem úložného prostoru. V bytě se nachází dvě koupelny – jedna s vanou, druhá se sprchovým koutem, což výrazně zvyšuje komfort pro rodinu i návštěvy. V předsíni se nachází vestavěné skříně a zrcadlové dveře, které opticky zvětšují prostor.

Byt je vybaven plovoucími podlahami, izolačními dvojskly, bezpečnostními dveřmi, domovním telefonem, přípravou pro automatickou pračku a dalšími prvky standardního vybavení. K bytu náleží sklepní kóje a parkovací stání v garáži s dálkovým ovládáním.

Dům má dva samostatné vstupy, což zajišťuje pohodlný přístup z různých stran objektu. K dispozici jsou také dvě kolárny a samostatná místnost pro uložení bobů či sportovního vybavení, což ocení zejména rodiny s dětmi nebo aktivní obyvatelé.

Lokalita vyniká klidným prostředím plným zeleně, v blízkosti se nachází autobusová zastávka s rychlým spojením na metro B (Stodůlky, Hůrka, Nové Butovice). V okolí jsou školy, školky, lékárny, nemocnice, obchody, restaurace, golfové hřiště i dětská hřiště.

V případě zájmu o prohlídku nebo více informací nás neváhejte kontaktovat. Tento byt představuje ideální kombinaci moderního bydlení, přírody a městské dostupnosti.

Cena
12 900 000 Kč /za nemovitost Spočítat hypotéku
Aktualizováno
25. 10. 2025
Adresa
Za Mototechnou, Praha, Stodůlky
ID
40
Stavba
Smíšená
Stav objektu
Velmi dobrý
Patro
3. z 5
Vlastnictví
Osobní
Užitná plocha
81 m2
Třída energetické náročnosti
C - Úsporná
Elektřina
230V
Odpad
Veřejná kanalizace
Komunikace
Asfaltová
Doprava
Vlak, Dálnice, Silnice, MHD, Autobus
Voda
Vodovod
Balkon
Sklep
Výtah
Bezbarierový přístup
Parkování

Máte zájem o tuto nemovitost?

Tímto, v souladu s nařízením Evropského parlamentu a Rady (EU) 2016/679, v platném znění, prohlašuji, že mi je alespoň 16 let a uděluji tak svůj souhlas se zpracováním zadaných údajů (jméno, telefon, e-mail, ip adresa) společnosti B3 Technology, s.r.o., IČ: 07330600, se sídlem Novostavby 126/23, 435 11 Lom (správce dat), za účelem předání dotazu z tohoto formuláře Vámi vybranému inzerentovi a zpětného kontaktování mé osoby. Osobní údaje bude správce zpracovávat manuálně i automaticky přímo prostřednictvím svých zaměstnanců. Informace předané tímto formulářem budou uloženy v databázi správce maximálně po dobu 10 let. Odvolání souhlasu s uložením a zpracováním poskytnutých dat lze e-mailem na info@realitymat.cz. V případě podezření na neoprávněné použití Vámi poskytnutých údajů máte právo předat podnět k šetření Úřadu pro ochranu osobních údajů. Více informací
Chystáte se prodat nemovitost?
Pomůžeme Vám!

Kontakt

Ing. Jan Toupal s.r.o.

Ing. Jan Toupal s.r.o.

Přihlášení k odběru

Nenechte si ujít nejnovější nabídky prodeje bytů 3+kk v Praze 5.

Podobné nabídky