Pronájem bytu 2+kk, České Budějovice, 28 m2 (ID: 1981468)

České Budějovice 2


14 200 Kč /za měsíc
Získejte výhodnou HYPOTÉKU
Regionální dodavatelé v Českých Budějovicích

Popis

Nabízíme k pronájmu novostavbu (2022) bytu velikosti 2+kk s terasou , v lokalitě Čtyři Dvory v Českých Budějovicích.
Byt je součástí menšího rodinného domu (pouze 2 byty), má samostatný vstup, se druhým bytem společný pouze vjezd na pozemek.
Byt je minimálně užívanou novostavbou dřevostavby (kolaudace 2022), nadstandardně vybavenou v perfektním stavu. Byt je k dispozici se základním vybavením, základní vybavení nábytkem. K dispozici kuchyňská linka včetně zabudovaných spotřebičů.
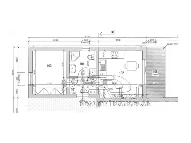
Celková plocha bytu 35m2, podlahová plocha [28m2] + terasa [7m2].
Dispozice: předsíň [3.1m2], obytná kuchyně [12m2] s přístupem na terasu, ložnice / pokoj [9.2m2] a koupelna/WC [3.8m2]. Orientace obýváku / terasy na jih do zahrady, ložnice na sever.
Terasa je přístupná z obytné místnosti přes velké francouzské okno a je orientována na jih do menší komorní vzrostlé (zatravněné) zahrady a je předurčena k relaxaci a odpočinku.
Vybavení bytu: kuchyňská linka tvaru „L“ včetně vestavěných spotřebičů (sklokeramická varná deska (indukce), horkovzdušná trouba, myčka nádobí, digestoř, lednice s mrazákem), spížní skříň. V obývacím pokoji pohovka a konferenční stolek. V koupelně sprchový kout s prosklenou zástěnou, závěsné WC, umyvadlo vč. koupelnového nábytku, přípojka pračky. Vytápění bytu v kombinaci s klimatizací napájené tepelným čerpadlem, podlahové topení v koupelně a předsíni, ohřev TUV elektrický boiler, samostatné měření spotřeby studené vody (vodoměr) a elektřiny (elektroměr). V bytě je možno připojit internet (Starnet), TV-STA. S pronájmem uvedené bytu souvisí i pronájem 1x parkovacího místa pro osobní automobil na uzavřeném dlážděném pozemku před domem.
Občanská vybavenost a Parkování: Veškerá občanská vybavenost včetně MHD je v těsné blízkosti. Parkování před domem. Vzdálenost do centra (náměstí) 30min pěšky.
Energetická náročnost budovy – [A].
Požadavky / preference majitele bytu: Byt je vhodný pro bydlení max. 2 osob (max. 2 dospělí, bez dětí, nekuřáci, bez domácích mazlíčků. Majitel bytu si vyhrazuje právo výběru nájemce na základě jím zvolených kritérií!
Byt je k dispozici: od listopad_2025 – byt je určen ke dlouhodobému pronájmu.
Nájemné: 14.200,-Kč/MĚS + ENergie a služby | záloha na byt cca 2.500,-Kč až 3.000,-Kč/měs – podle počtu osob.
Bytová Jistina / Kauce: 30.000,-Kč |vratná při ukončení nájmu.
Provize RK: za zprostředkování pronájmu a sepsání nájemní smlouvy: 15.500,-Kč.
Pro bližší informace a termíny prohlídky volejte makléře tel. +420 602 557 912.
Zakázka výhradně v nabídce realitní kanceláře AD-reality České Budějovice.

Cena
14 200 Kč /za měsíc
Náklady na bydlení
2.500,-Kč až 3.000,-Kč/měs - podle počtu osob
Aktualizováno
25. 10. 2025
Adresa
České Budějovice 2
ID
AD-2738-2025
Stavba
Dřevěná
Stav objektu
Novostavba
Patro
1.
Vybaveno
Částečně
Lokalita objektu
Klidná část obce
Vlastnictví
Osobní
Užitná plocha
28 m2
Podlahová plocha
35 m2
Třída energetické náročnosti
A - Mimořádně úsporná
Elektřina
230V
Odpad
Veřejná kanalizace
Komunikace
Dlážděná
Doprava
MHD
Voda
Vodovod
Topné těleso
Podlahové vytápění, Klimatizace
Zdroj topení
Tepelné čerpadlo
Zdroj teplé vody
Tepelné čerpadlo
Terasa

Máte zájem o tuto nemovitost?

Tímto, v souladu s nařízením Evropského parlamentu a Rady (EU) 2016/679, v platném znění, prohlašuji, že mi je alespoň 16 let a uděluji tak svůj souhlas se zpracováním zadaných údajů (jméno, telefon, e-mail, ip adresa) společnosti B3 Technology, s.r.o., IČ: 07330600, se sídlem Novostavby 126/23, 435 11 Lom (správce dat), za účelem předání dotazu z tohoto formuláře Vámi vybranému inzerentovi a zpětného kontaktování mé osoby. Osobní údaje bude správce zpracovávat manuálně i automaticky přímo prostřednictvím svých zaměstnanců. Informace předané tímto formulářem budou uloženy v databázi správce maximálně po dobu 10 let. Odvolání souhlasu s uložením a zpracováním poskytnutých dat lze e-mailem na info@realitymat.cz. V případě podezření na neoprávněné použití Vámi poskytnutých údajů máte právo předat podnět k šetření Úřadu pro ochranu osobních údajů. Více informací
Chystáte se prodat nemovitost?
Pomůžeme Vám!

Kontakt

Václava Drábová

Václava Drábová

Přihlášení k odběru

Nenechte si ujít nejnovější nabídky pronájmu bytů 2+kk v Českých Budějovicích.

Podobné nabídky