Pronájem skladu, Varnsdorf, Karlova, 180 m2 (ID: 1978137)

Karlova, Varnsdorf


10 000 Kč /za měsíc
Získejte výhodnou HYPOTÉKU
Regionální dodavatelé v Varnsdorfu

Okna a dveře

Rekonstrukce

Zámečnické práce

Popis

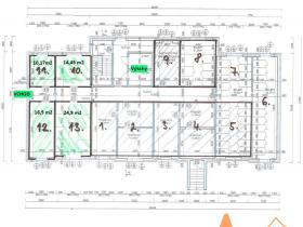
Nabízíme k pronájmu nebytový prostor 180 m2 v přízemí objektu ve Varnsdorfu, ulice Karlova 2230. Prostor lze využít jako dílnu či sklady. K dispozici jsou tři místnosti, viz. plánek. Samostatný vchod, možnost parkování v areálu. Volné ihned.

Cena
10 000 Kč /za měsíc
Aktualizováno
24. 10. 2025
Adresa
Karlova, Varnsdorf
ID
100996
Stavba
Cihlová
Stav objektu
Dobrý
Užitná plocha
180 m2
Podlahová plocha
180 m2
Třída energetické náročnosti
G - Mimořádně nehospodárná

Máte zájem o tuto nemovitost?

Tímto, v souladu s nařízením Evropského parlamentu a Rady (EU) 2016/679, v platném znění, prohlašuji, že mi je alespoň 16 let a uděluji tak svůj souhlas se zpracováním zadaných údajů (jméno, telefon, e-mail, ip adresa) společnosti B3 Technology, s.r.o., IČ: 07330600, se sídlem Novostavby 126/23, 435 11 Lom (správce dat), za účelem předání dotazu z tohoto formuláře Vámi vybranému inzerentovi a zpětného kontaktování mé osoby. Osobní údaje bude správce zpracovávat manuálně i automaticky přímo prostřednictvím svých zaměstnanců. Informace předané tímto formulářem budou uloženy v databázi správce maximálně po dobu 10 let. Odvolání souhlasu s uložením a zpracováním poskytnutých dat lze e-mailem na info@realitymat.cz. V případě podezření na neoprávněné použití Vámi poskytnutých údajů máte právo předat podnět k šetření Úřadu pro ochranu osobních údajů. Více informací
Chystáte se prodat nemovitost?
Pomůžeme Vám!

Kontakt

Petra Hubalová

Petra Hubalová

Přihlášení k odběru

Nenechte si ujít nejnovější nabídky pronájmu skladů v Varnsdorfu.

Podobné nabídky