Prodej domu na klíč, Liteň, Pacovského, 143 m2
Pacovského, Liteň
(dokončení domu na klíč není zahrnuto v ceně)
Popis
Klidná lokalita, moderní technologie a okolní příroda  to vše nabízí tato novostavba rodinného domu v městysi Liteň. Dům je aktuálně ve fázi dokončené hrubé stavby, takže si ho můžete dokončit přesně podle svých představ.
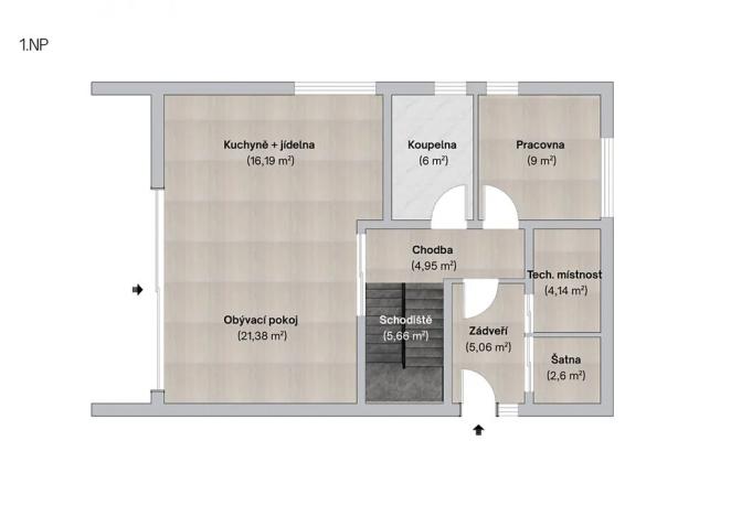
Nabízíme Vám moderní rodinný dům v městysi Liteň (okres Beroun), který je ve fázi dokončené hrubé stavby. Tento dvoupodlažní dům (přízemí + podkroví) je postaven z kvalitního zdicího systému Porotherm a má celkovou zastavěnou plochu 110 m2 s celkovou užitnou plochu 146 m2. Vytápění je navrženo jako teplovodní podlahové topení s využitím tepelného čerpadla, což zaručí komfortní teplo a nízké provozní náklady. Dům je napojen na veřejný vodovod, kanalizaci i elektřinu; navíc je připraven rozvod pro využití dešťové vody například na zalévání zahrady. Budoucí majitel ocení také energetickou úspornost budovy  dům spadá do energetické třídy B. Dokončení interiérů a fasád lze zajistit na klíč osvědčenou stavební firmou, takže nové bydlení si můžete dotvořit přesně podle svých představ a bez starostí, předpokládaný náklad na dokončení je 2,5 mil až 3.0 mil.
Dům se nachází na pozemku o výměře 451 m2 v klidné okrajové části Litně, na konci slepé ulice. Tato poloha poskytuje maximální klid, soukromí a minimum provozu  ideální prostředí pro rodinné bydlení. Městys Liteň má charakter příjemné menší obce obklopené zelení. Můžete relaxovat na zahradě, pořádat grilování nebo vytvořit dětské hřiště  zahrada nabízí dostatek prostoru pro volný čas i zahradničení. Díky připravenému systému pro zachytávání dešťovky bude péče o zeleň ekonomická a ekologická. Užijete si zde kombinaci venkovského klidu a zároveň blízkosti potřebných služeb.
Liteň je městys v okrese Beroun s přibližně 1 300 obyvateli, který nabízí veškerou základní občanskou vybavenost pro pohodlný život. Přímo v obci se nachází mateřská škola a devítiletá základní škola (1.9. třída)  ideální pro rodiny s dětmi. Nechybí zde ani základní zdravotní péče: ordinace dětského lékaře, praktického lékaře pro dospělé a také zubní ordinace. Pro denní nákupy a služby je k dispozici několik obchodů a provozoven. Namátkou uvádíme:
	Obchody a služby: tři prodejny potravin, obchod s dalším smíšeným zbožím, květinářství, kadeřnictví, pošta a čerpací stanice.
	Stravování: dvě příjemné hospody (restaurace) v obci.
	Další služby: obecní knihovna a kino v místním kulturním domě (pravidelné sobotní promítání), Muzeum Svatopluka Čecha a Jarmily Novotné ve faře, a také řada aktivních spolků.
Liteň má výborné dopravní spojení jak individuální, tak hromadnou dopravou. Několik autobusových linek zajišťuje pravidelné spojení obce s nedalekým Berounem (v Litni se nachází celkem 5 autobusových zastávek). Přímo přes Liteň vede také lokální železniční trať (LochoviceZadní Třebaň), která se v Zadní Třebani napojuje na hlavní dvoukolejnou trať BerounPraha. Vlakem se tak pohodlně dostanete až do Prahy (ve špičce jezdí přímé spoje ze Zadní Třebaně v krátkých intervalech). Autem je Liteň snadno dostupná  do centra Prahy je to cca 42 km a do okresního města Beroun asi 15 km.
Liteň žije bohatým kulturním a sportovním životem. Působí zde fotbalový klub a jednota Sokol Liteň, kteří se starají o sportovní vyžití mládeže i dospělých[9]. Aktivní jsou také různé spolky (zahrádkáři, včelaři, myslivci aj.), jež pořádají během roku pestré akce pro veřejnost. V roce 1989 byl otevřen moderní kulturní dům s knihovnou a kinem, které promítá jednou týdně[5]. Návštěvníky i místní potěší Muzeum Svatopluka Čecha a Jarmily Novotné v budově fary[6], připomínající odkaz slavného spisovatele a operní pěvkyně spjatých s Litní. Nechybí ani historické památky  přímo v obci stojí barokní zámek s parkem (aktuálně nepřístupný veřejnosti) a gotický kostel sv. Petra a Pavla.
Okolí obce je doslova rájem pro milovníky přírody a výletů. Liteň leží částečně na území Chráněné krajinné oblasti Český kras, takže je obklopena malebnou krajinou vápencových kopců, luk a lesů s jedinečnou flórou i faunou. Pouhých 4,5 km odtud se nachází světoznámý hrad Karlštejn  impozantní dominanta kraje a oblíbený cíl výletníků. Přímo přes Liteň prochází turistická trasa spojující Koněpruské jeskyně a Karlštejn, takže na výlet se můžete vydat doslova od prahu domu. V blízkém okolí lákají také unikátní zatopené vápencové lomy Velká Amerika a další Ameriky nedaleko Mořiny  s tyrkysově čistou vodou patří k nejkrásnějším přírodním zajímavostem regionu. Ať už dáváte přednost sportu, turistice nebo poznávání historie, v Litni a okolí vždy najdete vhodnou příležitost k aktivnímu odpočinku.
Máte zájem o tuto nemovitost?
K Třešňovce 1091, Karlík
Pomůžeme Vám!
Pomůžeme Vám!
Kontakt
 
                        Dvořák Petr
Přihlášení k odběru
Nenechte si ujít nejnovější nabídky prodeje domů na klíč v Litni.
 
                                                                                     
                                                                                     
                                                                                     
                                                                                     
                                                                                     
                                                                                     
                                                                                     
                                                                                     
                                                                                     
                                                                                     
                                                                                     
                                                                                     
                                                                                     
                                                                                     
                                                                                     
                                                                                     
                                                                                     
                                                                                     
                                                                                     
                                                                                     
                                                                                     
                                                                                     
                                                                                     
                                                                                     
                                                                                     
                                                                                     
                                                                                     
                                                                                     
                                                                                     
                                                                                     
                                                                                     
                                                                                     
                                                                                     
                                                                                     
                                                                                     
                                                                                     
                                                                                     
                                                                                     
                                                                                    