Prodej bytu 2+1, Brno, Hybešova, 48 m2 (ID: 1976988)

Hybešova, Staré Brno


6 690 000 Kč /za nemovitost
HYPOTÉKA od 29 900 Kč /měs.
Regionální dodavatelé v Brně

Popis

Nabízíme k prodeji cihlový byt o dispozici 2+1 v osobním vlastnictví, situovaný v atraktivní části města Brna. Tento byt se nachází ve třetím patře kompletně zrekonstruovaného objektu a disponuje užitnou plochou 48 m². Skvěle řešený jednopodlažní byt je ideální volbou pro jednotlivce či páry, kteří hledají komfortní bydlení v klidném prostředí s veškerou občanskou vybaveností na dosah ruky.
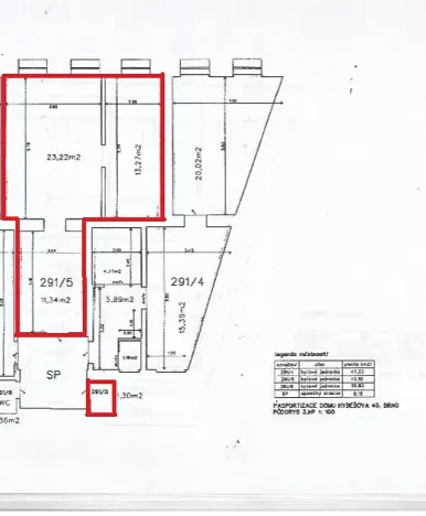
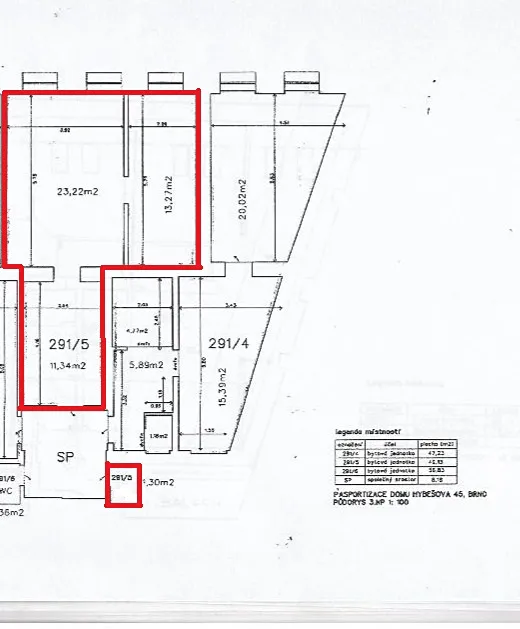
Obývací pokoj o ploše 23,22 m2, součástí kterého je šatna.
Ložnice o ploše 10 m2 s vestavěnou manželskou postelí a skříněmi pod ní na míru. Koupelna 3,5 m2 s vanou, toaletou a umyvadlem.
Kuchyně 11,34 m2, komora o ploše 1,3 m2 na patře.

K dispozici je také sklep o ploše 40 m2, který je společný pro všechny majitele domu, je volný s možností jej využívat. Parkování je zajištěno s jedním místem k parkování ve dvoře, což je velkou výhodou v této lokalitě. V mezipatře se nachází prostorný balkon o velikosti 3 m², který je ideální pro relaxaci a posezení na čerstvém vzduchu nebo sušení prádla.

Součástí vybavení bytu je klimatizace, která zajišťuje příjemné prostředí i v horkých letních měsících. Výhodou jsou velmi nízké náklady na bydlení, které činí 3.340,- Kč měsíčně. Podrobné náklady Vám sdělí makléř, který je kontaktní osobou u tohoto inzerátu.

Pokud Vás byt zaujal, neváhejte nám napsat nebo zavolat a rádi Vám vše ukážeme osobně.

Cena
6 690 000 Kč /za nemovitost Spočítat hypotéku
Náklady na bydlení
3.340,- Kč/měsíc
Aktualizováno
24. 10. 2025
Adresa
Hybešova, Staré Brno
Stavba
Cihlová
Stav objektu
Po rekonstrukci
Patro
3.
Vlastnictví
Osobní
Užitná plocha
48 m2
Topné těleso
Radiátory
Zdroj topení
Plynový kondenzační kotel
Zdroj teplé vody
Plynový kondenzační kotel
Balkon
Sklep
Parkování

Máte zájem o tuto nemovitost?

Tímto, v souladu s nařízením Evropského parlamentu a Rady (EU) 2016/679, v platném znění, prohlašuji, že mi je alespoň 16 let a uděluji tak svůj souhlas se zpracováním zadaných údajů (jméno, telefon, e-mail, ip adresa) společnosti B3 Technology, s.r.o., IČ: 07330600, se sídlem Novostavby 126/23, 435 11 Lom (správce dat), za účelem předání dotazu z tohoto formuláře Vámi vybranému inzerentovi a zpětného kontaktování mé osoby. Osobní údaje bude správce zpracovávat manuálně i automaticky přímo prostřednictvím svých zaměstnanců. Informace předané tímto formulářem budou uloženy v databázi správce maximálně po dobu 10 let. Odvolání souhlasu s uložením a zpracováním poskytnutých dat lze e-mailem na info@realitymat.cz. V případě podezření na neoprávněné použití Vámi poskytnutých údajů máte právo předat podnět k šetření Úřadu pro ochranu osobních údajů. Více informací
Chystáte se prodat nemovitost?
Pomůžeme Vám!

Kontakt

Kateřina Vyhlídalová

Kateřina Vyhlídalová

Přihlášení k odběru

Nenechte si ujít nejnovější nabídky prodeje bytů 2+1 v Brně.

Podobné nabídky