Prodej garáže, Liberec, 24 m2
Liberec
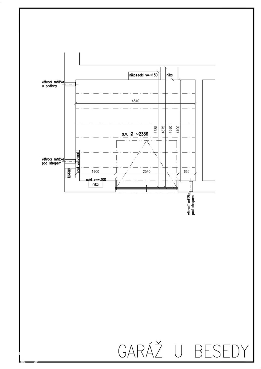
Popis
V centru města, v ulici U Besedy, nabízíme k prodeji garáž po částečné rekonstrukci – s novou střechou, právě obnovovaným nátěrem a rekonstruovaným odvětráváním šachtami.
Garáž je uzamykatelná a její dispozice umožňuje nejen parkování běžného osobního vozu, ale i praktické skladování. Vaše budoucí skladovací/parkovací prostory jsou rozměrově lehce netradiční - co ale mohou ztrácet na délku, dohání na šířku. Vedle Vašeho auta se bez problémů vejde pracovní deska, regálový systém nebo třeba motorka.
Vnitřní rozměry:
Šířka 4,9m
Délka 4,7m (použitelná délka pro zaparkování auta, měřeno od vrat po výklenek)
Výška 2,5m
Stavební otvor výklopných vrat má na šířku 2,5m
A jaká auta se dovnitř vejdou? Na délku se tam bezpečně vejde například:
Škoda Scala nebo třeba Karoq
Hyundai i30
Kia Ceed
VW Golf
Toyota Yaris Cross
Renault Clio
Peugeot Mokka
Dacia Duster nebo Sandero
Ford Fiesta
..a jestli se tam vejde to Vaše? Přijďte se na prohlídku přesvědčit!
Elektřina je momentálně v řešení – zavolejte mi prosím pro aktuální informace, jednáme se skupinou ČEZ a majitelem o zřízení nové přípojky elektřiny.
K dispozici ihned. Pro domluvení prohlídky neváhejte kontaktovat realitního makléře.
Máte zájem o tuto nemovitost?

Na Pankráci 322/26, Praha
Pomůžeme Vám!
Pomůžeme Vám!
Kontakt

David Aljančič
Přihlášení k odběru
Nenechte si ujít nejnovější nabídky prodeje garáží v Liberci.
Podobné nabídky

Prodej garáže, Liberec, 19 m2
490 000 Kč

Prodej garáže, Liberec, Osadní, 18 m2
660 000 Kč

Prodej garáže, Liberec, Zelná, 18 m2
480 000 Kč

Prodej garáže, Liberec, Mydlářská, 18 m2
550 000 Kč