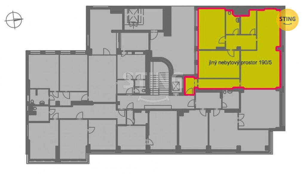
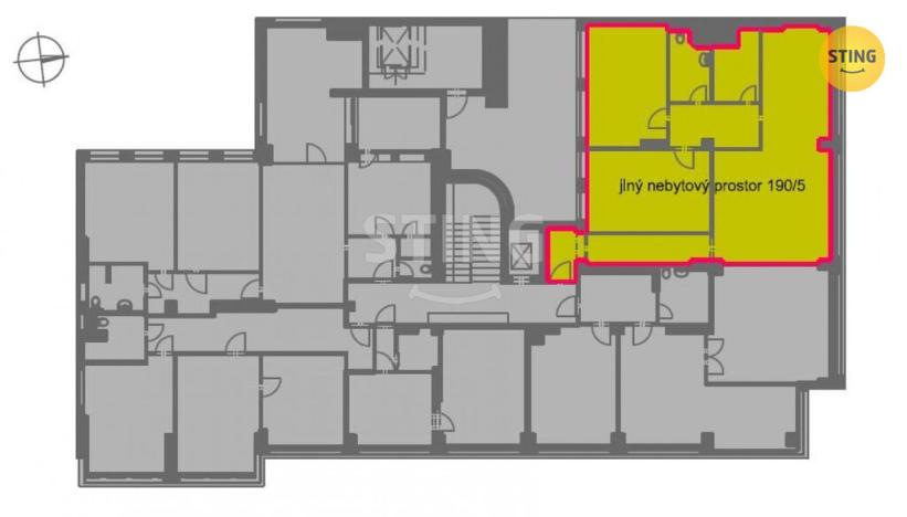
Pronájem kanceláře, Zlín, třída Tomáše Bati, 108 m2

třída Tomáše Bati, Zlín


29 900 Kč /za měsíc
Získejte výhodnou HYPOTÉKU

(+ zálohy na energie a služby 2.800,- Kč + DPH/měs. NEPLATÍTE PROVIZI RK!)


Regionální dodavatelé v Zlíně

Popis

Hledáte reprezentativní prostory pro své podnikání v srdci Zlína s možností soukromého zázemí? Máme pro vás exkluzivní nabídku!

K pronájmu nabízíme atraktivní prostory o celkové užitné ploše 108 m2, umístěné ve 3. nadzemním podlaží budovy s výtahem. Součástí jsou 3 samostatné místnosti, z toho jedna s velkým kuchyňským koutem, koupelna se sprchovým koutem a toaletou, technická místnost, ideální kombinace pro kancelářské, poradenské či kreativní využití s případným zázemím pro bydlení.

Prostory budou k dispozici po rekonstrukci od 1.2.2026 - bude zde nová koupelna, kuchyňská linka vč. vestavných spotřebičů - viz vizualizace kuchyně ve fotogalerii.
Rekonstrukci lze přizpůsobit požadavkům budoucího nájemce!

Lokalita, která pracuje za vás

Budova se nachází přímo v centru města, naproti divadlu, na hlavní tepně s vysokou frekvencí chodců i automobilové dopravy – ideální místo pro setkávání s klienty.

Jedná se o jednu z nejvýznamnějších funkcionalistických staveb nebaťovské architektury, jejímž autorem je ak. arch. Miroslav Lorenc, projektant budov pro Tomáše Baťu.

Stav budovy a služby

- reprezentativní nemovitost ve velmi dobrém stavu
- pravidelně udržovaná a rekonstruovaná
- veškerý provoz zajišťuje správce budovy
- možnost vyhrazeného parkovacího místa přímo u domu za cenu 2.480,- Kč + DPH

Informace k nabízeným prostorům

- 2 místnosti jsou klimatizovány
- prostory (jsou vedeny jako samostatná nebytová jednotka) mají vlastní hlavní elektroměr
- jsou osazeny podružnými měřidly s dálkovým odečtem vodoměru i tepelných indikátorů
- teplo je řízeno termostaty v jednotlivých místnostech
- radiátory jsou osazeny elektronickými hlavicemi s účelem optimalizace nákladů na vytápění (mobilní aplikace pro automatické či ruční nastaveni teploty)


Finanční podmínky

nájemné: 29.900 Kč + 21 % DPH/měsíc
zálohy na služby: 2.800 Kč + DPH (teplo, vodné, stočné, spol. elektřina aj.)
elektřina: vlastní spotřeba – samostatné měření
kauce: 1× měsíční nájem
provize: Neplatíte provizi RK

Prostory jsou vhodné pro plátce DPH.

Tato nabídka kombinuje prestižní adresu, komfort a flexibilitu – ideální pro vaše podnikání.
Pro více informací nebo sjednání prohlídky kontaktujte realitní kancelář.

Cena
29 900 Kč /za měsíc
Poznámka k ceně
+ zálohy na energie a služby 2.800,- Kč + DPH/měs. NEPLATÍTE PROVIZI RK!
Aktualizováno
22. 10. 2025
Adresa
třída Tomáše Bati, Zlín
ID
133716
Stavba
Cihlová
Stav objektu
Velmi dobrý
Typ objektu
Patrový
Lokalita objektu
Centrum obce
Užitná plocha
108 m2
Třída energetické náročnosti
E - Nehospodárná
Elektřina
230V
Odpad
Veřejná kanalizace
Topení
Ústřední dálkové
Doprava
Vlak, Dálnice, Silnice, MHD, Autobus
Voda
Vodovod
Parkování

Máte zájem o tuto nemovitost?

Tímto, v souladu s nařízením Evropského parlamentu a Rady (EU) 2016/679, v platném znění, prohlašuji, že mi je alespoň 16 let a uděluji tak svůj souhlas se zpracováním zadaných údajů (jméno, telefon, e-mail, ip adresa) společnosti B3 Technology, s.r.o., IČ: 07330600, se sídlem Novostavby 126/23, 435 11 Lom (správce dat), za účelem předání dotazu z tohoto formuláře Vámi vybranému inzerentovi a zpětného kontaktování mé osoby. Osobní údaje bude správce zpracovávat manuálně i automaticky přímo prostřednictvím svých zaměstnanců. Informace předané tímto formulářem budou uloženy v databázi správce maximálně po dobu 10 let. Odvolání souhlasu s uložením a zpracováním poskytnutých dat lze e-mailem na info@realitymat.cz. V případě podezření na neoprávněné použití Vámi poskytnutých údajů máte právo předat podnět k šetření Úřadu pro ochranu osobních údajů. Více informací
Chystáte se prodat nemovitost?
Pomůžeme Vám!

Kontakt

Ing. Olga Vaculíková

Ing. Olga Vaculíková

Přihlášení k odběru

Nenechte si ujít nejnovější nabídky pronájmu kanceláří v Zlíně.

Podobné nabídky