Pronájem bytu 2+kk, Český Krumlov - Vyšný, Vyšenská, 56 m2

Vyšenská, Český Krumlov, Vyšný


13 700 Kč /za měsíc
Získejte výhodnou HYPOTÉKU

(+popl. 2300, + elektřina. Kauce 30.000,-, odměna RK 16.000,-.)


Regionální dodavatelé v Českém Krumlově

Výkup a prodej starého nábytku

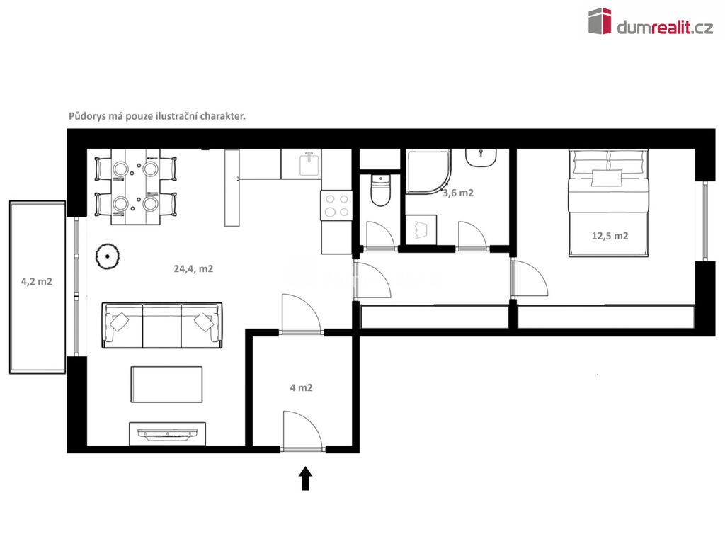
Popis

Dumrealit.cz Vám zprostředkuje pronájem bytu 2+kk s balkonem, o 56 m², ve druhém patře patře třípatrového zděného domu bez výtahu, v klidné části Českého Krumlova, ul. Vyšenská, sídliště Vyšný.

Nadstandardní byt prošel v nedávné době kompletní revitalizací a nabízí se k pronájmu bez vybavení/nábytku. Sestává ze zádveří, obýváku o 24,4 m² s moderní kuchyňskou linkou s dostatkem prostoru pro jídelní stůl a s přístupem na balkon o cca 4,2 m², úplně nové koupelny se sprchovým koutem, umyvadlem s místem pro pračku, chodby s vestavěnou skříní a ložnice o o cca 12,5 m².

Dům je průběžně udržovaný, klidný. Bezproblémové parkování na veřejném parkovišti před domem. Zastávka MHD 258 m od domu.

Měsíční nájem činní 13.700,- plus 2.300,- jako zálohová platba na vodu, TUV a topení, s termínem platby v měsíci předcházejícím, plus elektřina na samostatnou smlouvu nájemníka s dodavatelem (E.ON). Kauce 30.000,-, odměna RK za zprostředkování příležitosti uzavřít Smlouvu o nájmu 16.000,-. Byt je vhodný spíše pro menší počet osob 1-3. Volné po dohodě Ev. číslo: 652845.

Cena
13 700 Kč /za měsíc
Poznámka k ceně
+popl. 2300, + elektřina. Kauce 30.000,-, odměna RK 16.000,-.
Aktualizováno
19. 12. 2025
Adresa
Vyšenská, Český Krumlov, Vyšný
ID
653459
Stavba
Cihlová
Stav objektu
Velmi dobrý
Patro
3. z 4
Vlastnictví
Družstevní
Užitná plocha
56 m2
Podlahová plocha
56 m2
Třída energetické náročnosti
B - Velmi úsporná
Ukazatel energetické náročnosti
74 kWh/m2 za rok
Topení
Ústřední dálkové
Balkon
Sklep

Máte zájem o tuto nemovitost?

Tímto, v souladu s nařízením Evropského parlamentu a Rady (EU) 2016/679, v platném znění, prohlašuji, že mi je alespoň 16 let a uděluji tak svůj souhlas se zpracováním zadaných údajů (jméno, telefon, e-mail, ip adresa) společnosti B3 Technology, s.r.o., IČ: 07330600, se sídlem Novostavby 126/23, 435 11 Lom (správce dat), za účelem předání dotazu z tohoto formuláře Vámi vybranému inzerentovi a zpětného kontaktování mé osoby. Osobní údaje bude správce zpracovávat manuálně i automaticky přímo prostřednictvím svých zaměstnanců. Informace předané tímto formulářem budou uloženy v databázi správce maximálně po dobu 10 let. Odvolání souhlasu s uložením a zpracováním poskytnutých dat lze e-mailem na info@realitymat.cz. V případě podezření na neoprávněné použití Vámi poskytnutých údajů máte právo předat podnět k šetření Úřadu pro ochranu osobních údajů. Více informací
Chystáte se prodat nemovitost?
Pomůžeme Vám!

Kontakt

Jiří Kejšar

Jiří Kejšar

Přihlášení k odběru

Nenechte si ujít nejnovější nabídky pronájmu bytů 2+kk v Českém Krumlově.

Podobné nabídky