Prodej obchodního prostoru, Volyně, Palackého, 200 m2 (ID: 1973179)

Palackého, Volyně


5 000 000 Kč /za nemovitost
HYPOTÉKA od 22 347 Kč /měs.

(včetně právního servisu)


Regionální dodavatelé v Volyni

Výkup a prodej starého nábytku

Popis

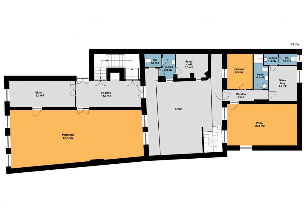
Nabízíme k prodeji nepodsklepený patrový dům ve Volyni, ulice Palackého. Dům má dvě nadzemní podlaží a nevyužitý půdní prostor. V 1 NP se nachází prodejna Tescomy, kancelářský prostor, sociální zařízení a sklady. Ve 2 NP je prodejna Second handu s kanceláří a sociálním zařízením, dále se zde nachází bytová jednotka se třemi pokoji, dvěma WC a koupelnou se sprchovým koutem. Nájemní smlouvy jsou uzavřeny na dobu neurčitou s tříměsíční výpovědné lhůtou. Voda a kanalizace je obecní, do domu je přiveden plyn. Nemovitost má široké možnosti využití skladových a prodejních prostor, možnosti vybudování vlastního bydlení nebo ponechání současného využití nemovitosti. Volyně je oblíbené turistické místo mezi Strakonicemi a Vimperkem. V okolí kompletní občanská vybavenost. Pro domluvení prohlídky a dalších informací kontaktujte makléře zakázky ing. Vendulu Kümmelovou.

Cena
5 000 000 Kč /za nemovitost Spočítat hypotéku
Poznámka k ceně
včetně právního servisu
Aktualizováno
28. 11. 2025
Adresa
Palackého, Volyně
ID
1027
Stavba
Smíšená
Stav objektu
Dobrý
Typ objektu
Patrový
Užitná plocha
200 m2
Bezbarierový přístup

Máte zájem o tuto nemovitost?

Tímto, v souladu s nařízením Evropského parlamentu a Rady (EU) 2016/679, v platném znění, prohlašuji, že mi je alespoň 16 let a uděluji tak svůj souhlas se zpracováním zadaných údajů (jméno, telefon, e-mail, ip adresa) společnosti B3 Technology, s.r.o., IČ: 07330600, se sídlem Novostavby 126/23, 435 11 Lom (správce dat), za účelem předání dotazu z tohoto formuláře Vámi vybranému inzerentovi a zpětného kontaktování mé osoby. Osobní údaje bude správce zpracovávat manuálně i automaticky přímo prostřednictvím svých zaměstnanců. Informace předané tímto formulářem budou uloženy v databázi správce maximálně po dobu 10 let. Odvolání souhlasu s uložením a zpracováním poskytnutých dat lze e-mailem na info@realitymat.cz. V případě podezření na neoprávněné použití Vámi poskytnutých údajů máte právo předat podnět k šetření Úřadu pro ochranu osobních údajů. Více informací
Chystáte se prodat nemovitost?
Pomůžeme Vám!

Kontakt

Ing. Vendula Kümmelová

Ing. Vendula Kümmelová

Přihlášení k odběru

Nenechte si ujít nejnovější nabídky prodeje obchodních prostor v Volyni.

Podobné nabídky