Pronájem kanceláře, Ostrava, Kralická, 128 m2
Kralická, Ostrava, Mariánské Hory a Hulváky
Popis
Nabízíme reprezentativní kancelářské prostory, nacházející se v přízemí budovy na ulici Kralická v Ostravě–Mariánských Horách, v klidné a dobře dostupné lokalitě.
Budova, ve které se tyto kanceláře nacházejí, byla zkolaudována v roce 2011 a je ve výborném stavu.
Tyto prostory poskytují profesionální zázemí pro vaše podnikání a zároveň nabízejí dostatek soukromí i pohodlí.
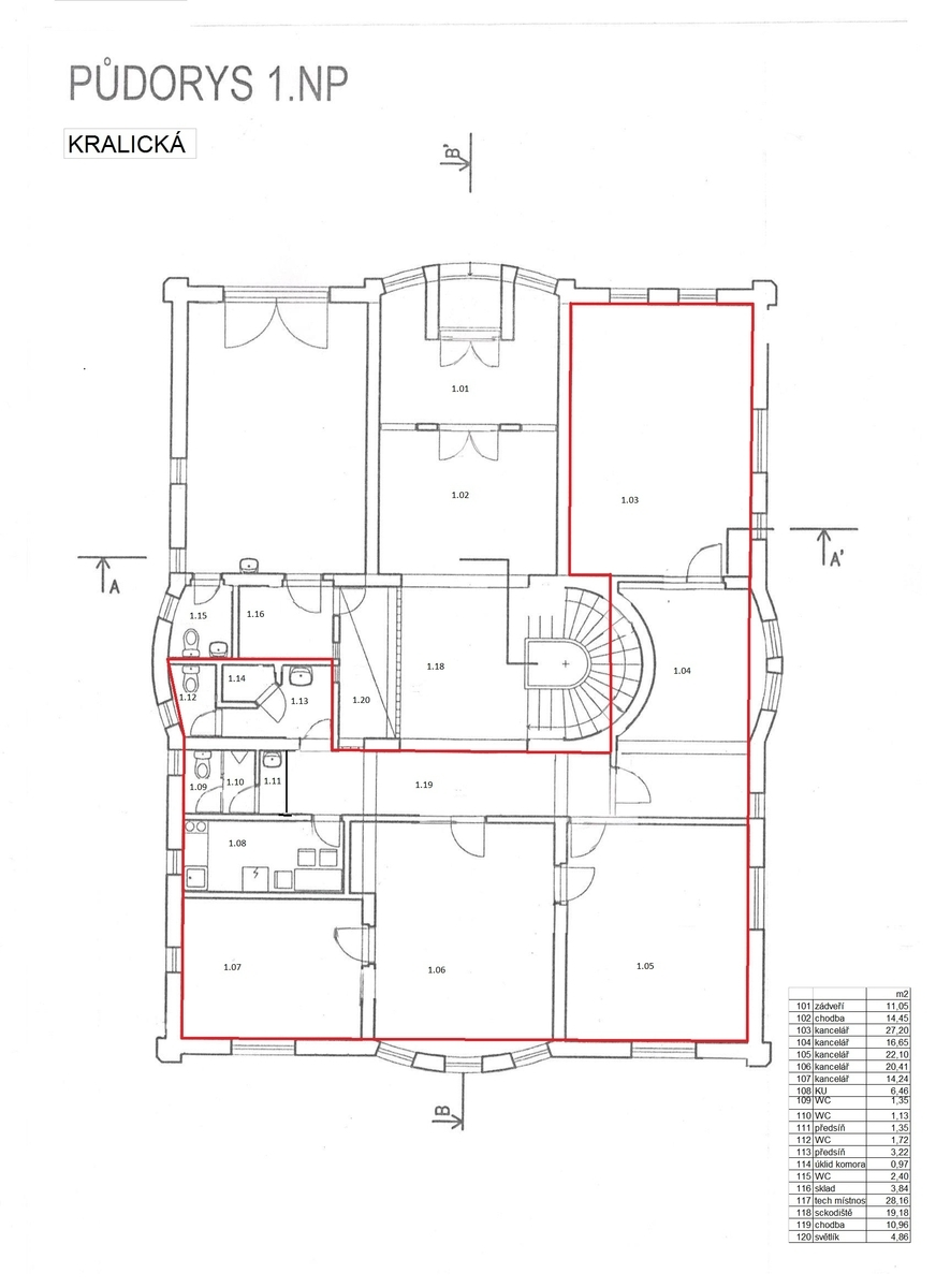
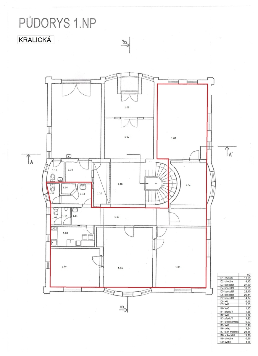
Prostory tvoří pět samostatných kanceláří o velikosti od 14 m² až po 27 m², propojených vlastní chodbou. Součástí je kuchyňka a oddělené dámské a pánské toalety, určené výhradně pro tyto prostory.
Kanceláře jsou nově vymalované a mají nové koberce, takže působí velmi čistě a upraveně.
Je zde možnost parkování na ulici, případně za poplatek v uzavřeném dvoře.
Samozřejmostí je klimatizace, ústřední topení, kamerový systém uvnitř i vně budovy, elektronické zabezpečení a dálkové ovládání vstupu.
Nechybí rozvody datové sítě, centrální vysavač ani eurookna s trojsklem, která zajišťují klid a tepelný komfort. Nájemci mohou využít také úschovnu kol.
Podlahy v kancelářích pokrývají koberce, v ostatních částech je dlažba.
Budova se nachází v klidné, avšak výborně dostupné části Mariánských Hor, v blízkosti tramvajové, trolejbusové i autobusové zastávky.
Prostory jsou k dispozici ihned.
Tyto prostory jsou ideální pro menší firmu, která hledá reprezentativní, bezpečné a pohodlné zázemí v klidné lokalitě s výbornou dostupností.
Pro více informací nebo sjednání prohlídky mě neváhejte kontaktovat.
Máte zájem o tuto nemovitost?

Hvězdova 1716/2b, Praha
Pomůžeme Vám!
Pomůžeme Vám!
Kontakt

Markéta Cieslarová
Přihlášení k odběru
Nenechte si ujít nejnovější nabídky pronájmu kanceláří v Ostravě.
Tipy Realitymatu