Prodej bytu 5+kk, Praha - Petrovice, Edisonova, 154 m2

Edisonova, Praha 10, Petrovice


17 390 000 Kč /za nemovitost
HYPOTÉKA od 77 723 Kč /měs.

(včetně provize a právního servisu)


Regionální dodavatelé v Praze 10

Stěhovací služby

Výkup a prodej starého nábytku

Popis

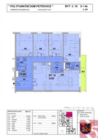
Prodej exkluzivního bytu 5kk 154,3m2 v novostavbě, Petrovice, ul. Edisonova, terasa 8,2m2, garážové stání, sklep.

Výjimečně prostorný byt v nádherné Lokalitě Petrovic, bezprostředně sousedící s Hostivařským lesoparkem a přehradou.

V okolí zástavba rodinných domů, sportoviště, zeleň, MŠ a ZŠ, Gymnázia, Poliklinika Petrovice, obchody a restaurace, autobusová stanice Jakobiho. Vše pešky do 5 minut.

Ideální rodinný byt s velkým obývacím pokojem a čtyřmi pokoji. Ložnice rodičů má velké rohové okno a vlastní koupelnu s toaletou. Pokoje mají samostatné vstupy z prostorné chodby do tvaru L. Zde i hlavní koupelna s vanou a dvěma umyvadly, samostatná toaleta, komora. U vstupu velká šatní skříň a prosklené dvoukřídlé dveře do obývacího pokoje.

Velký kuchyňský kout s vestavěnými spotřebiči navazuje na jídelnu a obytnou část prosvětlenou velkými francouzskými okny kterými projdete na terasu s výhledem do zeleně.

K bytu patří jedno garážové stání za kterým najdete prostorný sklep, chráněn bezpečnostními dveřmi.

Byt se nachází v polyfunkčním domě kde najdete knihovnu, kadeřnictví, poštovnu, restauraci a Úřad městské části Praha-Petrovice. Vše potřebné máte opravdu na dosah.

Vřele doporučuji prohlídku, byt Vás jistě zaujme svým prostorem a uspořádáním.

Napište mi Vaše požadavky na vysněný byt, rád Vám ho pomohu najít.

Cena
17 390 000 Kč /za nemovitost Spočítat hypotéku
Poznámka k ceně
včetně provize a právního servisu
Aktualizováno
16. 10. 2025
Adresa
Edisonova, Praha 10, Petrovice
ID
R519518
Stavba
Cihlová
Stav objektu
Novostavba
Patro
3. z 5
Vybaveno
Částečně
Typ objektu
Patrový
Vlastnictví
Osobní
Užitná plocha
154 m2
Podlahová plocha
165 m2
Třída energetické náročnosti
C - Úsporná
Elektřina
230V, 400V
Odpad
Veřejná kanalizace
Topení
Ústřední dálkové
Komunikace
Zpevněná, Asfaltová, Betonová, Dlážděná
Telekomunikace
Telefon, Internet, Kabelová televize, Kabelové rozvody
Doprava
Vlak, Dálnice, Silnice, MHD, Autobus
Voda
Vodovod
Garáž
Sklep
Terasa
Výtah
Bezbarierový přístup
Parkování
Nízkoenergetický

Máte zájem o tuto nemovitost?

Tímto, v souladu s nařízením Evropského parlamentu a Rady (EU) 2016/679, v platném znění, prohlašuji, že mi je alespoň 16 let a uděluji tak svůj souhlas se zpracováním zadaných údajů (jméno, telefon, e-mail, ip adresa) společnosti B3 Technology, s.r.o., IČ: 07330600, se sídlem Novostavby 126/23, 435 11 Lom (správce dat), za účelem předání dotazu z tohoto formuláře Vámi vybranému inzerentovi a zpětného kontaktování mé osoby. Osobní údaje bude správce zpracovávat manuálně i automaticky přímo prostřednictvím svých zaměstnanců. Informace předané tímto formulářem budou uloženy v databázi správce maximálně po dobu 10 let. Odvolání souhlasu s uložením a zpracováním poskytnutých dat lze e-mailem na info@realitymat.cz. V případě podezření na neoprávněné použití Vámi poskytnutých údajů máte právo předat podnět k šetření Úřadu pro ochranu osobních údajů. Více informací
Chystáte se prodat nemovitost?
Pomůžeme Vám!

Kontakt

Miloslav Shejbal

Miloslav Shejbal

Přihlášení k odběru

Nenechte si ujít nejnovější nabídky prodeje bytů 5+kk v Praze 10.

Podobné nabídky