Prodej vícegeneračního domu, Olšany, 392 m2
Olšany
Popis
Exkluzivní rodinné sídlo v Olšanech u Rousínova soukromí, prostor a styl
Představte si místo, kde den začíná šuměním lesa a vůní trávy.
Místo, kde nemusíte spěchat a můžete si užívat život ve vlastním tempu.
Rodinné sídlo Veronese nabízí víc než jen bydlení je to prostor pro život, inspiraci i setkávání celé rodiny.
Prostor pro rodinu i hosty
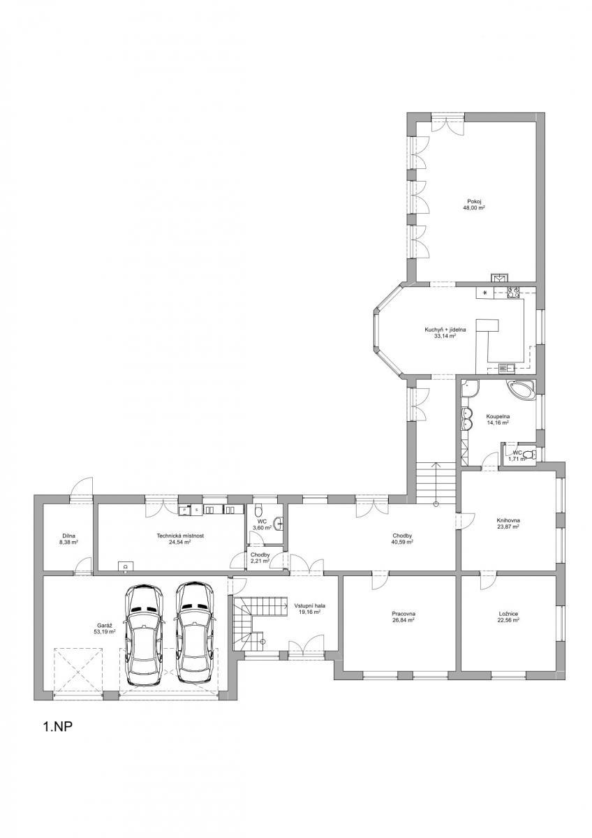
Dům s užitnou plochou 392 m2 je navržen tak, aby spojoval společný život i soukromí.
V přízemí se nachází hlavní byt velkorysý obývací prostor s kuchyní a vstupem na terasu.
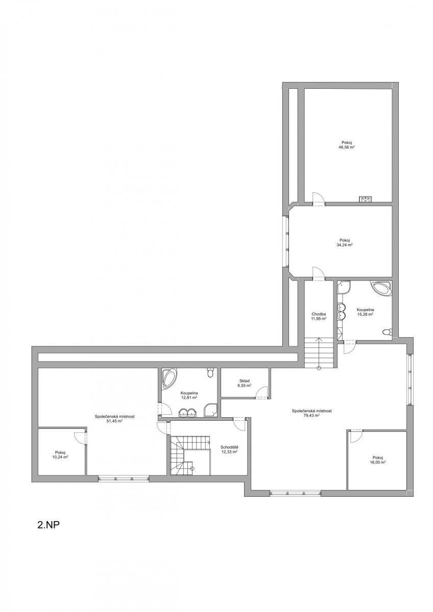
V patře jsou dvě samostatné jednotky s přípravou na kuchyně ideální pro vícegenerační bydlení, hosty nebo pronájem.
Součástí je garáž pro tři vozy, dílna a dostatek parkovacích míst pro návštěvy.
Zahrada pro odpočinek i zábavu
Pozemek o rozloze 3 190 m2 nabízí naprosté soukromí a harmonii s okolní přírodou.
Najdete zde vyhřívaný bazén 12 × 5,5 m s lamelovým zakrytím, automatické zavlažování a zahradní osvětlení.
Součástí je i připravená plocha pro tenisový kurt nebo jiné sportovní využití.
Tato zahrada je ideálním místem pro relaxaci, sport i společná setkání s rodinou a přáteli.
Komfort v každém detailu
Podlahové vytápění v obývacím pokoji, kuchyni, koupelnách i chodbách.
Vířivé vany v koupelnách, příprava na saunu, kondenzační plynový kotel, garážová vrata a brána na dálkové ovládání.
Dům je připojen na DSL internet a poskytuje vše pro pohodlné moderní bydlení.
Lokalita klid na dosah města
Olšany jsou malebná obec obklopená lesy, pouhých 28 km od centra Brna a 8 km od dálnice D1.
V okolí najdete turistické a cyklistické trasy, lesní stezky i přírodní krásy jižní Moravy.
Ideální místo pro ty, kdo hledají klidné prostředí s výbornou dostupností.
Nemovitost s charakterem
Rodinné sídlo Veronese je určeno pro ty, kteří hledají víc než jen dům hledají prostor s duší.
Místo, které spojuje soukromí, eleganci a inspirativní atmosféru.
Přijďte si ho prohlédnout osobně a zažijte jeho jedinečnou energii.
Máte zájem o tuto nemovitost?

9. května 259/2, Vyškov
Pomůžeme Vám!
Pomůžeme Vám!
Kontakt

Jaroslava Chelíková
Přihlášení k odběru
Nenechte si ujít nejnovější nabídky prodeje vícegeneračních domů v Olšanech (okr. Vyškov).
Tipy Realitymatu

Prodej rodinného domu, Tučapy, 165 m2
13 500 000 Kč

Prodej rodinného domu, Velešovice, 120 m2
6 290 000 Kč
Podobné nabídky

Prodej rodinného domu, Olšany, 133 m2
5 999 999 Kč