Pronájem bytu 2+kk, Praha - Bubeneč, Verdunská, 43 m2
Verdunská, Praha 6
Popis
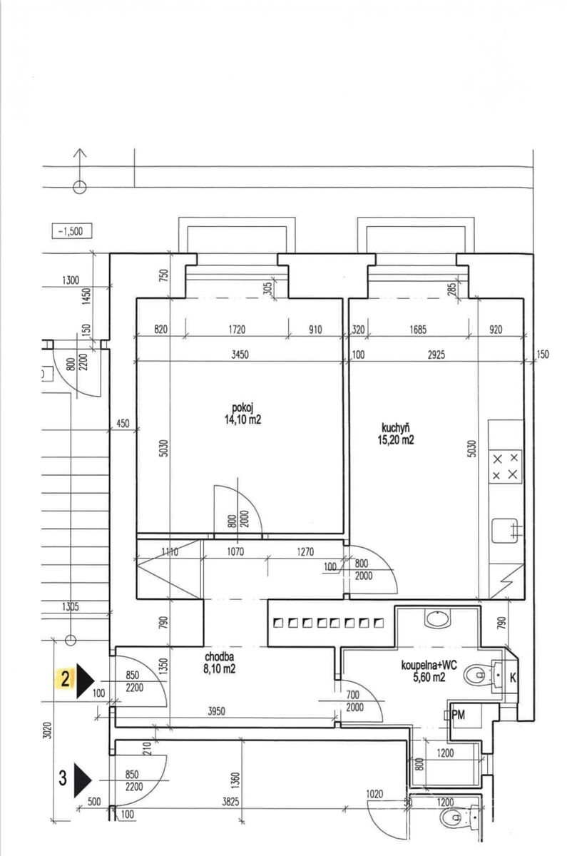
Dovolujeme si Vám nabídnout zrekonstruovaný byt k dlouhodobému pronájmu v osobním vlastnictví o velikosti 2kk, 43 m². Byt se nachází v atraktivní lokalitě pražských Dejvic a je umístěn ve zvýšeném přízemí čtyřpodlažního cihlového domu po rekonstrukci. Bytovou jednotku tvoří dvě místnosti s výhledem do přilehlé zahrady, přičemž jedna z nich je vybavená kuchyňskými spotřebiči (myčka, lednice, trouba, sporák a digestoř) a vestavěnou pračkou. Pokoje propojuje vstupní hala, ze které vedou dveře nejen do koupelny se sprchovým koutem, toaletou, ale i do dvou neprůchozích pokojů. Úložný prostor lze využít ve vestavěné skříni umístěné v hale. Byt je pronajímán částečně vybaven (pračka, postel). Na podlahách jsou položeny parkety a dlažba. Pokoje mají dostatek denního světla a byt působí čistě a světle. Bytová jednotka je vhodná pro bydlení i jako firemní kancelář. Majitel disponuje vhodným nábytkem - skříně, stoly, který je možný do bytu pro nového nájemce přidat v době stěhování. Vytápění bytu a ohřev vody zabezpečuje kombinovaný plynový kotel. Smlouvy na dodávku elektrické energie a plynu si budoucí nájemce uzavírá na své jméno. Výhodou pronájmu bytu je možnost využití zahrady o velikosti 50m2, ve které je možnost relaxovat bez ruchu velkoměsta. Velikou devizou je vynikající dopravní dostupnost. Nedaleko domu lze využít metra A – Dejvická nebo tramvaj – Vítězné náměstí či BUS. V docházkové vzdálenosti se nachází veškerá občanská vybavenost i volnočasové využití, např. restaurace, obchody, lékárna, základní i mateřská škola a také ČVUT. Nájemné 17.000,- Kč včetně služeb (mimo elektřiny a plynu), vratná kauce 1 měsíční nájem + provize RK. Bytová jednotka je k nastěhování od 1.12.2025. Pro sjednání osobní prohlídky kontaktujte realitního makléře.
Máte zájem o tuto nemovitost?

Šafaříkova 201/17, Praha
Pomůžeme Vám!
Pomůžeme Vám!
Kontakt

Katy Sasková
Přihlášení k odběru
Nenechte si ujít nejnovější nabídky pronájmu bytů 2+kk v Praze 6.
Tipy Realitymatu