Prodej bytu 3+kk, Praha - Bohnice, Štětínská, 72 m2 (ID: 1969017)
Štětínská, Praha, Bohnice
(včetně provize, včetně právního servisu)
Popis
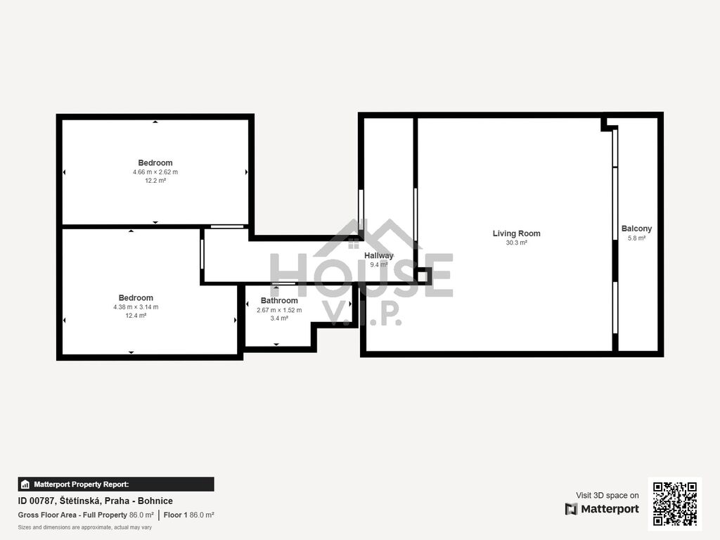
Nabízíme k prodeji nově zrekonstruovaný a světlý byt 3+kk, o celkové ploše 71,96 m², který se nachází v 2. patře revitalizovaného panelového domu v klidné a zelené části Prahy. Samotná obytná plocha činí 66,18 m², k bytu dále náleží prosklená lodžie orientovaná na jih (5,78 m²) a sklepní kóje (1,7 m²).
Byt prošel kompletní a kvalitní rekonstrukcí – nové rozvody elektřiny i vody, modernizovaná koupelna, podlahy i interiérové dveře. Dispozice bytu je praktická: centrální chodba 8,95 m², obývací pokoj s kuchyní 29,43 m² se vstupem na lodžii, dvě neprůchozí ložnice 12,4 m² a 12,17 m², koupelna s toaletou 3,23 m².
Dům je po kompletní revitalizaci (zateplená fasáda, plastová okna, opravené společné prostory) a má velmi dobře fungující družstvo. Byt je ideální pro rodinu, pár nebo jako bezstarostná investice – není nutné nic rekonstruovat. K nastěhování ihned. Vyúčtování služeb - 5864 Kč./měs. pro 2 osoby, z toho 1980 Kč. je fond oprav. Stav konta družstva, je přes 6.794 mln. Kč. (nemá dluhy).
Lokalita plná zeleně:
Z obou stran jste obklopeni přírodou – v těsné blízkosti se nachází Čimický háj, Drahanská rokle, Botanická zahrada i Ďáblický háj. Ideální místo pro sport, procházky i relaxaci.
Občanská vybavenost & dostupnost:
- 3 minuty pěšky: nákupní centrum Krakov, pošta, lékárna, MŠ a ZŠ.
- V docházkové vzdálenosti: Nemocnice Bohnice.
- 5 minut autem: Zoologická zahrada.
- Výborné spojení do centra – metro C (Kobylisy), tramvaje i autobusy.
Rádi Vám zajistíme financování této nemovitosti prostřednictvím hypotečního úvěru až do výše 3,5 mil. Kč bez nutnosti zajištění nemovitostí; zbývající část kupní ceny je nutné uhradit z vlastních zdrojů.
Pro více informací nebo domluvení prohlídky mě neváhejte kontaktovat.
Máte zájem o tuto nemovitost?
Pomůžeme Vám!
Kontakt

Bc. Artur Kurlikovskyy
Přihlášení k odběru
Nenechte si ujít nejnovější nabídky prodeje bytů 3+kk v Praze 8.
Podobné nabídky

Prodej bytu 3+kk, Praha - Libeň, Vacínova, 66 m2
3 999 000 Kč

Prodej bytu 3+kk, Praha - Karlín, Molákova, 69 m2
11 790 000 Kč

Prodej bytu 3+kk, Praha - Ďáblice, Nad Akcízem, 81 m2
12 290 000 Kč

Prodej bytu 3+kk, Praha - Libeň, Na kopečku, 70 m2
13 990 000 Kč