Prodej bytu 3+kk, Praha - Hostivař, náměstí Přátelství, 89 m2 (ID: 1967637)
náměstí Přátelství, Praha, Hostivař
Popis
- prostorné 3+kk s praktickou dispozicí
- 2 balkony, každý orientován na opačnou stranu
- garáž v ceně
- sklep v ceně
Prodám krásný a zrekonstruovaný byt 3+kk v osobním vlastnictví, v cihlovém domě, navíc s vlastním parkovacím stáním v podzemních garážích a sklepem – obojí je již zahrnuto v ceně.
Byt prošel čerstvou modernizací a zatím v něm nikdo nebydlel.
Vypadá přesně tak, jak vidíte na fotografiích – nejsou to vizualizace.
Nachází se ve 3. patře s výtahem.
Na nového majitele čeká nová kuchyňská linka na míru od českého truhláře, včetně spotřebičů (značková elektrická trouba, indukční deska, digestoř, osvětlení). Dominantou kuchyně je prostorný ostrůvek přístupný z obou stran.
Součástí rekonstrukce je:
- nové obklady z velkoformátového italského obkladu,
- nová sanita (vana, umyvadlo, toaleta),
- elektrické podlahové topení v koupelně,
- kompletní výmalba stěn,
- nová vinylová podlahová krytina,
- kuchyňská linka na míru.
Před domem lze pohodlně zaparkovat, hlavní výhodou je však vlastní parkovací stání v podzemním podlaží.
Kousek od domu se nachází veškerá občanská vybavenost – školy, školky, kavárna i supermarket Albert.
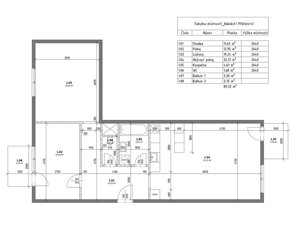
Dispozice bytu 3+kk:
- obývací pokoj s kuchyňským koutem (32,17 m²)
- ložnice (19,24 m²)
- pokoj (12,95 m²)
- vstupní chodba (11,63 m²)
- koupelna s vanou a prostorem pro pračku (4,6 m²)
- WC (1,6 m²)
- 2× balkon
- sklep (2,35 m²)
Charakteristika bytového domu:
- dům je velmi dobře spravován SVJ s důrazem na klidné a bezpečné bydlení
- dům má výtah
- nízké provozní náklady
Budu se těšit na osobní setkání při prohlídce.
Neváhejte mi také zavolat nebo napsat s jakýmkoli doplňujícím dotazem.
Byt prodávám jako přímý majitel, takže neplatíte žádnou provizi realitní kanceláři.
Máte zájem o tuto nemovitost?
Rohanské nábřeží 671/15, Praha
Pomůžeme Vám!
Pomůžeme Vám!
Kontakt

Gabriel Němec
Přihlášení k odběru
Nenechte si ujít nejnovější nabídky prodeje bytů 3+kk v Praze 10.
Tipy Realitymatu

Prodej bytu 2+kk, Praha, 28. pluku, 64 m2
9 400 000 Kč

Prodej bytu 2+kk, Praha - Vršovice, Kavkazská, 73 m2
9 800 000 Kč