Prodej bytu 1+kk, Hluboká nad Vltavou, 42 m2 (ID: 1967296)
Hluboká nad Vltavou
Výkup a prodej starého nábytku
Popis
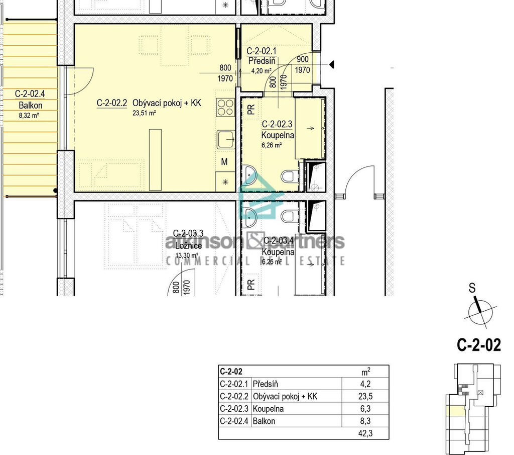
Nabízíme k prodeji bytovou jednotku číslo C-2-07 v prémiovém komunitním bydlení pro seniory v projektu SENIOR RESORT HLUBOKÁ, jež je navržen podle aktuálních trendů moderního bydlení s důrazem na kvalitu a dlouhodobou udržitelnost budov. Jedná se o praktický byt o dispozici 1+kk nacházející se ve 2. NP budovy C. Stejně tak jako všechny ostatní bytové jednotky je i tato koncipována jako bezbariérová. Její podlahová plocha činí 34 m² a disponuje balkonem o výměře 8,3 m². Byt je orientovaný na východ. Bytovou jednotku tvoří: předsíň o výměře 4,2 m², obývací pokoj s kuchyňským koutem o velikosti 23,5 m² a koupelna s toaletou o výměře 6,3 m². Dle přání lze dokoupit samostatnou sklepní kóji na patře.
Budova C je vybavena prostorným výtahem.
Byt bude předán zkolaudovaný, včetně sanitárního vybavení, obkladů a finálního pokrytí podlah.
Součástí celého resortu jsou parkovací stání, která lze dle přání dokoupit.
Obyvatelé resortu mohou dle potřeby také využívat společné prostory jednotlivých budov (tj. např. společenské místnosti, prostory pro zdravotnické a sociální služby, sklady pro odpad apod. )
SENIOR RESORT HLUBOKÁ se nachází v romantickém jihočeském městě Hluboká nad Vltavou. Základem naší projektové vize je kombinace vysokého standardu seniorského bydlení v příjemném a klidném prostředí s možností využívat zdravotnický servis, služby i nabídku volnočasových aktivit, to vše s pomocí dosažitelného financování formou družstevního vlastnictví.
(Družstevní vlastnictví představuje nejdostupnější řešení pořízení vlastního bydlení bez hypotéky a dokládání příjmů. Při nákupu bytové jednotky stačí postupně složit pouze 30% ceny bytu a zbytek doplácet měsíčními splátkami družstvu. )
Výhodou projektu SENIOR RESORT HLUBOKÁ je ověřený formát družstevního bydlení představující cenově dostupné řešení pro širokou veřejnost a nabízející také skvělou investici do budoucnosti.
Kontaktujte nás, rádi si s Vámi domluvíme osobní schůzku. Jsme tu pro Vás.
Máte zájem o tuto nemovitost?
Široká 432/11, České Budějovice
Pomůžeme Vám!
Pomůžeme Vám!
Kontakt

Mgr. Monika Němcová, MBA
Přihlášení k odběru
Nenechte si ujít nejnovější nabídky prodeje bytů 1+kk v Hluboké nad Vltavou.
Tipy Realitymatu
Podobné nabídky

Prodej bytu 1+kk, Hluboká nad Vltavou, 42 m2
4 578 000 Kč

Prodej bytu 1+kk, Hluboká nad Vltavou, 34 m2
1 255 650 Kč