Prodej bytu 3+kk, Brno, Souběžná, 54 m2 (ID: 1966681)
Souběžná, Brno, Židenice
(včetně poplatků, včetně provize, včetně právního servisu)
Popis
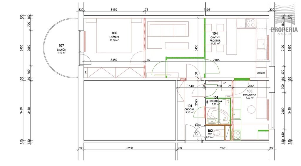
Hledáte moderní, světlé a útulné bydlení v klidné části Brna s výbornou dostupností do centra? Máme pro vás nádherný byt 3+kk o výměře 59m² včetně balkónu, který se nachází v 4. patře zrekonstruovaného bytového domu s výtahem na žádané adrese ulice Souběžná, Brno–Židenice.
Tato elegantní a promyšleně upravená bytová jednotka prošla kompletní rekonstrukcí v roce 2020, během níž byla změněna její dispozice z původního 2+1 na prostorné a praktické 3+kk. Výsledkem je vzdušný interiér s moderní kuchyní na míru, prostorným obývacím pokojem, příjemnou ložnicí s balkonem a dětským pokojem/pracovnou, stylovou koupelnou a především dostatkem úložného prostoru díky vestavěným skříním.
Každý detail tohoto bytu byl navržen s citem pro pohodlí a estetiku.
Bytový dům se nachází ve velmi dobrém technickém stavu po částečné revitalizaci. Díky rozumnému hospodaření SVJ se našetřené prostředky v blízké budoucnosti využijí na další rekonstrukce v domě. K bytu náleží sklepní kóje, ideální pro uložení sezónních věcí. Parkovat lze před domem a blízkém okolí.
Lokalita Brno–Židenice patří k dlouhodobě vyhledávaným pro svou kombinaci klidu, zeleně a perfektní dostupnosti. V bezprostředním okolí naleznete školky, školy, obchody, restaurace, kavárny, lékařské služby i zastávky MHD.
Máte zájem o tuto nemovitost?
Máchova 1301/2, Brno, Královo Pole
Pomůžeme Vám!
Pomůžeme Vám!
Kontakt

Mgr. Jan Roztočil
Přihlášení k odběru
Nenechte si ujít nejnovější nabídky prodeje bytů 3+kk v Brně.
Tipy Realitymatu

Prodej bytu 3+kk, Brno - Zábrdovice, Spolková, 110 m2
14 448 400 Kč
Podobné nabídky

Prodej bytu 3+kk, Brno, Jateční, 100 m2
7 900 000 Kč

Prodej bytu 3+kk, Brno, Mánesova, 64 m2
7 450 000 Kč

Prodej bytu 3+kk, Brno, Hlinky, 75 m2
8 780 000 Kč

Prodej bytu 3+kk, Brno, Ondrova, 138 m2
10 829 000 Kč