Pronájem bytu 2+kk, Praha - Staré Město, Kozí, 39 m2 (ID: 1963228)
Kozí, Praha, Staré Město
(Poplatky za služby a energie se hradí zvlášť)
Popis
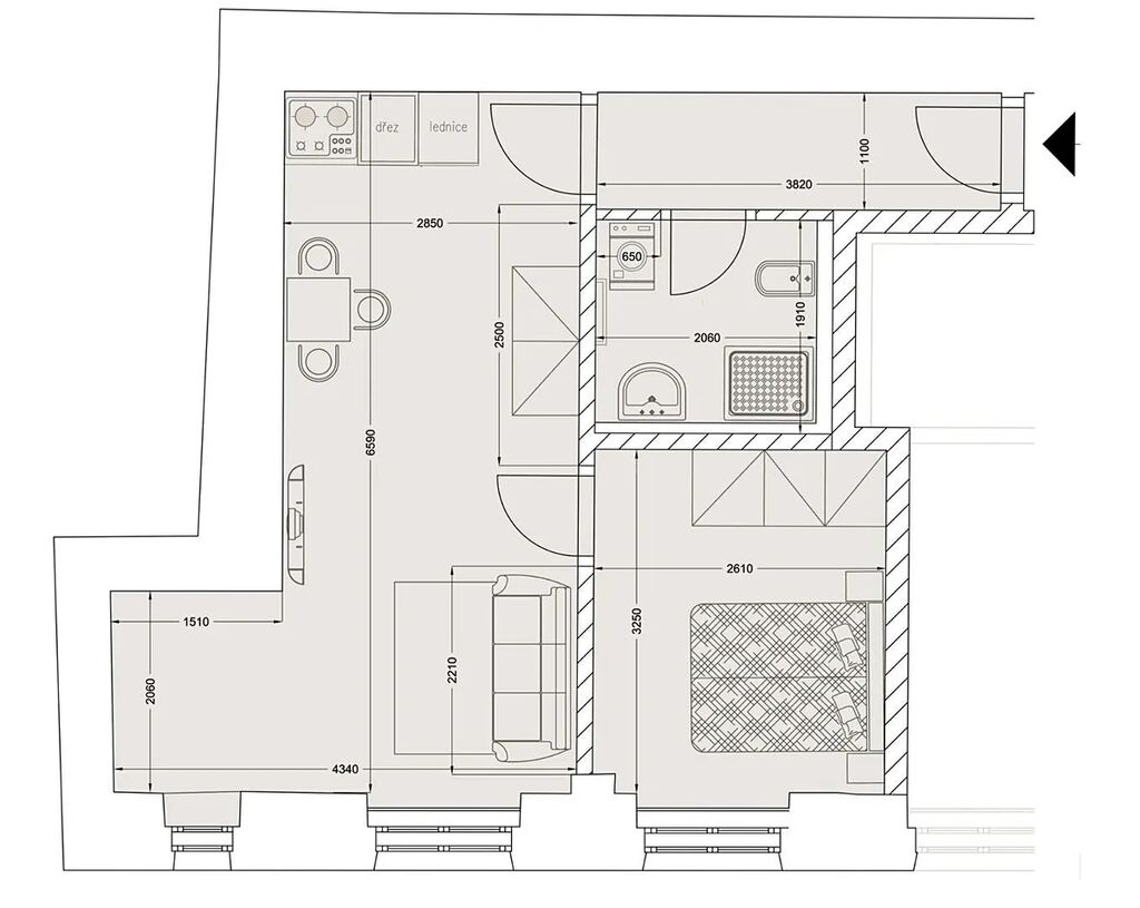
Prostorný zrekonstruovaný byt 2+kk (1 ložnice, 1 koupelna), o celkové obytné ploše 39,1m2, je situován ve druhém patře historické budovy s výtahem, v prestižní lokalitě Staré Město na Praze 1, nedaleko Staroměstského náměstí, v ulici Kozí.
Interiér bytu je nezařízený, ale existuje možnost pronájmu zařízeného interiéru za zvýšené nájemné, a dispozičně nabízí vstupní prostor (4,25 m2), prostorný obývací pokoj (21,96 m2) s kuchyňským koutem vybaveným vestavěnými spotřebiči (elektrická varná deska, mikrovlnná trouba, digestoř), samostatnou ložnici (8,96 m2), a stylovou koupelnu (3,93 m2) s umyvadlem, sprchovým koutem, toaletou a pračkou.
Budova se nachází v historické lokalitě Staré Město, v bezprostřední blízkosti Staroměstského náměstí nebo kostela sv. Mikuláše. Tato lokalita nabízí mnoho restaurací, kaváren, designových obchodů a butiků, nedaleko se nachází také Havelské tržiště nebo Městská knihovna. Skvělá dostupnost MHD autobusové zastávky "Pařížská" a "Staroměstské náměstí" jsou vzdáleny jen minutu pěšky, stanice metra "Staroměstská" (linka A) pak 4 minuty chůze a tramvajová zastávka "Staroměstská" pouhých 5 minut chůze.
Zálohové poplatky za služby a energie (včetně topení) činí 3.500, Kč/osobu/měsíc (pokud dvě osoby pak celkem 5.600, Kč/byt/měsíc), a elektřina se převádí na nájemce. Vratná kauce 2 nájmy ( v případě domácího mazlíčka 3 nájmy). Provize RK.
K dispozici ihned.
Máte zájem o tuto nemovitost?
Vinohradská 939/39, Praha, Vinohrady
Pomůžeme Vám!
Pomůžeme Vám!
Kontakt

Eva Cinculová
Přihlášení k odběru
Nenechte si ujít nejnovější nabídky pronájmu bytů 2+kk v Praze 1.
Tipy Realitymatu