Pronájem obchodního prostoru, Praha - Vokovice, K lánu, 90 m2
K lánu, Praha 6
(26 000 Kč nájem, 5 000 Kč zálohy, 1 nájem provize RK.)
Popis
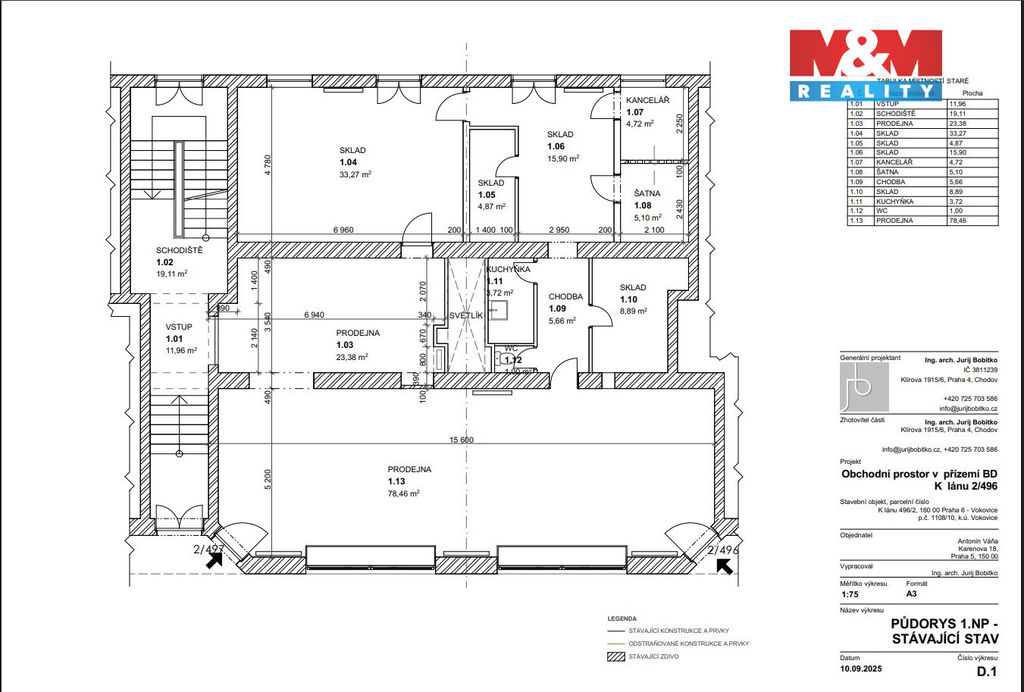
Jedinečný obchodní prostor o velikosti 90 m² nabízíme k pronájmu v atraktivní lokalitě Prahy 6 – Vokovice. Tento cihlový objekt se nachází v klidné části obce a je ideální pro různé podnikatelské záměry. Prostor je umístěn v přízemí čtyřpodlažního domu s jedním podzemním podlažím, má celkem 4 místnosti a je ve stavu před rekonstrukcí, což umožňuje budoucímu nájemci přizpůsobit si jej dle vlastních potřeb a představ. Klidná lokalita a snadná dostupnost činí z této nabídky ideální volbu pro vaše podnikání. Prostor je možné rozdělit na dva samostatné s vlastním vstupem. Je zde i zadní vstup pro zásobování. Neváhejte nás kontaktovat pro více informací a prohlídku!
Máte zájem o tuto nemovitost?

ulice Krakovská 583/9, Praha
Pomůžeme Vám!
Pomůžeme Vám!
Kontakt

Miloš Nezbeda
Přihlášení k odběru
Nenechte si ujít nejnovější nabídky pronájmu obchodních prostor v Praze 6.