Pronájem bytu 2+kk, Praha - Dubeč, Dubeckého, 53 m2 (ID: 1961930)
Dubeckého, Praha, Dubeč
Popis
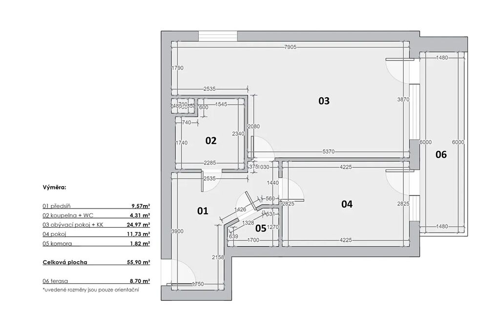
Nabízíme k pronájmu krásný byt v osobním vlastnictví se zahradou o rozloze 325 m2 ve výlučném vlastnictví a s jedinečným výhledem na přírodní scenérie okolí Dubče. Tento moderní byt se nachází v klidné lokalitě na adrese Dubeckého 742/1, v blízkosti Prahy. Dispozičně je byt uspořádán jako 2+kk s užitnou plochou 53 m2 a terasou o rozloze 9 m2, z níž si můžete vychutnat krásné slunečné dny. K bytu náleží i soukromá zahrada pouze k bytu o rozloze 325 m2.
Zálohy do SVJ činí 4.470Kč a je v nich zahrnuto vše, kromě elektřiny, která je 1.000Kč.
Tento byt se nachází na přízemí zděného domu o čtyřech podlažích a nabízí dva prostorné pokoje s vestavěným nábytkem. Oceníte i moderní vybavenou kuchyň a nebo prostornou koupelnu s vanou.
Kauce je jeden měsíční nájem bez poplatků a provize činí jeden měsíční nájem + DPH.
V blízkosti bytu se nachází veškerá občanská vybavenost: obchody, restaurace, školy, školky či zdravotnická zařízení. Výborné dopravní spojení do centra Prahy umožní snadnou dostupnost do města i okolních oblastí.
Tato nemovitost splňuje energetickou třídu B a je ve vynikajícím stavu. Novým nájemníkům nabízíme možnost využít parkovací místo garáž v domě.
Nabídněte si tento moderní a světlý byt v klidné a příjemné lokalitě nedaleko Prahy a začněte trávit své dny v tichém prostředí s výhledem na krásnou přírodu. Nenechte si ujít tuto jedinečnou příležitost k bydlení v pohodlí a luxusu.
V případě zájmu neváhejte kontaktovat makléře.
Máte zájem o tuto nemovitost?
Rumunská 18/22, Praha
Pomůžeme Vám!
Pomůžeme Vám!
Kontakt

Patrik Vintr
Přihlášení k odběru
Nenechte si ujít nejnovější nabídky pronájmu bytů 2+kk v Praze 10.
Tipy Realitymatu