Pronájem bytu 1+1, Praha - Nusle, V zálomu, 46 m2
V zálomu, Nusle - Praha 4
(vratná jistota, náklady na bydlení 4 509 Kč, poplatek za podnájem)
Popis
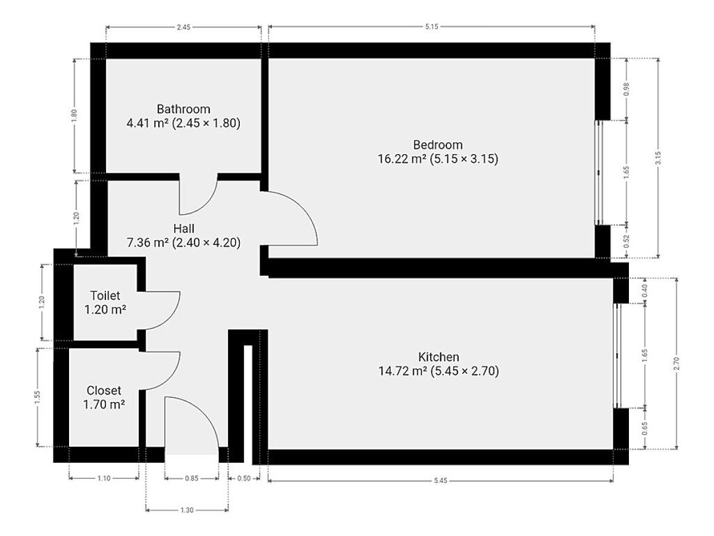
K dlouhodobému podnájmu nabízíme krásný byt o dispozici 1+1 v klidné lokalitě Praha 4 - Nusle. Byt o celkové výměře 46 m2 se nachází ve 2. patře zděného domu bez výtahu.
Byt se nabízí plně vybavený. Kuchyně disponuje jídelním stolem se 3 židlemi, rozkládací postelí, lednicí s mrazákem, elektrickou troubou, plynovým sporákem, mikrovlnnou troubou a digestoří. V ložnici najdeme postel s matracemi, 2 noční stolky s lampičkami, šatní skříň, komodu a polici. V koupelně je vana, umyvadlo, koupelnová skříňka, zrcadlo a pračka. Toaleta je umístěna samostatně. V předsíni jsou vestavěné skříně.
Plovoucí podlahy, plastová okna, vytápění plynové, ohřev vody bojlerem, přípojka na internet, v mezipatře společný balkon.
V okolí domu najdeme restaurace, nákupní centrum Arkády Pankrác, supermarket Tesco Express, Divadlo na Jezerce, park Jezerka atd. Pár minut chůze od domu je vzdálena tramvajová zastávka Na Veselí, autobusová zastávka Jezerka, a v docházkové vzdálenosti je stanice metra C - Pražského povstání.
Byt je volný k nastěhování 1.11.2025.
Energetická třída: G (průkaz nedodán).
Máte zájem o tuto nemovitost?

Milady Horákové 1957/13, Brno
Pomůžeme Vám!
Pomůžeme Vám!
Kontakt

Miloslava Kačerová
Přihlášení k odběru
Nenechte si ujít nejnovější nabídky pronájmu bytů 1+1 v Praze 4.
Tipy Realitymatu