Prodej skladu, Praha - Bubeneč, Šestidomí, 403 m2 (ID: 1959512)
Šestidomí, Praha, Bubeneč
Popis
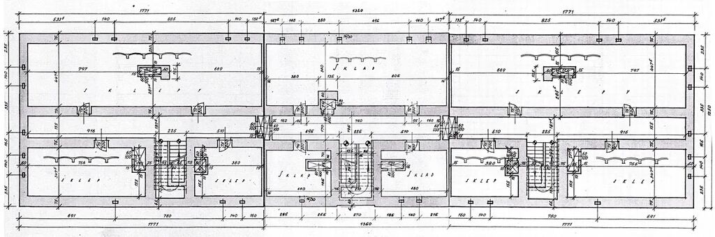
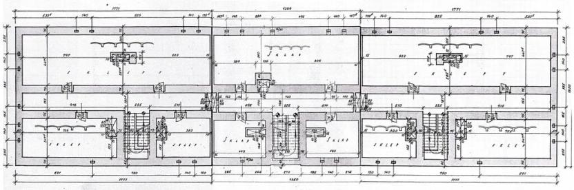
Mimořádná nabídka prostoru v Praze 6, ca 200m vzdušnou čarou od hotelu Internacional, ca 150m od Tram a žst. Nádraží Podbaba. Suché, čisté, skvěle odvětrané prostory v 2.PP bytového cihlového domu. Do prostor vedou 3 schodiště a 2 funkční nákladní výtahy z chodníku (pro břemena max 120x120x150cm, 500kg, ostatní nutno po schodech). Původně určeno pro skladování zeleniny, možno využít jako sklady, archiv apod. Vysoké (ca 3,5m), klenuté stropy. Aktuálně pronajata ca 1/3 plochy (měsíční výpověď) s měsíčním výnosem ca 30.000,- Kč. Roční možný výnos při plném obsazení přes 1.000.000,- Kč
Prodej od majitele, bez provize RK. Cena konečná, DPH nebude připočteno, majitel není plátce DPH.
Máte zájem o tuto nemovitost?
Severozápadní III 365/28, Praha, Záběhlice
Pomůžeme Vám!
Pomůžeme Vám!
Kontakt

Ing. Petr Brož
Přihlášení k odběru
Nenechte si ujít nejnovější nabídky prodeje skladů v Praze 6.