Prodej bytu 4+1, Brno, Absolonova, 105 m2
Absolonova, Brno, Komín
(včetně provize RK, včetně právního servisu, včetně poplatků)
Popis
V oblíbené městské části Brna - v Komíně, v menším panelovém domě na ulici Absolonova, je k prodeji prostorný byt pro velkou rodinu. Pokud máte třeba menší byt někde v okolí, jste spokojeni, ale potřebovali byste navíc jeden či dva pokoje, mohla by Vás tato nabídka zaujmout.
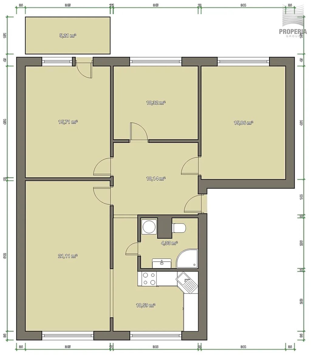
Byt 4+1 (4+kk) se nachází ve zvýšeném přízemí, jeho plocha je 90 m2 + balkon 5 m2. Disponuje velkou předsíní, kuchyní, sociálním zázemím a 4 prostornými pokoji (21, 16, 16 a 10 m2). Jak můžete vidět na přiloženém orientačním půdorysu, všechny místnosti mají samostatné vstupy z chodby, nejsou průchozí. Úložné prostory o výměře 15 m2 nabízí další samostatná místnost (sklep) v suterénu domu.
Dům je obklopen zelení, balkon nabízí krásné posezení i výhled, když mi majitelé říkali, že tam občas vídají i koloušky, nevěřila jsem, tak mi poslali fotku...(omluvte její kvalitu).
Bonusem je i blízkost všeho potřebného - MŠ je hned ve vedlejším domě, stejně tak i SVČ s multifunkčním a dopravním hřištěm, nedaleko jsou další MŠ a ZŠ, SŠ Čichnova, obchody, pošta, zdravotnická zařízení, několik restaurací a také spousta super míst pro trávení volného času dětí i dospělých - dětská a sportovní hřiště, 70 m od domu vede cyklostezka ke Svratce, kde najdete úžasná místa k odpočinku v krásné přírodě - třeba pláž u Svratky, sportovní areály sousedící s lesy v Jundrově, určitě potěší i blízkost Brněnské přehrady. Komín nabízí také bohaté kulturní a společenské vyžití včetně tradičních hodů...
Měsíční zálohy včetně FO jsou (i díky vlastní kotelně v domě) pouze 5.527,- Kč/ 4 osoby + zálohy na elektřinu a plyn (pouze sporák).
Parkovat lze v okolí domu v rámci rezidentního parkování - zóna C, zastávka MHD nedaleko.
Pokud bude potřeba, ráda pomohu s případným prodejem Vaší stávající nemovitosti nebo vyřízením hypotéky.
Další informace Vám sdělím na vyžádání, prohlídky jsou možné po domluvě. Budu se na Vás těšit!
PENB nebyl dodán, proto uvádím tř. G.
Máte zájem o tuto nemovitost?
Máchova 1301/2, Brno, Královo Pole
Pomůžeme Vám!
Pomůžeme Vám!
Kontakt

Lenka Kocí Panáčková
Přihlášení k odběru
Nenechte si ujít nejnovější nabídky prodeje bytů 4+1 v Brně.
Tipy Realitymatu

Prodej bytu 3+1, Brno - Černá Pole, Helfertova, 110 m2
12 490 000 Kč

Prodej bytu 3+kk, Brno - Medlánky, Ke Statku, 87 m2
11 997 000 Kč
Podobné nabídky

Prodej bytu 4+1, Brno, Oblá, 78 m2
8 490 000 Kč

Prodej bytu 4+1, Brno - Líšeň, 84 m2
8 380 000 Kč

Prodej bytu 4+1, Brno, Šeříková, 89 m2
11 000 000 Kč

Prodej bytu 4+1, Brno, Karlova, 88 m2
8 500 000 Kč