Prodej obchodního prostoru, Olomouc, Družební, 102 m2
Družební, Olomouc, Nové Sady
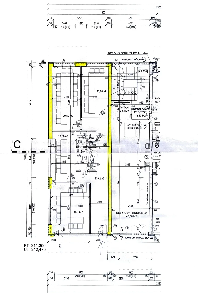
Popis
S výhradním zastoupením nabízíme ke koupi nebytové prostory v Olomouci na ulici Družební. Jedná se o nebytové prostory situované v přízemí moderního objektu kolaudovaného v roce 2008 s bezbariérovým vstupem přímo z ulice. Celková plocha jednotky je 102 m2. Jednotka sestává ze vstupní chodby využitelné též jako recepce nebo čekárna, čtyř samostatných neprůchozích místností s denním světlem a dvou oddělených prostor s toaletami a příslušenstvím. Prostory jsou vhodné pro kanceláře, ordinace, školící centrum, klientské centrum, salón krásy a podobně. K maximálnímu využití potenciálu nabízených prostor přispívá i možnost využít okna v přízemí jako reklamní poutač pro zviditelnění provozovny. Velkým plusem je taktéž poloha s velmi dobrou dopravní dostupností MHD (zastávky tramvaje i autobusu jsou vzdálené cca 100 m) a možnost využít potenciálu dvou přilehlých lidnatých městských částí Nové Sady a Povel. Nízké provozní náklady, vytápění je řešeno ústředním topením z dálkového zdroje, ohřev vody je centrální pro celý objekt. Koupě této nemovitosti může být i zajímavou investicí pro následný pronájem. Více informací u makléře zakázky.
Máte zájem o tuto nemovitost?

Riegrova 373/6, Olomouc
Pomůžeme Vám!
Pomůžeme Vám!
Kontakt

Jiří Zavadil
Přihlášení k odběru
Nenechte si ujít nejnovější nabídky prodeje obchodních prostor v Olomouci.
Tipy Realitymatu

Prodej činžovního domu, Uničov, Masarykovo nám., 307 m2
14 850 000 Kč
Podobné nabídky

Prodej obchodního prostoru, Olomouc, Wolkerova, 235 m2
11 750 000 Kč

Prodej obchodního prostoru, Olomouc, Wolkerova, 345 m2
17 250 000 Kč

Prodej obchodního prostoru, Olomouc, Tomkova, 148 m2
6 990 000 Kč