Pronájem bytu 2+kk, Praha - Dejvice, Paťanka, 56 m2
Paťanka, Praha, Dejvice
(+ 3 000 Kč/měs. poplatky + 1 000 Kč elektřina)
Popis
Nabízíme Vám pronájem světlého a prostorného bytu 2+KK o celkové ploše 56 m2 (včetně terasy 9,83 m2) s jihovýchodní orientací, jež je součástí šestipodlažního bytového domu a projektu „Rezidence Podbaba“ z roku 2009.
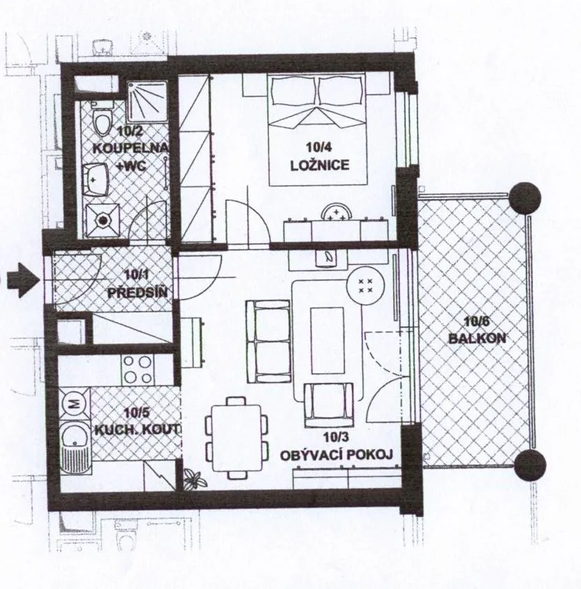
Byt se nachází ve 3. patře s výtahem, je nezařízený, jeho součástí je kuchyňská linka, el. sporák, digestoř, myčka nádobí, (lednice s mrazákem může být dodána), pračka. Koupelna se sprchovým koutem je společně s WC. Na podlaze jsou plovoucí podlahy a dlažba. Možnost kabelové TV a připojení k internetu/telefonu od Vodafone nebo O2.
Oba pokoje mají pěkný, volný výhled do zeleně. Plochy místností jsou: obývací pokoj s 18,34m2, kuch. kout 5,66 m2, ložnice 12,49 m2, koupelna s WC 4,78 m2, předsíň 3,68 m2 a terasa 9,83 m2. K dispozici je zabezpečená zděná sklepní kóje o ploše 3 m2. K dispozici je možnost využití příjemného vnitrobloku domu s posezením.
Veškerá občanská vybavenost je v docházkové vzdálenosti, supermarket Kaufland se nachází 300 m od bytu, 2 minuty chůze k zastávce tram Nádraží Podbaba (3 minuty k metru A Dejvická), tram č. 8, 18, bus č. 107, 116, 147, 160, 255, 340, 350, 355, 902, 909 a 954. Byt se nachází v těsné blízkosti Sportovního areálu Juliska.
Možnost dlouhodobého nájmu s přihlášením se k trvalému pobytu. Byt je vhodný pouze pro nekuřáky, 1 – 2 pracující osoby (partnerský pár, nikoliv spolubydlení). Ihned volné k nastěhování.
Máte zájem o tuto nemovitost?
Freyova 82/27, Praha, Vysočany
Pomůžeme Vám!
Pomůžeme Vám!
Kontakt

Ing. Petr Strnad
Přihlášení k odběru
Nenechte si ujít nejnovější nabídky pronájmu bytů 2+kk v Praze 6.