Pronájem bytu 2+kk, Praha - Michle, Michelská, 42 m2
Michelská, Praha, Michle
(+ provize RK)
Popis
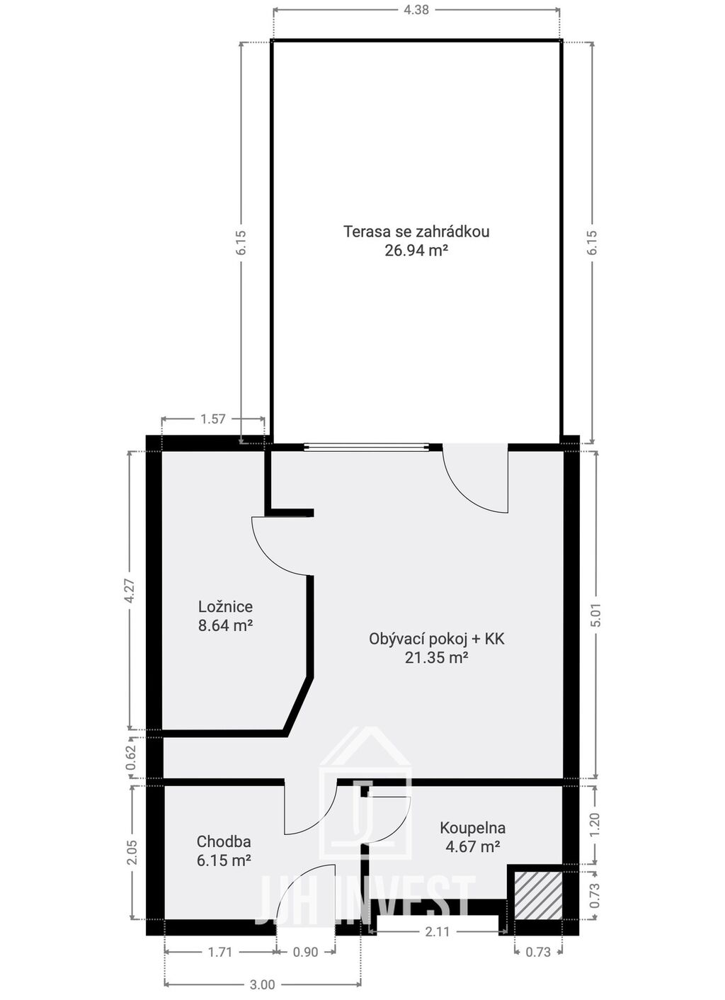
Nabízíme k pronájmu moderní byt o velikosti 42 m² s terasou 15 m² a zahradou 15 m². Nachází se v rezidenčním projektu Michelský park, který je oblíbený díky klidnému prostředí a dobré dostupnosti do centra. Interiér je vybavený nábytkem na míru v nadstandardním provedení, každý detail je promyšlený tak, aby poskytoval dostatek úložného prostoru a maximální pohodlí.
Obývací pokoj s kuchyňským koutem je propojený s venkovní terasou a zahradou, které nabízejí klid a soukromí. Ložnice je vybavena vestavěnými skříněmi, koupelna má sprchový kout, toaletu a pračku se sušičkou. V předsíni jsou praktické vestavěné úložné prostory.
Nájemné: 24 900 Kč / měsíc
Poplatky: 4 850 Kč / měsíc (elektřina se převádí na nájemce)
Kauce: 49 800 Kč
Provize ve výši 1 nájmu
Možnost pronájmu parkovacího stání v podzemní garáži za 2 000 Kč/měsíc.
Lokalita je velkou předností bytu – přímo u domu jsou tramvajové a autobusové zastávky, díky nimž je centrum dobře dostupné. Autem je možné rychle vyjet na Jižní spojku nebo dálnici D1. Jen pár minut chůze je Brumlovka a BB Centrum, kde kromě pracovních příležitostí najdete i kavárny, restaurace, fitness centra a další služby.
Byt je volný ihned a je ideální volbou pro jednotlivce nebo pár, kteří hledají komfortní bydlení s vlastním venkovním prostorem v atraktivní části Prahy 4.
Máte zájem o tuto nemovitost?
Ramonova 3466/2, Praha
Pomůžeme Vám!
Pomůžeme Vám!
Kontakt

Caroline Damianová
Přihlášení k odběru
Nenechte si ujít nejnovější nabídky pronájmu bytů 2+kk v Praze.
Tipy Realitymatu