Prodej vily, Praha - Modřany, Na Floře, 239 m2 (ID: 1956033)
Na Floře, Praha, Modřany
Popis
Nabízíme k prodeji třípatrovou vilu z 30. let minulého století v klidné části Prahy - Modřany. Vila s krásnou zahradou se vzrostlými stromy zajišťuje maximální soukromí a dechberoucí výhledy do okolí. Vila stojí ve svažitém pozemku o rozloze 1 644 m² a nabízí podlahovou plochu 239 m².
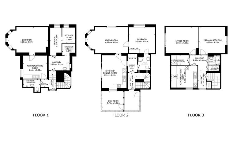
Dům má tři nadzemní podlaží propojená vnitřním schodištěm a v současnosti každé z nich slouží jako samostatná bytová jednotka.
1. nadzemní podlaží tvoří pokoj (26 m²), kuchyň (13 m²), koupelna se sprchovým koutem a toaletou, předsíň, technická místnost a sklep (16 m²). K dispozici je i samostatná terasa vhodná pro venkovní posezení.
2. nadzemní podlaží nabízí obývací pokoj s krbovými kamny (25 m²), ložnici (16 m²), kuchyň (20 m²), koupelnu se sprchovým koutem a toaletou, předsíň a zimní zahradu (17 m²) s krásným výhledem do zeleně.
3. nadzemní podlaží disponuje obývacím pokojem s balkonem (21,5 m²) s nádherným výhledem, ložnicí (18 m²), kuchyní (14 m²), komorou (4 m²), předsíní, koupelnou a samostatnou toaletou.
V domě jsou zachované původní dřevěné podlahy a v 1. a 2. NP jsou dřevěná eurookna s dvojskly. Ve 3. NP plastová okna a podlahová krytina je kombinací lina a dlažby.
Vytápění a ohřev vody zajišťuje plynový kotel. Dům je napojen na městský vodovod a kanalizaci, na pozemku se navíc nachází vlastní studna.
Zahrada je díky svažitému terénu členitě řešená a nabízí řadu příjemných zákoutí. Najdete zde pergolu s posezením, venkovní sklípek, úložný prostor na zahradní náčiní, a také prostor pro pěstování zeleniny, ovoce a květin.
Součástí nemovitosti jsou tři samostatné garáže, jedno venkovní parkovací stání a velkou výhodou je výtah z garáže přímo na zahradu.
Tato vila je ideální jak pro rodinné či vícegenerační bydlení, tak i jako sídlo firmy.
Nemovitost se nachází v klidné rezidenční čtvrti Modřany, která nabízí výbornou dostupnost do centra Prahy i kvalitní spojení MHD. Lokalita je bohatá na volnočasové aktivity – cyklostezky podél Vltavy, minigolf, plážový volejbal, zábavní park, restaurace a kavárny – vše v pohodlné pěší vzdálenosti.
Veškerá občanská vybavenost je v místě.
Energetická třída G je uvedena dočasně – po dodání energetického štítku bude aktualizována skutečná třída energetické náročnosti této nemovitosti.
Máte zájem o tuto nemovitost?

Pařížská 131/28, Praha 1
Pomůžeme Vám!
Pomůžeme Vám!
Kontakt

Romana Čermáková
Přihlášení k odběru
Nenechte si ujít nejnovější nabídky prodeje vil v Praze 4.
Podobné nabídky

Prodej vily, Praha - Modřany, 530 m2
40 000 000 Kč

Prodej vily, Praha - Modřany, Darwinova, 354 m2
41 990 000 Kč

Prodej vily, Praha - Modřany, Klostermannova, 209 m2
25 990 000 Kč

Prodej vily, Praha - Braník, Branická, 220 m2
34 900 000 Kč