Prodej vícegeneračního domu, Sukošan, Chorvatsko, Ante Starčevića, 302 m2 (ID: 1953809)
Ante Starčevića, Sukošan
(volejte makléři, včetně poplatků, včetně provize, včetně právního servisu)
Popis
Exkluzivně vám nabízíme prodej luxusního apartmánového domu o ploše 330 m2 se 3 apartmány v obci Sukošan v Chorvatsku, 10 minut chůze od pláže. Dům se prodává plně vybavený (kromě vířivky a jízdních kol) a připravený k bydlení či pronajímání. Stavba byla dokončena v roce 2015, kolaudace bude dokončena v následujících měsících. Stavba byla dokončena ve vysokém standardu s použitím drahých materiálů, zejména kamene a mramoru. Světlé interiéry a moderní vybavení doplňuje okrasná zahrada s grilem a posezením, ideální pro odpočinek a relaxaci. Dům lze využít pro vícegenerační bydlení, pronájem celé nemovitosti i pronájem jednotlivých apartmánů. Tato nemovitost poskytuje skvělou příležitost pro život a zároveň investici v jednom z nejžádanějších a malebných míst v Chorvatsku.
Zastavěná plocha domu a nádvoří je 162 m2, zahrada 293 m2. Garáž 31 m2, pozemek okolo garáže 94 m2.
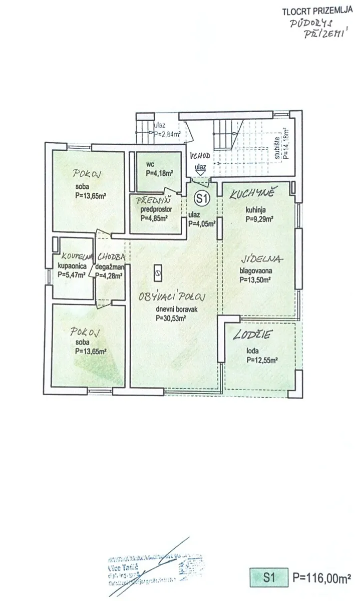
1.NP
- plocha bytu 116 m2
- 2 ložnice
- prostorný obývák s pracovním koutem (možnost vybudovat další ložnici)
- kuchyně s jídelnou
- koupelna s vanou
- samostatné wc
- lodžie
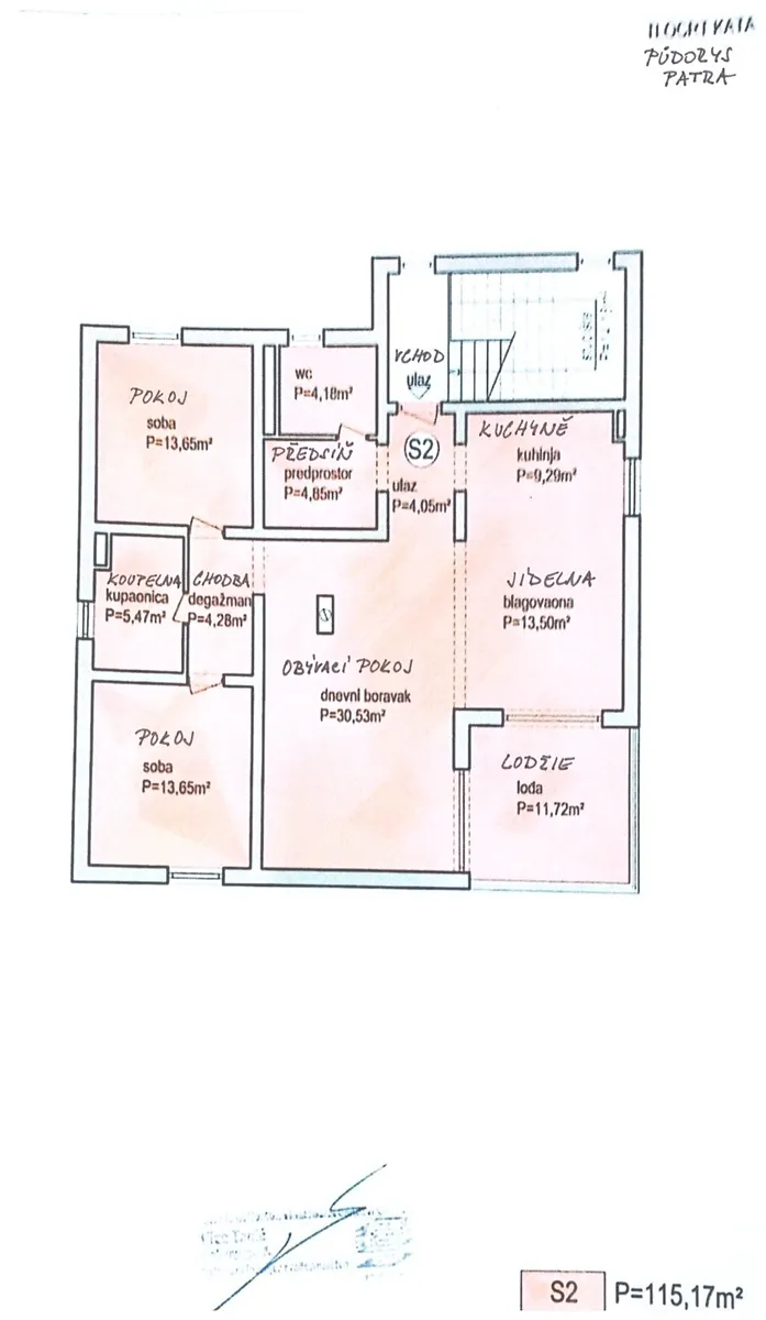
2.NP
- plocha bytu 115,17 m2
- 2 ložnice
- prostorný obývák s pracovním koutem (možnost vybudovat další ložnici)
- kuchyně s jídelnou
- koupelna s vanou
- samostatné wc
- lodžie
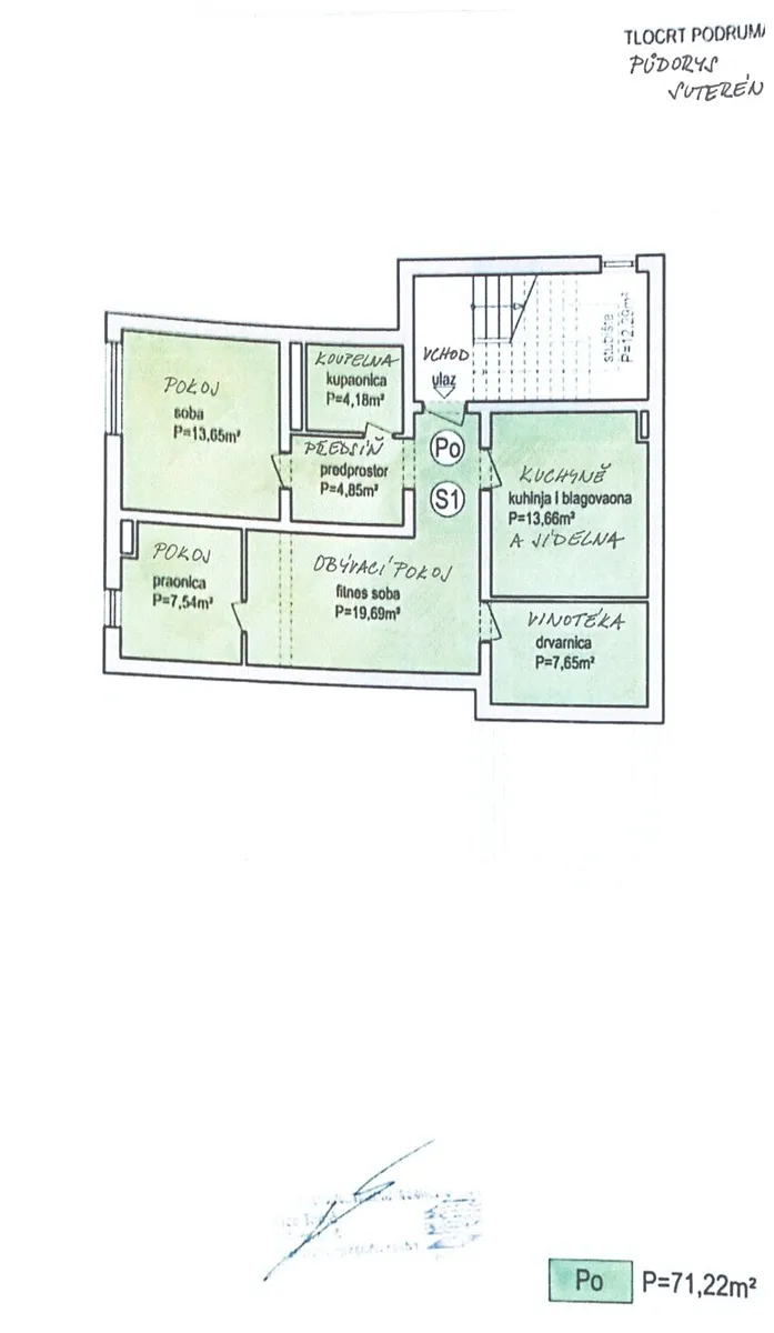
1.PP
- plocha bytu 71,22 m2
- 2 ložnice (1 ložnice má posuvné dveře do obývacího pokoje)
- obývací pokoj
- kuchyně s jídelnou
- koupelna s wc
- vinotéka
Sukošan je malebná obec ležící na pobřeží Jaderského moře, asi 10 km jižně od Zadaru. Místo je známé svou klidnou atmosférou, přírodními krásami a historickými památkami, včetně starobylého kostela a zbytků římských staveb. Obec je obklopena nádhernými plážemi, ideálními pro koupání a vodní sporty. Sukošan je také vyhledávaným místem pro jachting díky blízkosti k několika národním parkům a přírodním rezervacím. Sukošan nabízí klidnou atmosféru, ale zároveň je dostatečně blízko k městským atrakcím a kulturnímu životu. Obec je oblíbená jak pro letní turistiku, tak i pro celoroční pobyty díky příjemnému středomořskému klimatu.
V případě zájmu vám pomůžeme s financováním nemovitosti (lze vyřídit i 100% úvěr) i založením inzerce na Airbnb a Booking.com v případě, že budete chtít nemovitost krátkodobě pronajímat. Při rychlém jednání možná sleva.
Máte zájem o tuto nemovitost?
Běhounská 677/15, Brno
Pomůžeme Vám!
Pomůžeme Vám!
Kontakt

Andrea Maximová
Přihlášení k odběru
Nenechte si ujít nejnovější nabídky prodeje vícegeneračních domů.
Tipy Realitymatu
Podobné nabídky

Prodej vily, Brtonigla, Chorvatsko, Brtonigla, 430 m2
Cena na vyžádání

Prodej chaty, 20 m2
Cena na vyžádání

Prodej vily, Primošten, Chorvatsko, 698 m2
Cena na vyžádání

Prodej vily, Sevid, Chorvatsko, 460 m2
Cena na vyžádání