Pronájem bytu 1+1, Ledeč nad Sázavou, Marie Majerové, 35 m2
Marie Majerové, Ledeč nad Sázavou
(+popl. 3000, + přepis elektřiny na nájemníka)
Popis
Hledáte moderní byt po kompletní rekonstrukci, kde už stačí jen převzít klíče a nastěhovat se? Máme pro vás byt 1+1 nacházející se v ulici Marie Majerové v Ledči nad Sázavou, který prošel velmi vkusnou rekonstrukcí a nabízí ideální zázemí pro útulné a pohodlné bydlení. Každý detail zde byl promyšlen tak, aby se z bytu stal domov, kde se budete cítit příjemně od prvního dne.
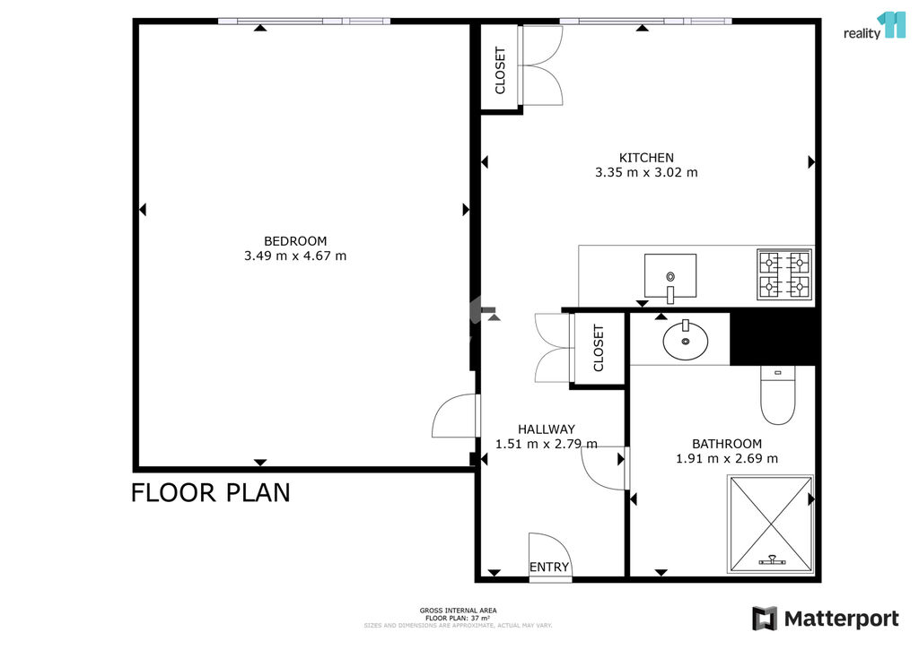
Hned při vstupu vás přivítá prostorná chodba s vestavnou šatní skříní na míru, která elegantně řeší úložný prostor. Součástí bytu je také nádherná designová koupelna se sprchovým koutem, kde nechybí ani přípojky na pračku a sušičku. Další místností je kuchyň, která zaujme na první pohled – čeká vás zde zcela nová kuchyňská linka. Elegantní provedení a dostatek úložného i pracovního prostoru vytvářejí ideální zázemí pro každodenní vaření i chvíle s kávou u okna. Je to prostor, který vás bude bavit – ať už vaříte každý den nebo jen občas. Poslední místností je prostorný a světlý pokoj, který díky své velikosti umožňuje pohodlně rozdělit zónu pro spaní i odpočinek. Byt je po celý den příjemně prosvětlený.
V rámci rekonstrukce došlo k celkové výměně elektroinstalace a vodovodních rozvodů. Byt má nové omítky a byla položena nová podlahová krytina. K bytu náleží sklep, který rozšiřuje úložné možnosti. Parkování je možné přímo před domem.
Ledeč nad Sázavou je známá svou historickou atmosférou a dominantním hradem nad řekou Sázavou, nabízí nejen krásné prostředí, ale i bohatou občanskou vybavenost – najdete zde obchody, zdravotní péči, sportoviště, školy i množství možností pro volný čas.
Měsíční nájemné činí 10 000 Kč, zálohy za služby jsou ve výši 3 000 Kč za měsíc a vrátná kauce je 20 000 Kč. Elektřina bude přepsána na nájemníka. Při podpisu nájemní smlouvy je hrazena odměna realitní kanceláři. K dispozici máme 3D virtuální prohlídku, kterou na vyžádání velmi rádi zašleme.
Zaujala vás tato nabídka? Ozvěte se a domluvte si prohlídku – tento byt může být právě vaším novým domovem. Ev. číslo: 27788.
Máte zájem o tuto nemovitost?

Svornosti 985/8, Praha
Pomůžeme Vám!
Pomůžeme Vám!
Kontakt

Bc. Jaroslav Fišer
Přihlášení k odběru
Nenechte si ujít nejnovější nabídky pronájmu bytů 1+1 v Ledči nad Sázavou.